QQ登录

只需一步,快速开始

登录 | 注册 | 找回密码

三维网

 找回密码
 注册

QQ登录

只需一步,快速开始

展开

通知     

查看: 2873|回复: 6
收起左侧

[练习题] 『1024』实体 工程图练习

[复制链接]
发表于 2009-7-18 21:33:53 | 显示全部楼层 |阅读模式 来自: 中国浙江台州

马上注册,结识高手,享用更多资源,轻松玩转三维网社区。

您需要 登录 才可以下载或查看,没有帐号?注册

x
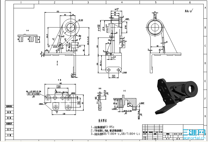
以前的图,练习出图用还不错。
& t$ K7 {* p! a7 e( k# {
! _- y- L/ @" `# X根据附图所示的尺寸作出物体的实体造型【6分】, n' X* a2 o: o. ^  [
出工程图【6分】5 f7 }; N! d# [. W
要求:详情请见【NX 练习题 管理规定* D9 H" s% a0 X$ q
    1.上传练习时,需要包涵Part文档和附图,附图内容包涵:①NX版本;②完整特征树;③练习文件抓图。
8 b! ?5 T1 V1 k( Z: ^2 s5 F+ u& `    2.针对符合做题要求跟帖练习情况,给予4~6三维币的奖励,可稍有突破此限制,做错的不予奖励。先参与的会员给予上限的加分奖励。思路不同的做法,请在回复标题中注明,仍按上限给予加分。2 `2 v/ I/ o$ c% I) q. o& M
    3.发布时间超过15天(或超过版主规定的时间)的练习题,结束该练习题练习。此后所做的练习给予0~2三维币的加分(不是非常简单的都加2分)。
2009-07-18_212327.png

支架.pdf

122.3 KB, 下载次数: 97

评分

参与人数 1三维币 +6 收起 理由
astrokylin + 6 采纳

查看全部评分

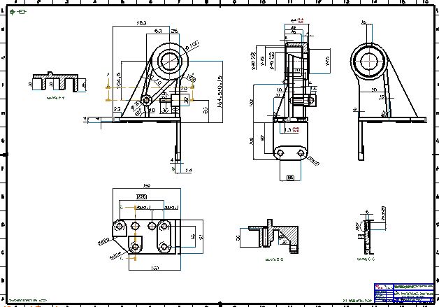
发表于 2009-7-20 16:22:46 | 显示全部楼层 来自: 中国黑龙江哈尔滨
1024.JPG
6 a* z$ h% {# g' A: t( T- `. @ 1024tu.JPG
. u8 Z6 k2 {; F5 p: u原图中有一处标错了,标注有点恐怖,不标了。
+ N2 r  {8 s' V* M/ m6 p2 q* p$ E
) E, T2 n9 M( s5 K[ 本帖最后由 ahblag2009 于 2009-7-20 21:58 编辑 ]

1024prac.rar

278.47 KB, 下载次数: 47

评分

参与人数 1三维币 +8 收起 理由
astrokylin + 8 练习

查看全部评分

发表于 2009-8-3 22:10:53 | 显示全部楼层 来自: 中国浙江台州
用6.0做了一个。/ C# B* |5 A4 h6 H
) A7 p8 P# X: l+ `
[ 本帖最后由 2L682 于 2009-8-3 22:12 编辑 ]
803-1.jpg
803-2.JPG

07.30.rar

278.46 KB, 下载次数: 9

评分

参与人数 1三维币 +15 收起 理由
astrokylin + 15 辛苦

查看全部评分

发表于 2009-8-13 13:42:02 | 显示全部楼层 来自: 中国浙江宁波
我也小做了下!
5 w7 A: k* z- ~5 g图纸中有孔的直接和半径标注错了哦!
1.jpg

zhijia.rar

27.17 KB, 阅读权限: 100, 下载次数: 0

发表于 2009-8-14 15:28:40 | 显示全部楼层 来自: 中国山东烟台
有几处尺寸和图纸不一样,还有两处螺丝孔没做。也就算个半成品吧。
5 _- o5 ]: A& V. E 1024.jpg / |. Z9 [# T0 w* ]) |* G( r; f1 t
1024a.jpg
* c: y) z* H* e  v' e 1024.rar (543.42 KB, 下载次数: 4)
发表于 2009-8-14 22:47:35 | 显示全部楼层 来自: 中国上海

我做的

我做的题目!怎么不能上传图片啊!!!
/ {0 S' x) L6 B2 m, q7 x
5 \! v. w. h# E5 A[ 本帖最后由 xiangzanyang 于 2009-8-15 02:40 编辑 ]
1024.png
ffff.jpg

lia.rar

581.99 KB, 下载次数: 0

数模

发表于 2009-8-15 02:52:23 | 显示全部楼层 来自: 中国台湾
支持,練習一下,時間不多!, E: C- T) M6 ^; d0 ]& G

% d, T7 }( d; [, S0 z5 k( V 2009-8-15 上午 02-46-52.png
' l7 |5 s, _/ J; b6 o. S3 W4 [
: @+ q3 C" z4 n; p5 A 2009-8-15 上午 02-47-38.png

1024CC1.rar

389.73 KB, 下载次数: 4

发表回复
您需要登录后才可以回帖 登录 | 注册

本版积分规则


Licensed Copyright © 2016-2020 http://www.3dportal.cn/ All Rights Reserved 京 ICP备13008828号

小黑屋|手机版|Archiver|三维网 ( 京ICP备2023026364号-1 )

快速回复 返回顶部 返回列表