QQ登录

只需一步,快速开始

登录 | 注册 | 找回密码

三维网

 找回密码
 注册

QQ登录

只需一步,快速开始

展开

通知     

查看: 5705|回复: 31
收起左侧

[讨论] 典型的二通插装阀系统图 高手指教 谢谢

[复制链接]
发表于 2009-1-13 21:05:21 | 显示全部楼层 |阅读模式 来自: 中国云南玉溪

马上注册,结识高手,享用更多资源,轻松玩转三维网社区。

您需要 登录 才可以下载或查看,没有帐号?注册

x
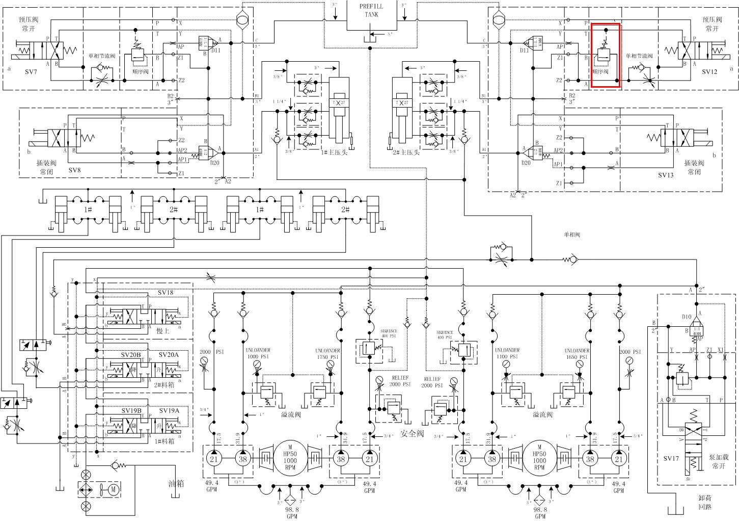
请高手指教 红框部分顺序阀的作用 把顺序阀剖面图附上 弹簧经常断 ???不好意思 图太大 麻烦点击看吧!!; X  t7 D5 \( \0 p- ~* A. G) h
$ Z+ F! v- C" C0 g1 M
[ 本帖最后由 jckkk 于 2009-1-13 21:15 编辑 ]
未命名.JPG
未命名1.JPG
未命名2.JPG
发表于 2009-1-13 22:29:50 | 显示全部楼层 来自: 中国北京
没看懂。好像是个顺序盖板,还是反装的。有高手来给解释一下吧。
 楼主| 发表于 2009-1-14 02:05:26 | 显示全部楼层 来自: 中国云南玉溪
这是一套美国fishburne公司为打叶复烤预压机设计的系统原理图 ,也就是压烟包用的 200kg一箱烟叶,和http://www.3dportal.cn/discuz/viewthread.php?tid=629342有很多类似的地方 只是实现方式有差异,用一个常开插装阀代替了充液阀,顺序阀的作用我的理解是在烟叶保压(此时常开插装阀高压关闭)完成后,提供打开常开插装阀的基本压力用的 ,但经常插装式顺序阀弹簧会断 ,按照原理图,我理解顺序阀可以不要 ,只是会影响工作周期,问了很多搞液压的,都说不太明白,请论坛的兄弟们讨论一下,先谢谢了!
6 q8 F: E* k8 H4 x还是把上面网址的图一起贴上 ,供大家讨论!!, f( P* {- p+ J# h: x
6 A0 D. z; x9 J  L8 n+ c; K
[ 本帖最后由 jckkk 于 2009-1-14 02:11 编辑 ]
20081214_d873ff25a04c8b1db20fG1XTQhaNedeE.jpg
发表于 2009-1-14 10:42:54 | 显示全部楼层 来自: 中国浙江绍兴
弹簧折断一般是压力调整不当,阻尼孔堵塞所引起的。
发表于 2009-1-14 10:55:15 | 显示全部楼层 来自: 中国北京
顺便问一下啊 楼主的顺序阀不应是在插装阀上的盖板上么 楼主的顺序阀图片什么意思啊
# Q# A  ?" i6 l/ }还有原理图中AP2应该是空心的 AP1应该是实心的吧 即AP1为控制插件的α吧
9 H* w' n+ c2 _& J, K" V6 r/ Z" f, U( A3 U6 u7 x& X2 b
[ 本帖最后由 zuozuo520 于 2009-1-14 11:05 编辑 ]
 楼主| 发表于 2009-1-14 21:53:54 | 显示全部楼层 来自: 中国云南玉溪
原帖由 zuozuo520 于 2009-1-14 10:55 发表 http://www.3dportal.cn/discuz/images/common/back.gif
3 t4 {! J- B8 F6 ~+ w- s顺便问一下啊 楼主的顺序阀不应是在插装阀上的盖板上么 楼主的顺序阀图片什么意思啊3 m6 R0 N3 a7 S6 S4 B0 Q$ E
还有原理图中AP2应该是空心的 AP1应该是实心的吧 即AP1为控制插件的α吧

5 w" T" f4 |( S/ o8 I! p控制上腔的插装阀是AP* h' D- p  o) c* h( k% U
控制下腔的是插装阀的AP1;AP2用螺塞堵住。顺序阀是叠加式安装,最上面是换向阀(vickers),依次是节流阀(vickers)、顺序阀(sauer-danfoss),插装阀(vickers),请高手继续发言!
 楼主| 发表于 2009-1-14 21:56:47 | 显示全部楼层 来自: 中国云南玉溪
原帖由 zjxiaoming 于 2009-1-14 10:42 发表 http://www.3dportal.cn/discuz/images/common/back.gif% w) ^0 p' C8 M$ ^5 N* U
弹簧折断一般是压力调整不当,阻尼孔堵塞所引起的。

- `* N/ Q1 g+ q/ f兄弟的解释我会重视,顺序阀频繁动作,最少一分钟要工作一次!因为一分钟一包烟!!
发表于 2009-1-14 23:21:45 | 显示全部楼层 来自: 中国天津
节流阀(vickers)、顺序阀(sauer-danfoss)阻尼,要搭配好.
 楼主| 发表于 2009-1-14 23:54:25 | 显示全部楼层 来自: 中国云南玉溪
原帖由 cn9696 于 2009-1-14 23:21 发表 http://www.3dportal.cn/discuz/images/common/back.gif
1 C. H6 \& c& E7 i3 e节流阀(vickers)、顺序阀(sauer-danfoss)阻尼,要搭配好.

$ x9 E- }  W" D5 D* ^请兄弟好好给我讲讲这个顺序阀的作用(在这个系统中),我喜欢打破砂锅问到底,呵呵
发表于 2009-1-18 00:16:12 | 显示全部楼层 来自: 中国天津
我理解.此阀起预卸压得作用.配合好主阀的开启时间.可能会有改善.
 楼主| 发表于 2009-1-18 11:35:10 | 显示全部楼层 来自: 中国云南玉溪
原帖由 cn9696 于 2009-1-18 00:16 发表 http://www.3dportal.cn/discuz/images/common/back.gif
& E7 N8 D# p. ~我理解.此阀起预卸压得作用.配合好主阀的开启时间.可能会有改善.

/ e6 j& l: }: p, p, e谢谢 顺序阀的调定压力是为了在常开插装阀从保压-----泄压时作用在插装阀B口的压力,应该可以看做一个蓄能器,可弹簧断裂应该怎么理解?怎样考虑从保压-----泄压的冲击问题?
发表于 2009-1-18 23:22:09 | 显示全部楼层 来自: 中国天津
调定压力调定多少为合适.说明书上有没有.主伐开启冲击能降到多少.高频下弹簧承受冲击会不会过大.我理解.配合主阀开启.缩短动作时间.可能会有改善..能否贴张照片?
% S) A5 \/ M# Y9 H: ?, K5 O
& a# M( T8 O* d5 _" ~[ 本帖最后由 cn9696 于 2009-1-18 23:30 编辑 ]
 楼主| 发表于 2009-1-18 23:35:47 | 显示全部楼层 来自: 中国云南玉溪
调定压力调定(阀设计1.4bar--24bar)多少为合适.说明书上有没有(说明书没有).主伐开启冲击能降到多少(保压压力1500psi-----0).高频下弹簧是那种状态.我理解.配合好主阀的开启时间.可能会有改善, ?+ x, _4 _: e" G+ I. w
请问下图cracking pressure的含义 是开启压力 还是弹簧破裂的压力% v/ j) b8 \: v8 E8 g
+ h( V+ z' N2 @) B6 p& t2 P' N
[ 本帖最后由 jckkk 于 2009-1-19 00:35 编辑 ]
未命名.JPG
发表于 2009-1-19 23:26:21 | 显示全部楼层 来自: 中国天津
可试试在Z1处加一阻尼.仅供参考.
 楼主| 发表于 2009-1-20 00:14:10 | 显示全部楼层 来自: 中国云南玉溪
原帖由 cn9696 于 2009-1-19 23:26 发表 http://www.3dportal.cn/discuz/images/common/back.gif
  U) Y6 {/ s, h! W/ e9 x可试试在Z1处加一阻尼.仅供参考.

, f3 ~- G, I# |5 S! H) L谢谢 这样考虑过 现在我们在Z1口安装了可以单向进入顺序阀的单向阀 效果还可以!请问加阻力孔会影响顺序阀的设定压力吗 ?
发表于 2009-1-20 09:59:38 | 显示全部楼层 来自: 中国江苏无锡
我粗略的看了一下!顺序阀应该是保压用呀!提供一个背压!加阻尼应该不会影响压力的!不过你可以换一个同尺寸大一个压力级的顺序阀
 楼主| 发表于 2009-1-20 11:31:26 | 显示全部楼层 来自: 中国云南玉溪
原帖由 wuwanfu 于 2009-1-20 09:59 发表 http://www.3dportal.cn/discuz/images/common/back.gif3 V; Q3 x# d- N- o6 ?. d$ z
我粗略的看了一下!顺序阀应该是保压用呀!提供一个背压!加阻尼应该不会影响压力的!不过你可以换一个同尺寸大一个压力级的顺序阀

5 Y* E+ j6 C% B现在用的是c级的,以后我用d级看看 !顺序阀我的理解是在油缸上腔卸压时保证有足够的压力打开上腔保压的插装阀!!
 楼主| 发表于 2009-2-24 12:42:26 | 显示全部楼层 来自: 中国云南玉溪

一位液压专家的理解,请大家讨论

下面是他的原话:# B4 s# O5 U+ h: j
经重新查阅了图纸,对该液压系统有了新的理解。/ `% n: w" `# W% a2 C- \- P- \9 F
主油缸工作过程:SV12+、SV13+油缸下行;SV12-、SV13-油缸上行。( J4 A$ r3 p9 p1 z' Y9 Z
我认为单向节流阀及顺序阀的作用是用来将油缸上腔压力平稳卸压的,本来使用节流阀就能卸压,但是节流阀很难调整
- K6 E- S4 a* K) W卸压过程,SV12换向时,压力就会迅速下降,插装阀D11就会迅速打开,这样势必引起油缸的强烈振动,我们以前制造的一台600吨专用压机也存在着同样的问题。该顺序阀的作用是向插装阀至节流阀这段油路补充油液,当油缸上腔压力大于顺序阀的设定值,油液将会不断补充,直至压力低于设定值为止,这样就能实现上腔压力平稳卸压了。6 _* t6 ~9 v; J: q% m
  张工不妨做个试验,将顺序阀的开启压力调的很高(等于把阀关死),油缸上行时冲击就会很大。: S( p; \, S; v& u* d5 B
  另外,当SV12+时,高压压力是直接作用在顺序阀的出口的,长期使用会引起该阀损坏,所以建议在该阀出口处安装单向阀。1 _$ l/ a' P. w2 S  O' X
  如果顺序阀弹簧断裂,该阀进出口相通,上腔任何压力都作用在插装阀D11上,会引起该阀的不稳定,当然会引起油缸上行是的稳定性,会产生爬行、振动等现象。
发表于 2009-2-24 13:20:07 | 显示全部楼层 来自: 中国北京
你把你后面的单向节流阀流量调大,或者顺序阀前面加一个节流阀(最好不要加),这个是设计的时候过于理想化了或者调试的时候没有调好(再说也难调,不可能在厂内这么试验系统的),没有考虑到疲劳寿命。你说的经常断应该不是没有规律的,基本上寿命和你工作次数直接联系的。后面的单向节流阀流量太小的话,顺序阀出来的油会影响插装阀的开启时间的。你还何以R2口外接一个4通的电磁换向阀来卸高压油,还有很多方法都能解决疲劳断裂问题,不过这样就不和谐了。 呵呵
3 D  I$ }! L6 a% S9 x. r1 D3 f( N$ A+ X
[ 本帖最后由 jinxialover 于 2009-2-24 13:38 编辑 ]
 楼主| 发表于 2009-2-24 14:11:33 | 显示全部楼层 来自: 中国云南玉溪
实质是 插装阀进出口A、B和顺序阀并联 顺序阀的作用问题?分阶段泄压,高压从顺序阀泄压,低于顺序阀调定压力后,由插装阀阀芯复位泄压!可以这样理解吗????????
发表于 2009-2-24 15:35:57 | 显示全部楼层 来自: 中国北京
是用来瞬间卸掉一部分所谓高压油的,不卸也没有多大关系的。但是你要是油量够大的话 会影响插装阀的开启时间与速度,所以要你后面的单向节流阀调大一点,但是也不能太大,太大会带来点冲击的。动作的过程中来调比较适合。要注意听声音,要是你对阀开启一些声音不太熟悉的话,可能调的比较费事。另外你加单向阀也起到阻尼的作用的。
 楼主| 发表于 2009-2-24 15:46:38 | 显示全部楼层 来自: 中国云南玉溪
原帖由 jinxialover 于 2009-2-24 15:35 发表 http://www.3dportal.cn/discuz/images/common/back.gif3 b5 ~+ m% H& w" F
是用来瞬间卸掉一部分所谓高压油的,不卸也没有多大关系的。但是你要是油量够大的话 会影响插装阀的开启时间与速度,所以要你后面的单向节流阀调大一点,但是也不能太大,太大会带来点冲击的。动作的过程中来调比较适 ...

- f6 o9 B( A  C; z( u非常谢谢!
) n- d' n, Y2 D. ^3 P现在我们的产品是danfoss的顺序阀,生产厂家经过改进后是在顺序阀的进口安装了一个单向阀!作用应该是防止顺序阀进口压力突降对顺序阀弹簧和弹簧支座的影响!这是不是比安装节流阀更好?
发表于 2009-2-27 10:22:53 | 显示全部楼层 来自: 中国北京
原帖由 jckkk 于 2009-2-24 15:46 发表 http://www.3dportal.cn/discuz/images/common/back.gif. d, o: i. S3 V. ]) F) K% w

& p/ i$ r8 A1 ~- N3 \, j非常谢谢!% k6 p8 [5 U! P! O7 H" }; f4 ^, c
现在我们的产品是danfoss的顺序阀,生产厂家经过改进后是在顺序阀的进口安装了一个单向阀!作用应该是防止顺序阀进口压力突降对顺序阀弹簧和弹簧支座的影响!这是不是比安装节流阀更好?

$ x# A2 l4 Y: A这个无法给你提供更多的东西了,知道也不会说的。你该找设备供应商问去了,谁卖你东西你就找谁吧 ,因为你的设备不是国产的,开始的时候就把国内的排斥了,呵呵。我只是我们公司的一个售后,不是别的公司的售后。
 楼主| 发表于 2009-2-27 12:59:50 | 显示全部楼层 来自: 中国云南玉溪
原帖由 jinxialover 于 2009-2-27 10:22 发表 http://www.3dportal.cn/discuz/images/common/back.gif
" `0 U% R1 H+ O7 N( n# \  D1 l( b0 R  U/ s
这个无法给你提供更多的东西了,知道也不会说的。你该找设备供应商问去了,谁卖你东西你就找谁吧 ,因为你的设备不是国产的,开始的时候就把国内的排斥了,呵呵。我只是我们公司的一个售后,不是别的公司的售后。

9 ^" a& j* O( J9 N谢谢 非常理解!技术的东西永远面临这样的问题!
, B6 I) z3 p, ]5 A: g2 [1 {
; s0 x+ ^" C. K" G3 I1 A" E0 |1 [  B" T[ 本帖最后由 jckkk 于 2009-2-27 13:03 编辑 ]
发表于 2009-3-1 22:52:08 | 显示全部楼层 来自: 中国天津
其实.插装系统现场的调试很重要.调节后的差异也很大.你的问题只有在现场解决.
发表回复
您需要登录后才可以回帖 登录 | 注册

本版积分规则


Licensed Copyright © 2016-2020 http://www.3dportal.cn/ All Rights Reserved 京 ICP备13008828号

小黑屋|手机版|Archiver|三维网 ( 京ICP备2023026364号-1 )

快速回复 返回顶部 返回列表