QQ登录

只需一步,快速开始

登录 | 注册 | 找回密码

三维网

 找回密码
 注册

QQ登录

只需一步,快速开始

展开

通知     

查看: 1090|回复: 1
收起左侧

[求助] solidwork2008sp0做工程图时为什么总是错乱?

[复制链接]
发表于 2009-5-16 09:54:35 | 显示全部楼层 |阅读模式 来自: 中国江苏苏州

马上注册,结识高手,享用更多资源,轻松玩转三维网社区。

您需要 登录 才可以下载或查看,没有帐号?注册

x
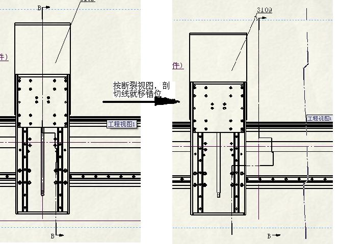
solidwork2008sp0做工程图时为什么总是错乱?
; R# y8 e' x0 S4 Q9 _; G/ v' E标注好的尺寸、画好的视图、中心线到处乱跑!
 楼主| 发表于 2009-5-16 12:57:16 | 显示全部楼层 来自: 中国江苏苏州
只要按断裂视图就出错:3 }  N, h6 c) j6 [8 U" W) O' G+ c! D

# E/ a; C+ ^$ f. |  B$ I' R OK.JPG
发表回复
您需要登录后才可以回帖 登录 | 注册

本版积分规则


Licensed Copyright © 2016-2020 http://www.3dportal.cn/ All Rights Reserved 京 ICP备13008828号

小黑屋|手机版|Archiver|三维网 ( 京ICP备2023026364号-1 )

快速回复 返回顶部 返回列表