QQ登录

只需一步,快速开始

登录 | 注册 | 找回密码

三维网

 找回密码
 注册

QQ登录

只需一步,快速开始

展开

通知     

查看: 3167|回复: 16
收起左侧

[已解决] 装配图的明细表

[复制链接]
发表于 2009-5-7 11:09:56 | 显示全部楼层 |阅读模式 来自: 中国浙江宁波

马上注册,结识高手,享用更多资源,轻松玩转三维网社区。

您需要 登录 才可以下载或查看,没有帐号?注册

x
1、大家好,在做装配图时,有插入EXCEL表的功能,但是这个表是在装配图的图幅内,有什么方法,让它单独在一张A4或A3内,因为装配图本来图幅有限,再放明细表就非常不合理。/ v8 \( @3 l: k5 |9 d
2、在作工程图时,要写一引起“技术要求”,这个“技术要求”每张工程图都是大同小异,有什么方便的方法,可以直接写到工程图中。
发表于 2009-5-7 11:22:35 | 显示全部楼层 来自: 中国河南新乡
第一个不太明白如果单独在一个图框内的话,你就可以新建一个模板然后导入表格即可
( E; F4 p7 z& o第二个,很简单,就是在你的SW安装目录下的每个常用的模板里面把常用的技术要求写入即可!这样以后每次调用时都会自动带上这个技术要求,如有其它特殊要求也可直接在里面更改。

评分

参与人数 1三维币 +3 收起 理由
hahap + 3 应助

查看全部评分

发表于 2009-5-7 12:34:03 | 显示全部楼层 来自: 中国广东佛山
技术要求方面可做成模板,下次用就不用再写了啊
发表于 2009-5-7 12:55:29 | 显示全部楼层 来自: 中国湖南长沙
可以直接做成模板形式,以后用时再导入
 楼主| 发表于 2009-5-11 15:15:58 | 显示全部楼层 来自: 中国浙江宁波
谢谢!
 楼主| 发表于 2009-5-14 16:42:31 | 显示全部楼层 来自: 中国浙江宁波
明细表好像复制不了
 楼主| 发表于 2009-5-14 16:49:23 | 显示全部楼层 来自: 中国浙江宁波
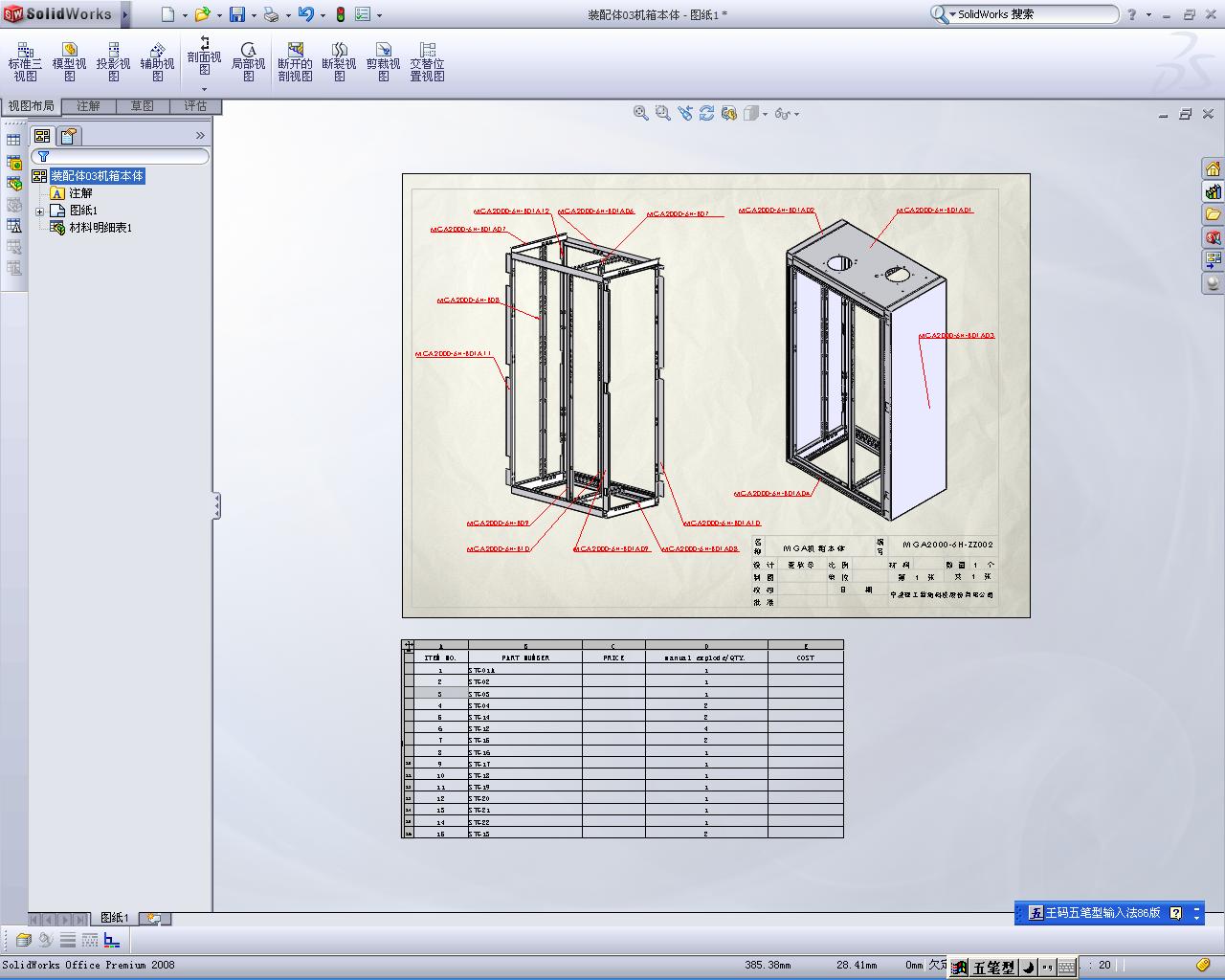
附图,明细表不能在另一张图纸上显示,怎么办?
未命名.JPG
发表于 2009-5-14 16:56:35 | 显示全部楼层 来自: 中国浙江宁波

回复 7# 囡囡娘 的帖子

技术性及技术说明可以做成块,这样子你常用的一些东西可以放在库里,你想用的时候就可以调出来,( I/ d7 s* a  _, y# Z  }- e9 q
明细表最笨的办法可以引出excel后在打印出来~~
 楼主| 发表于 2009-5-14 17:00:32 | 显示全部楼层 来自: 中国浙江宁波
"明细表最笨的办法可以引出excel后在打印出来~~",明细表我想放在一个图幅,有公司名字还有日期等
发表于 2009-5-14 17:01:58 | 显示全部楼层 来自: 中国浙江宁波

回复 3# 寂静天花板 的帖子

加了图纸啊``但是COPY不过来啊`
发表于 2009-5-14 22:58:24 | 显示全部楼层 来自: 中国浙江杭州
楼主说的意思是做零部件汇总表!
发表于 2009-5-15 09:10:11 | 显示全部楼层 来自: 中国北京
点该图纸,复制,粘贴,然后删除视图,只留下明细表,将图幅改为A4
发表于 2009-5-15 09:11:41 | 显示全部楼层 来自: 中国北京
学SW,搞三维,得多动脑筋,基本上在CAD上的东西我们都能实现。
发表于 2009-5-15 11:36:17 | 显示全部楼层 来自: 中国北京
新建一张图纸,插入视图,再插入明细表,然后再把视图给删了
$ O3 k& q3 P8 Z+ U4 e mingxibiao.jpg
 楼主| 发表于 2009-8-31 16:10:18 | 显示全部楼层 来自: 中国浙江宁波
楼上,聪明,不过明细表不能换页,如果是一页的话,你这方法好,但是如果是几页,不知怎么分呢?
发表于 2009-8-31 16:41:59 | 显示全部楼层 来自: 中国山东济南
换张大点的纸不就好了,那么多零件舍不得张纸吗
发表于 2009-9-1 12:13:25 | 显示全部楼层 来自: 中国四川成都
工程图的问题到现在为止还没有研究过
发表回复
您需要登录后才可以回帖 登录 | 注册

本版积分规则


Licensed Copyright © 2016-2020 http://www.3dportal.cn/ All Rights Reserved 京 ICP备13008828号

小黑屋|手机版|Archiver|三维网 ( 京ICP备2023026364号-1 )

快速回复 返回顶部 返回列表