QQ登录

只需一步,快速开始

登录 | 注册 | 找回密码

三维网

 找回密码
 注册

QQ登录

只需一步,快速开始

展开

通知     

查看: 5072|回复: 25
收起左侧

[分享] [附图]我的经验:标注直径时手动直接输入上下偏差的方法

[复制链接]
发表于 2009-1-5 13:20:52 | 显示全部楼层 |阅读模式 来自: 中国辽宁大连

马上注册,结识高手,享用更多资源,轻松玩转三维网社区。

您需要 登录 才可以下载或查看,没有帐号?注册

x
说明下:  E$ m0 C7 A: w/ k* A- ?4 l
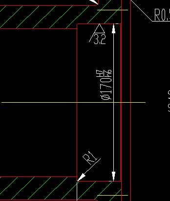
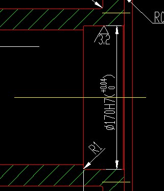
我的标注字体高度为3.5,其中下面的例子中的H、S必须大写。\H1.8指公差的字体高度为1.8,\S表示上下偏差,\H3.5表示右侧括号的高度,即字体的高度
- }8 U: s, N! U) D, p- Z" M, ?例子:%%C<>H7(\H1.8;\S+0.04^ 0;\H3.5;)7 R, M1 W5 e' I/ c3 P" U
大家可以在标注的时候试试看
$ n: \: p  H! M
0 `: ^" {( |( b4 M( p5 g编辑水平分数形式的可见第三、四幅截图- S4 `. K, ]' m1 D- k
例子:%%c<>\A1;\H1.7;\SH7/h6" L" J+ n" I# V/ `. d5 m2 c* G
1 x' m5 t1 i- ^1 k9 M. e
[ 本帖最后由 闹心 于 2009-1-5 13:30 编辑 ]
1.jpg
2.jpg
3.jpg
4.jpg

评分

参与人数 1三维币 +3 收起 理由
wang2003 + 3 技术讨论

查看全部评分

发表于 2009-1-5 13:34:31 | 显示全部楼层 来自: 中国黑龙江齐齐哈尔
标注时直接选择“M”,输入文本:%%C<>H7+0.04  ^0[注意:+0.04后要空两格(半角输入情况下)]然后选定+0.04  ^0后在文字对话框下点“a/b”即可。7 P% O2 i( t/ v6 a* a
9 w8 {# b8 u; x6 Q
[ 本帖最后由 szm5757 于 2009-1-5 13:44 编辑 ]
1.jpg
发表于 2009-1-5 15:30:40 | 显示全部楼层 来自: 中国天津
谢谢楼主 学习下
发表于 2009-1-5 21:57:02 | 显示全部楼层 来自: 中国福建厦门
哇!楼主这招厉害!
发表于 2009-1-6 08:04:17 | 显示全部楼层 来自: 中国广东深圳
这样挺哆嗦的,还是直接用CAD公差标注方便.
发表于 2009-1-6 08:15:52 | 显示全部楼层 来自: 中国上海
这招早就会了,用这个方法修改的时候比较快。大量的标准同一公差还是用公差标注方便。
发表于 2009-1-6 08:41:53 | 显示全部楼层 来自: 中国重庆
感觉比较麻烦,我一般是直接在旁边再写两个字号小点的字作公差
发表于 2009-1-6 08:58:25 | 显示全部楼层 来自: 中国广东中山
这样感觉效率还低
发表于 2009-1-6 09:33:21 | 显示全部楼层 来自: LAN
感觉因每个人的情况习惯而异,
发表于 2009-1-6 20:59:23 | 显示全部楼层 来自: 中国甘肃兰州
楼主,左侧括号的高度的是怎么定义的啊?
发表于 2009-1-7 14:17:49 | 显示全部楼层 来自: 中国江苏苏州
有点麻烦,直接在公差那输入也一样
发表于 2009-1-7 19:52:45 | 显示全部楼层 来自: 中国安徽合肥
谢谢楼主的分享,又知道一种方法了
发表于 2009-1-7 23:14:23 | 显示全部楼层 来自: 泰国
這個不錯呢   一會來試試看    真是好方法呀     謝謝了
发表于 2009-1-8 08:50:08 | 显示全部楼层 来自: 中国福建泉州
不错也是一种新的方法不过本人还是不习惯用这种。
发表于 2009-1-10 11:04:02 | 显示全部楼层 来自: 中国山东淄博
有点麻烦,直接在公差那输入也一样
发表于 2009-1-10 12:26:00 | 显示全部楼层 来自: 中国江苏苏州
公差少的时候,还是采用直接编辑的比较快点,我们在标注样式里面设置好了标注样式和比例后,编辑直接在后面输入:+0.2^-0.1然后叠加就可以& Z0 C2 ~0 Y; o! z! C; `) k
如果采用公差标注,有时公差不统一,要建立很多个替代,容易出错' h  H2 `# Z9 P  C
闹心的这个方法如果可以匹配还可以;
发表于 2009-1-10 15:11:36 | 显示全部楼层 来自: 中国安徽合肥
有好用的,为什么用这个呢
; s. b/ h3 m( J% ?, n* I( l/ j不过可以玩玩
发表于 2009-1-14 10:55:43 | 显示全部楼层 来自: 中国山东泰安
不错的经验,谢谢楼主分享
发表于 2009-1-15 23:05:04 | 显示全部楼层 来自: 泰国
這方法也不錯   支持
发表于 2009-1-15 23:34:54 | 显示全部楼层 来自: 中国上海
厉害,学习一下
发表于 2009-1-16 10:32:20 | 显示全部楼层 来自: 中国北京
LZ的方法很标准,用CAD公差标注呢也是可以的,当然这个完全取决于个人习惯,就像大家用快捷键和用鼠标点命令是一样的!!!
发表于 2009-1-16 12:45:25 | 显示全部楼层 来自: 中国湖北孝感
我也是用2楼方法,挺方便的
发表于 2009-1-16 16:07:35 | 显示全部楼层 来自: 中国辽宁沈阳
作为过硬功夫,应该掌握;作为日常还应用专业工具
 楼主| 发表于 2009-1-20 14:43:51 | 显示全部楼层 来自: 中国辽宁大连
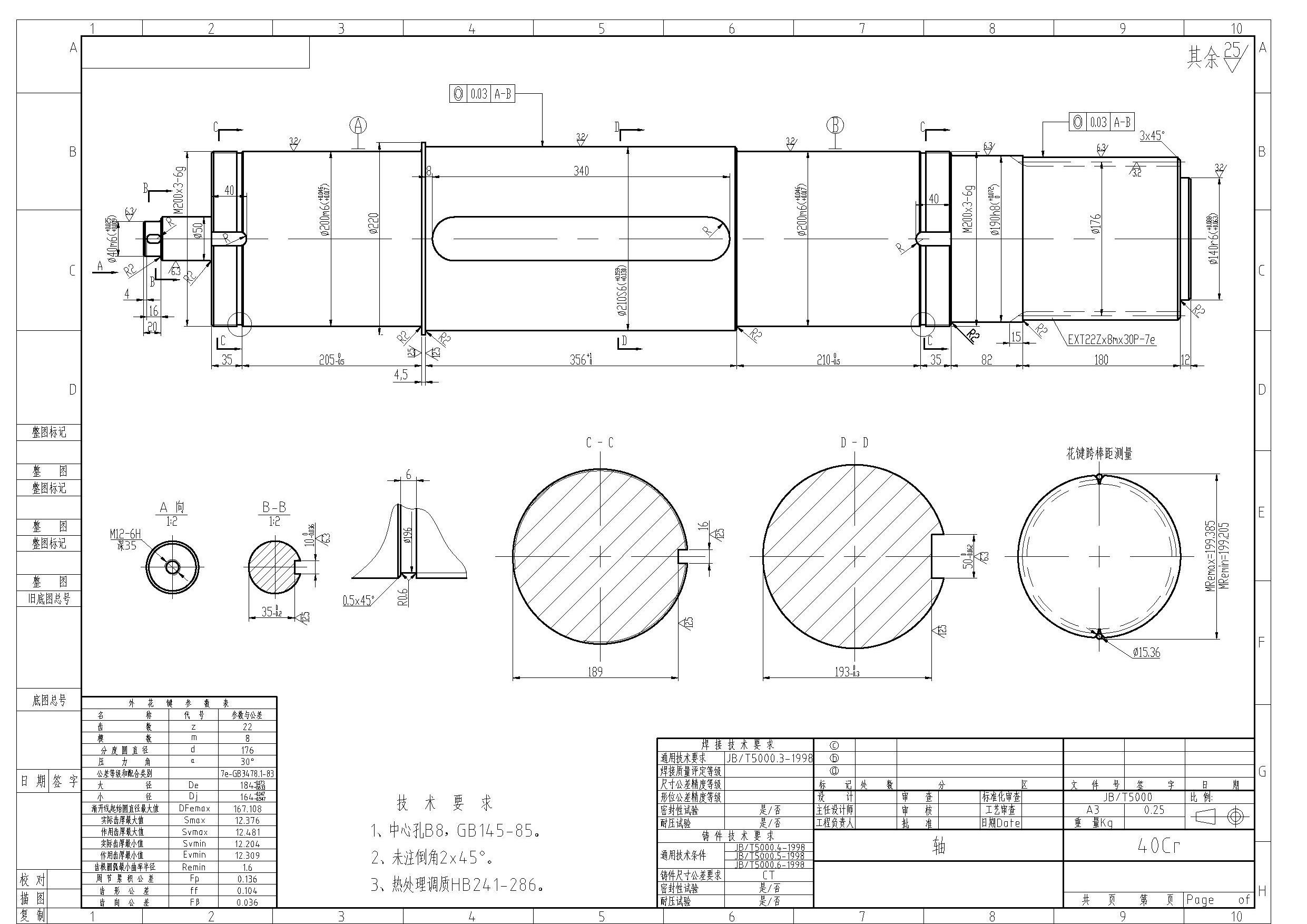
用这种方法标注一幅图很多公差的很方便的,附上一张样图,大家可以看看0 F! E( @+ Z5 w: J
; |, i+ k/ n: j0 t& q3 Z! ~
[ 本帖最后由 闹心 于 2009-1-20 14:49 编辑 ]
示例图.jpg

示例图.dwg

98.32 KB, 下载次数: 5

示例图.pdf

67 KB, 下载次数: 5

发表于 2009-1-20 15:03:59 | 显示全部楼层 来自: 中国上海
谢谢楼主,又知道一种方法了
发表回复
您需要登录后才可以回帖 登录 | 注册

本版积分规则


Licensed Copyright © 2016-2020 http://www.3dportal.cn/ All Rights Reserved 京 ICP备13008828号

小黑屋|手机版|Archiver|三维网 ( 京ICP备2023026364号-1 )

快速回复 返回顶部 返回列表