QQ登录

只需一步,快速开始

登录 | 注册 | 找回密码

三维网

 找回密码
 注册

QQ登录

只需一步,快速开始

展开

通知     

查看: 2824|回复: 3
收起左侧

[分享] 三维工程设计图纸(钢结构桁架)

 关闭 [复制链接]
发表于 2008-11-29 11:31:58 | 显示全部楼层 |阅读模式 来自: 中国江苏徐州

马上注册,结识高手,享用更多资源,轻松玩转三维网社区。

您需要 登录 才可以下载或查看,没有帐号?注册

x
霖坊3d工作室
; ?# c* v, p: h3 c, lhttp://www.linfang3d.cn/html/Project.html
8 X( C5 {4 Q5 z5 p1 F4 C三维视频实例教程下载" O7 C( E3 s4 \+ X5 s
三维设计工程图纸参考
# v- Q7 A7 A* Lcad三维技术交流
" x6 b( {# h% X***请各位多多支持***
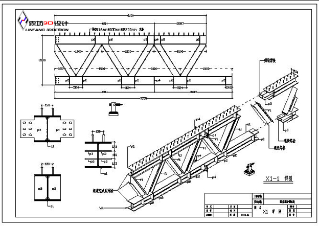
# M7 ?, d% Q5 R# e. H 01.jpg 00.jpg 97.jpg 99.jpg 30.jpg 26.jpg 27.jpg 28.jpg
 楼主| 发表于 2008-11-29 13:59:36 | 显示全部楼层 来自: 中国江苏徐州
有很多工程实例,,已施工....
- s# K; m7 h/ J/ N  R+ ?/ a8 d4 Z/ Yhttp://www.linfang3d.cn/html/pro.html
0 r8 o" z  e3 ` 02.jpg 84.jpg 26.jpg
发表于 2008-11-29 14:36:09 | 显示全部楼层 来自: 中国四川成都
霖坊3d工作室的,非常不错,其网页还有不少有用三维cad实用视频教程下载。
发表于 2008-11-29 14:44:53 | 显示全部楼层 来自: 中国广东佛山
做的很不错,不知你们工作室有多少设计师?
发表回复
您需要登录后才可以回帖 登录 | 注册

本版积分规则


Licensed Copyright © 2016-2020 http://www.3dportal.cn/ All Rights Reserved 京 ICP备13008828号

小黑屋|手机版|Archiver|三维网 ( 京ICP备2023026364号-1 )

快速回复 返回顶部 返回列表