QQ登录

只需一步,快速开始

登录 | 注册 | 找回密码

三维网

 找回密码
 注册

QQ登录

只需一步,快速开始

展开

通知     

查看: 1659|回复: 5
收起左侧

[求助] 托盘用SW怎么画?

[复制链接]
发表于 2008-11-4 17:05:04 | 显示全部楼层 |阅读模式 来自: 中国上海

马上注册,结识高手,享用更多资源,轻松玩转三维网社区。

您需要 登录 才可以下载或查看,没有帐号?注册

x
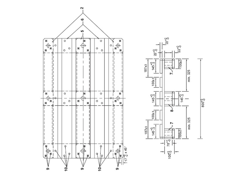
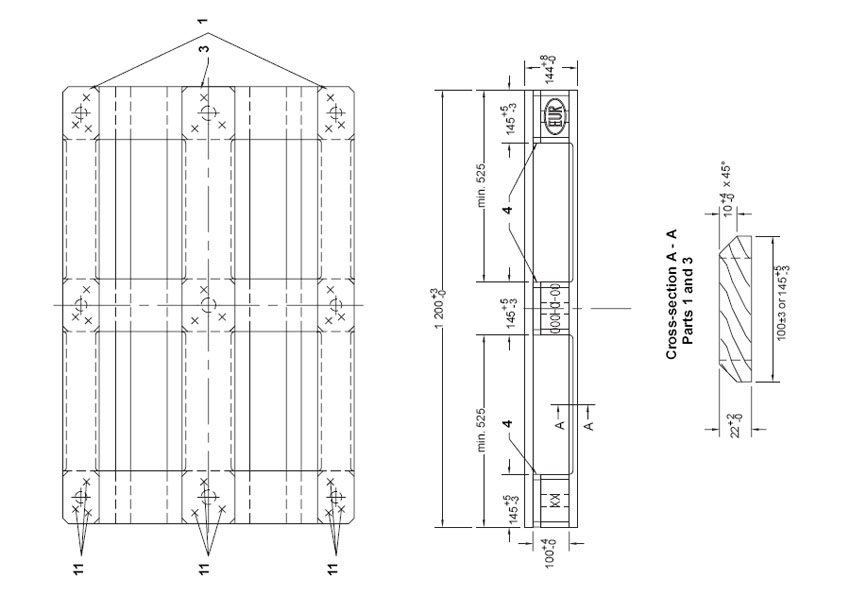
小弟刚学SW,这个托盘小弟有些问题,第一是面板上有两种规格的木板,我是先建两个零件,后组装;还是先画出整个5块板的草图,然后拉伸?  ]% E1 t5 e9 z) H6 {( A) ~6 H/ A
第二是组装的问题,我做了两个面板的零件,却没办法让他们等距分开,可能是我刚学,很多东西还不明白。- }4 ~" t" T$ e  A0 h$ q" l( q
请各位大侠帮我画画看,然后把步骤写给我,(越详细越好!)% m6 ]8 F0 K2 O, s$ k
第三是图片中的倒棱用什么来实现啊?2 S6 P, v; C2 f+ X) Z

$ b" J$ L" G( M' V* v, [2 P) o2 I) r5 `+ }2 _! S" u
谢谢!~
EPAL1.jpg
EPAL2.jpg
图形1.jpg
发表于 2008-11-4 17:08:59 | 显示全部楼层 来自: 中国福建厦门
我感觉用装配比较好。: q1 P  c7 K  O- l0 n1 ^
把一个个零件都画出来再装配起来。
发表于 2008-11-4 17:15:34 | 显示全部楼层 来自: 中国河北唐山

回复 2# panda168 的帖子

确实是,那样层次分明。
发表于 2008-11-4 19:06:55 | 显示全部楼层 来自: 中国江西萍乡
2楼不说的对,把一个个零件都画出来再装配起来。会比较方便。
发表于 2008-11-5 13:57:52 | 显示全部楼层 来自: 中国广东东莞
按你图片随便画了个! 你图片的倒棱用倒角应可以啊!
卡板.jpg

卡板800x1200.rar

318.94 KB, 下载次数: 16

发表于 2008-11-5 20:46:12 | 显示全部楼层 来自: 中国江苏徐州
直接画图比较方便省事
发表回复
您需要登录后才可以回帖 登录 | 注册

本版积分规则


Licensed Copyright © 2016-2020 http://www.3dportal.cn/ All Rights Reserved 京 ICP备13008828号

小黑屋|手机版|Archiver|三维网 ( 京ICP备2023026364号-1 )

快速回复 返回顶部 返回列表