QQ登录

只需一步,快速开始

登录 | 注册 | 找回密码

三维网

 找回密码
 注册

QQ登录

只需一步,快速开始

展开

通知     

查看: 7240|回复: 17
收起左侧

[求助] 图片上的螺旋线如何画

[复制链接]
发表于 2008-9-27 16:15:27 | 显示全部楼层 |阅读模式 来自: 中国山东青岛

马上注册,结识高手,享用更多资源,轻松玩转三维网社区。

您需要 登录 才可以下载或查看,没有帐号?注册

x
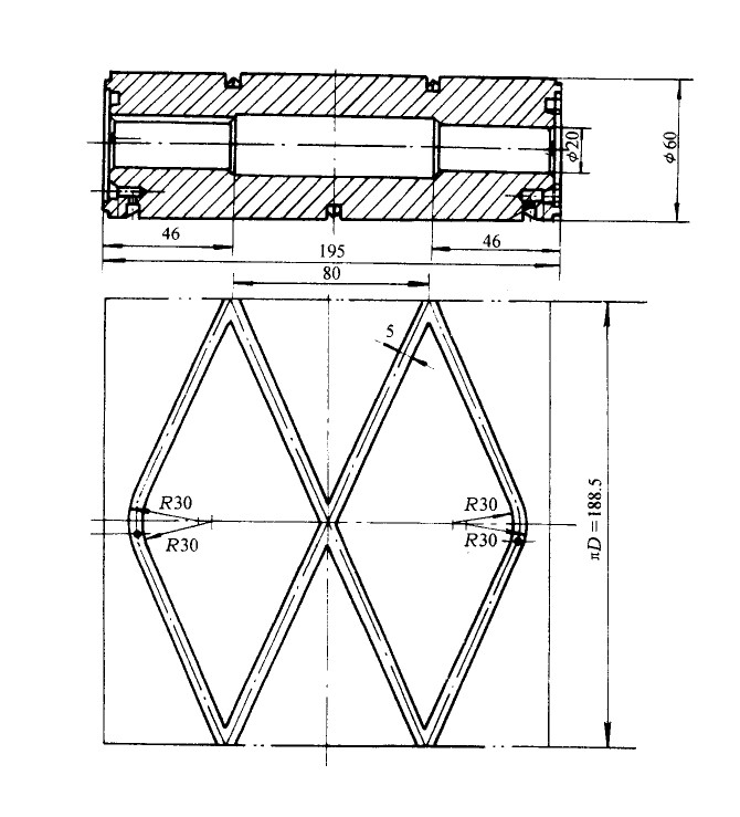
这个是卷绕机内部结构图,我从其它网站找的!上面的螺旋线,是怎么画出来的!
165_1065333_4cb5b0fe6fe644e.jpg
发表于 2008-9-27 16:18:10 | 显示全部楼层 来自: 中国河北唐山

回复 1# 胖胖的瘦猴 的帖子

这就是sw中的螺旋线切除吗?
发表于 2008-9-28 08:26:15 | 显示全部楼层 来自: 中国天津
应该是双螺旋线切出来的吧!
 楼主| 发表于 2008-9-28 13:54:02 | 显示全部楼层 来自: 中国山东青岛
我也想知道如何做出这样的螺旋线!
发表于 2008-9-28 14:02:52 | 显示全部楼层 来自: 中国广东中山

回复 5# 胖胖的瘦猴 的帖子

最基本的操作,在新建草图里画圆,插入--曲线--螺旋线。' {! H4 i0 n) W3 Y9 _
自己设置螺距及圈数、方向,确定即可。2 I4 ^8 \% O8 J

  d0 W# N" S' h 1.gif + j3 m8 v+ S% O, |5 R* Y( D

( G0 ?# Y4 _, C- A, x% ]' [6 D+ F[ 本帖最后由 hahap 于 2008-9-28 14:14 编辑 ]
 楼主| 发表于 2008-9-29 11:43:29 | 显示全部楼层 来自: 中国山东青岛
回复楼上的,这个件是个往复螺杆!轴在转动,有关滑块沿螺旋线往复运动!
发表于 2008-9-29 11:51:14 | 显示全部楼层 来自: 中国广东中山

回复 7# 胖胖的瘦猴 的帖子

只一个图片看不出你的活动机构来,还有别图不?
 楼主| 发表于 2008-9-29 12:06:08 | 显示全部楼层 来自: 中国山东青岛
这个图片是往复螺杆展开图!
2.jpg
发表于 2008-9-29 12:16:36 | 显示全部楼层 来自: 中国陕西咸阳
先做一个方向再镜像一次就行了吧,或者再做个反方向螺旋切除就可以了吧
发表于 2008-9-29 12:55:35 | 显示全部楼层 来自: 中国广东深圳
可以用扫描做出来,只是要调整角度!!
  E) ^, h3 d) E! `$ v4 Q不清楚请发邮件给我owen__chen@163.com
 楼主| 发表于 2008-9-29 14:12:52 | 显示全部楼层 来自: 中国山东青岛
谢谢楼上诸位,以及做出来了,用的插入螺旋线,两次插入螺旋线,分别是顺时针、逆时针!输入螺距、圈数,螺旋线就画出来了!再进行扫描切除,就做出来了
螺旋扫描.jpg
发表于 2008-9-30 08:11:27 | 显示全部楼层 来自: 中国江苏盐城
楼主做的那个似是而非,我也想过,用两条首尾相连的螺旋线做轨迹,一条顺时针,一条反时针。但关键的是两条螺旋线首尾相连处是圆光滑过渡的,这点我就不知道怎么弄了~~~楼主和各位大侠想过没有?
发表于 2008-9-30 16:25:45 | 显示全部楼层 来自: 中国吉林吉林市
可以在3D草图中用两条样条线链接就可以吧.....
发表于 2008-9-30 19:16:06 | 显示全部楼层 来自: 中国陕西汉中
可惜不会做这个
 楼主| 发表于 2008-10-5 16:34:31 | 显示全部楼层 来自: 中国山东青岛

回复 13# pss0902 的帖子

是存在你所说的问题!
发表于 2008-10-5 16:41:54 | 显示全部楼层 来自: 中国山东济南
同步齿带是怎么画的啊?
发表于 2010-2-6 02:29:26 | 显示全部楼层 来自: 中国江苏常州
关键是接头的地方,我们厂做都是手工编程序,接头的地方是凑出来的。希望高手能说下展开图怎么画,有了展开图在mastercam中就可以用4轴做了。谢谢1
发表于 2010-2-6 15:12:58 | 显示全部楼层 来自: 中国浙江杭州
这是两根螺旋方向相反的螺旋线,在圆柱上的距离是一样的,快到圆柱一端面时有圆柱的半圈长的连接线,所以这个滑块在圆柱一端时圆柱旋转半圈其实滑块是不动的
发表回复
您需要登录后才可以回帖 登录 | 注册

本版积分规则


Licensed Copyright © 2016-2020 http://www.3dportal.cn/ All Rights Reserved 京 ICP备13008828号

小黑屋|手机版|Archiver|三维网 ( 京ICP备2023026364号-1 )

快速回复 返回顶部 返回列表