QQ登录

只需一步,快速开始

登录 | 注册 | 找回密码

三维网

 找回密码
 注册

QQ登录

只需一步,快速开始

展开

通知     

查看: 2027|回复: 8
收起左侧

[已解决] 滚筒修复

 关闭 [复制链接]
发表于 2007-2-26 20:05:41 | 显示全部楼层 |阅读模式 来自: 中国江苏常州

马上注册,结识高手,享用更多资源,轻松玩转三维网社区。

您需要 登录 才可以下载或查看,没有帐号?注册

x
各位好:/ K* c( `# x6 X+ N) v% I/ |3 K
滚筒(滚子输送机)长度短了100MM,哪位有办法吗?8 h2 u* a3 v3 \9 M" p3 F- e& N
谢谢拉. :handshake
发表于 2007-2-27 12:56:19 | 显示全部楼层 来自: 中国云南昆明
是属于成品修复还是半成品修复,如果是半成品通过压装方式基本可以解决.成品的同轴度不易保证.
发表于 2007-2-27 17:19:18 | 显示全部楼层 来自: 中国湖北武汉
原帖由 eastlakewater 于 2007-2-26 20:05 发表
( t8 e3 Q% J  t+ l4 W$ k各位好:: H6 U7 W9 F. g- J8 ~+ H& F9 k
滚筒(滚子输送机)长度短了100MM,哪位有办法吗?
9 Y! e+ T4 A+ ?7 F, V' t4 }4 p7 q/ I谢谢拉. :handshake
! ~! x6 t) P3 M4 A6 G
再加一截,不难的。最好是加的这一截的两头设计一个可以调松紧装置(如用两根长一点的顶紧螺栓)
 楼主| 发表于 2007-2-27 20:24:57 | 显示全部楼层 来自: 中国江苏常州
成品啊,加一截太难看拉......................................
发表于 2007-3-1 09:37:46 | 显示全部楼层 来自: 中国山东青岛
在缠绕绳子的方式上想些办法!
发表于 2007-3-2 22:21:26 | 显示全部楼层 来自: 中国广东广州
多大直径啊?焊接啊,内破口,超探,
发表于 2007-3-3 11:01:39 | 显示全部楼层 来自: 中国江苏无锡
加一截,破口焊接,焊缝处上磨床磨平,应该不会影响强度与外观!
发表于 2007-3-3 11:16:55 | 显示全部楼层 来自: 中国广东汕头
原帖由 eastlakewater 于 2007-2-26 20:05 发表% M1 J& |) R- W" n  |# H
各位好:9 e: m, g8 r9 q8 Y9 G6 U) a" F
滚筒(滚子输送机)长度短了100MM,哪位有办法吗?8 z! z; M" D1 ?4 `2 ?2 B
谢谢拉. :handshake
7 F# w. E. d4 j% S' \, x& d
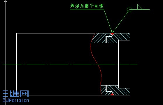
看能否这样做
Dcp_0047.jpg
发表于 2007-3-3 11:45:12 | 显示全部楼层 来自: 中国江苏无锡
估计需不着楼上的结构,直接打破口焊接、磨平就可以了,因为滚子皮带传送机的滚筒壁不是太厚。- i7 z+ s: o- h0 F+ v! m
焊接的时候要注意两截滚筒的同轴度。
4 A# J6 O. Q2 b/ R' o9 m7 \
' |/ o" ~* G2 {9 P" m$ g! S[ 本帖最后由 hanhaikuanglan 于 2007-3-3 11:47 编辑 ]
发表回复
您需要登录后才可以回帖 登录 | 注册

本版积分规则


Licensed Copyright © 2016-2020 http://www.3dportal.cn/ All Rights Reserved 京 ICP备13008828号

小黑屋|手机版|Archiver|三维网 ( 京ICP备2023026364号-1 )

快速回复 返回顶部 返回列表