QQ登录

只需一步,快速开始

登录 | 注册 | 找回密码

三维网

 找回密码
 注册

QQ登录

只需一步,快速开始

展开

通知     

查看: 3568|回复: 26
收起左侧

[求助] 这样的阀门特征建模思路是什么?

[复制链接]
发表于 2015-6-14 22:54:08 | 显示全部楼层 |阅读模式 来自: 中国北京

马上注册,结识高手,享用更多资源,轻松玩转三维网社区。

您需要 登录 才可以下载或查看,没有帐号?注册

x
本帖最后由 coleman_lee 于 2015-6-15 19:46 编辑 ; U/ T3 {( h0 o9 D+ a$ S+ D

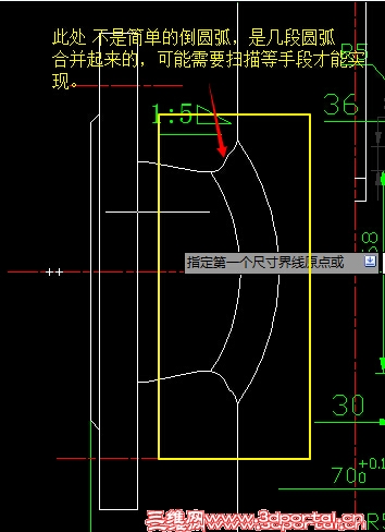
  h' {1 V) o3 d# w3 u* c! E想按照CAD图的方式进行建模,但是旋转出来并不能达到要求,扫描也进行了尝试,也没有办法,有什么思路?
  Z6 T# P* L& W* z: Z: M QQ截图20150615194150.jpg
0 A* x+ i! A$ X3 x' ?5 W
& E; z" I7 {& i. Z: j1 b4 q" O+ f三维模型隐藏了法兰,只是想重点显示出相贯线处的形状。3 C( D7 L6 C" M3 C- D
QQ截图20150615194629.jpg
" h: B5 l$ G, P! w. M" l# n& h7 `8 c2 ]* c/ N
QQ截图20150615193929.jpg
: Y; N1 K8 M7 h) m! m3 Q6 x( g- V& S! C
6 p9 n1 \  L7 `6 M  h
" ?0 e2 ?. z' s# b

; h2 u" v1 l0 e7 D2 V! ~5 Q9 C+ [$ _3 _
补充内容 (2015-6-20 12:31):) D$ G* H( G  ]: O( R8 H' b: J" e
问题在各位热心网友的帮助下已解决,我的结果见25楼。
发表于 2015-6-16 14:03:17 | 显示全部楼层 来自: 中国浙江嘉兴
本帖最后由 ryouss 于 2015-6-16 14:09 编辑 ; X) T  y. t* h& h; S

$ z0 P( a, E1 F附檔參考
3 o4 v7 A& O0 }
3 v& }3 v6 O' t4 B) t+ J1 [: h2 ?3 X# a  P; c2 Y7 F/ `
焊接管放樣.rar (121.9 KB, 下载次数: 10)
发表于 2015-6-14 23:49:36 | 显示全部楼层 来自: 中国浙江嘉兴
焊接效果嗎?( A/ ^; H: p- r: N# ]7 p

3 ^) {1 R! R3 |& Y yy.png
发表于 2015-6-15 06:33:38 | 显示全部楼层 来自: 中国山东
1,*你想要什么效果:2,最好把你的扫描图贴上看看
, u! P/ Y/ R) R; t$ p5 E) C
发表于 2015-6-15 08:05:04 | 显示全部楼层 来自: 中国山东烟台
倒个圆角吧
发表于 2015-6-15 08:19:54 | 显示全部楼层 来自: 中国辽宁盘锦
ryouss 发表于 2015-6-14 23:49 static/image/common/back.gif
- N/ R! h2 I2 \8 I焊接效果嗎?

' w2 i3 K& n8 K最好把整张图上传,好让大家知道是不是倒圆角的际线都保留,这样云里雾里多费解
发表于 2015-6-15 08:36:25 | 显示全部楼层 来自: 中国安徽芜湖
图样的设计思路和制造工艺决定了建模方法。
发表于 2015-6-15 16:20:13 | 显示全部楼层 来自: 中国湖北黄冈
1. 先拉伸长圆柱体,
9 H* u2 l# x% K4 q+ I2. 横向旋转法兰和斜锥1:5体部分,
8 ?2 Z* [& Q4 Y7 J% a* I& @3. 抽壳、倒圆弧即可。
 楼主| 发表于 2015-6-15 19:43:09 | 显示全部楼层 来自: 中国广东中山
ryouss 发表于 2015-6-14 23:49 static/image/common/back.gif) [- G) O4 W% ?* f$ N9 L/ b
焊接效果嗎?

9 g' w! s" w( W6 b; u相贯线处不是简单的圆弧或焊缝,是由几段圆弧组成的,简单的倒圆弧无法做出来。
 楼主| 发表于 2015-6-15 19:43:55 | 显示全部楼层 来自: 中国广东中山
2374 发表于 2015-6-15 06:33 static/image/common/back.gif) G2 X  p8 t7 s+ k1 v: a, V
1,*你想要什么效果:2,最好把你的扫描图贴上看看

0 J5 b( u. K9 \! _相贯线处不是简单的圆弧或焊缝,是由几段圆弧组成的,简单的倒圆弧无法做出来。4 q! t: X) F( k
我想在相贯线出画出原CAD图中的那种几段圆弧组成的形状。
 楼主| 发表于 2015-6-15 19:44:25 | 显示全部楼层 来自: 中国广东中山
sxl_sxl 发表于 2015-6-15 08:05 static/image/common/back.gif6 _) m( q3 w- h, x* t
倒个圆角吧
9 [6 r' O3 l" ^/ L4 g
相贯线处不是简单的圆弧或焊缝,是由几段圆弧组成的,简单的倒圆弧无法做出来。
$ f# \% e' c5 q$ ]6 ^0 o) X( k& f我想在相贯线出画出原CAD图中的那种几段圆弧组成的形状。
 楼主| 发表于 2015-6-15 19:47:10 | 显示全部楼层 来自: 中国广东中山
tangcarlos3d 发表于 2015-6-15 16:20 static/image/common/back.gif' A4 i) Q( }- [# g+ o- H
1. 先拉伸长圆柱体,
0 R+ _! K8 q* u& l8 Y2. 横向旋转法兰和斜锥1:5体部分,& t2 h! f; S8 T- `; {' z* [( b
3. 抽壳、倒圆弧即可。

& U* d' l- I1 D9 U& L. {, K相贯线处不是简单的圆弧或焊缝,是由几段圆弧组成的,简单的倒圆弧无法做出来。
2 t( F: I1 M) V/ L4 h; I% R' k我想在相贯线出画出原CAD图中的那种几段圆弧组成的形状。
 楼主| 发表于 2015-6-15 19:49:40 | 显示全部楼层 来自: 中国广东中山
寂静天花板 发表于 2015-6-15 09:24 static/image/common/back.gif! F6 Z, t% [* \' E, s/ A
图画错了,说明没读懂图,楼主识图堪忧,还研究什么三维呢。
4 i, N  a" g" D4 b3 N" l3 U0 a" w
不敢跟大侠辩论识图,我只求虚心求教,各位能不吝指点已很感谢。
: F+ T+ H( v5 _
9 \) q' B# J' V5 c  M; N按我原图的要求,相贯线处做出合适的圆弧形状毫无思路。
发表于 2015-6-15 20:01:00 | 显示全部楼层 来自: 中国湖北黄冈
本帖最后由 tangcarlos3d 于 2015-6-15 20:02 编辑 1 }, O: i# ]4 o5 x+ u. {% }& T
coleman_lee 发表于 2015-6-15 19:47 static/image/common/back.gif: I) R( s! G3 g; E
相贯线处不是简单的圆弧或焊缝,是由几段圆弧组成的,简单的倒圆弧无法做出来。
7 e; s3 a) W+ {0 B9 E8 h2 k我想在相贯线出画出原CA ...

" u0 {5 E* R. s. u; }* j$ K: M0 D; t9 V
不倒圆弧也可以。用你要求的截面沿相惯线扫描也可以得到所要的样子。
8 R7 i; p% \! t# v不明白的是为什么不做成简单的倒圆弧,而要用多段圆弧?
发表于 2015-6-15 20:02:42 | 显示全部楼层 来自: 中国陕西西安
左边采用相贯可以,右边必须有圆柱相交,要不然68的台阶圆会穿漏。
7 b9 r/ x4 h$ T; n- T' ?; R只能象楼主第二个图片一样做才行。
 楼主| 发表于 2015-6-15 22:09:17 | 显示全部楼层 来自: 中国浙江温州
tangcarlos3d 发表于 2015-6-15 20:01 static/image/common/back.gif
" s8 n1 [; @% B  k不倒圆弧也可以。用你要求的截面沿相惯线扫描也可以得到所要的样子。" s8 P3 F- n* g
不明白的是为什么不做成简单的倒 ...

" e6 }; Q' L) P8 z你好,感谢你的帮助:1 ^6 M0 q5 A4 ]
1.这个图纸是我用来做2D转3D联系用,原图做成几段圆弧可能是出于加强原因,或者很可能就是一个焊缝的形状,我不得而知。
. b8 z- P! \3 i2.我是相贯线扫描出错:
- p: L5 g" p4 L, G& c( ? QQ截图20150615202237.jpg
5 T# j0 F% X( \+ u# B  w+ x1 d( e
3.我用圆形草图投影到圆柱上形成一个“临时测试曲线”,扫描形状与要求不符(不同参数的图片):1 }/ m9 y2 g5 e" a( |& \+ o
QQ截图20150615200759.jpg QQ截图20150615200740.jpg 2 [  m6 n, y: Q
8 b# ~1 d( |8 a% u: S% C8 D
  e  D$ @: i, Z3 C7 l" W

3 d, V1 J' S5 J  q$ m+ i2 W
发表于 2015-6-16 09:10:40 | 显示全部楼层 来自: 中国陕西西安
coleman_lee 发表于 2015-6-15 22:09 static/image/common/back.gif
2 R, _5 i- x% C7 i, O你好,感谢你的帮助:9 d/ B3 g, [7 g9 M/ H/ \
1.这个图纸是我用来做2D转3D联系用,原图做成几段圆弧可能是出于加强原因,或者很 ...

" e+ K8 \8 F4 d按这个方法做出来的话,68的台阶圆必然会穿漏的。
发表于 2015-6-16 10:44:25 | 显示全部楼层 来自: 中国浙江嘉兴
本帖最后由 ryouss 于 2015-6-16 11:54 编辑 0 o1 [& U9 k) `0 U% y/ ?! x- n+ t

3 l' C' \9 M" w3 C4 X& q放樣可達要求嗎
1 y- S) @6 p; M, S( k% g5 Q# b! J+ K( Y" }( D) p( P: N
capture_06162015_111608.png - M# B7 Z- P; l+ k- ^* W/ g- s
" @3 c9 R/ R$ |- ^$ A6 @
capture_06162015_112618.png   |) v6 [6 T9 }8 U3 m8 K
- E! R3 X1 m/ Y$ P2 r
capture_06162015_115306.png
. A- F8 ]0 z$ @1 q/ ~* a2 }. J7 Q+ |; P) y

) K# o5 T/ f) m' J  T8 D. e$ R8 Q: g: `! M- ?0 w, O, x
发表于 2015-6-16 11:00:55 | 显示全部楼层 来自: 中国陕西西安
这样估计不行,如图示,68的台阶圆两处会穿漏的
8 m; p0 O6 a2 h3 a# S' G7 ]2 `" i/ O9 S. I2 p- I7 P
1.PNG
发表于 2015-6-16 12:25:55 | 显示全部楼层 来自: 中国湖北黄冈
楼主第3图怎么右视图是直径106,而左视图是宽度79?
 楼主| 发表于 2015-6-16 13:27:57 | 显示全部楼层 来自: 中国北京
ryouss 发表于 2015-6-16 10:44 static/image/common/back.gif( m# z$ a8 M: Y" D3 o/ A
放樣可達要求嗎
# e3 u( \6 F6 K0 j. q' x" x' T
我尝试了,我水平一般,没实现您的效果。能否传一个源文件,我学习一下。
 楼主| 发表于 2015-6-20 12:27:47 | 显示全部楼层 来自: 中国广东中山
寂静天花板 发表于 2015-6-16 14:20 static/image/common/back.gif
/ k3 Z/ w4 g  }( H看形状如果是铸管,哪个白痴设计成这样的相贯线;如果是焊管,更是吃饱了撑的,为什么不做成两个实体,为什 ...

5 s# E; |& K5 t: I: a感谢帮助,问题已解决。
 楼主| 发表于 2015-6-20 12:31:18 | 显示全部楼层 来自: 中国广东中山
问题已解决 !!!(感谢网友的热心帮助)
9 |( R, p* t+ \: j9 A解决办法:6 j% B: g  O* y: N$ }4 ]
1.在相贯线名义上的“四个象限点”处做出符合CAD要求的草图;
* r% C0 M4 [  V$ S2.放样草图依次选择四个草图作为闭环;4 c$ r8 `  C( ?" \2 v8 W
3.路径选择相贯线;  ^+ ?# _. d3 W3 o% G" ?
4.完成放样,得到形状,如下图所示:
' I2 U. \; P5 y" ]$ h. |7 b) ~) ]% t2 _( N+ Q
QQ截图20150620122137.jpg PIC-121640.png ' o; J5 m$ U- P& R
发表于 2015-6-20 13:05:43 | 显示全部楼层 来自: 中国陕西西安
coleman_lee 发表于 2015-6-20 12:31 static/image/common/back.gif
# N- O, L" n3 j0 L6 q; b: X) ^1 J问题已解决 !!!(感谢网友的热心帮助)
0 {4 x; @5 V  d: A: x解决办法:
; y" c* l4 s0 M# r1.在相贯线名义上的“四个象限点”处做出符合CAD要 ...

; M0 T0 |3 ?/ v( d0 k你继续用68的台阶圆在里面切除下看看会不会穿漏!如不穿漏,两处还有多少壁厚!
发表于 2015-6-20 13:44:58 | 显示全部楼层 来自: 中国香港
本帖最后由 大鹿 于 2015-6-20 13:46 编辑
; W6 b5 ]. O4 e* ]7 X2 k8 X: Z
0 ]/ C3 n# }% x这是平板闸阀的壳体,与下图相类似:9 u% s& s5 P" H# H' L2 m
v.JPG
/ P) n0 U- I# t0 G/ s  n楼主图中的79没有Ф开头,79不是直径,所以壳体是扁形的。
0 g; N) b8 P, H# Y  V3 N$ r) I& n6 {花了数十分钟做了一下,附件是X_T可作参考:
2 t2 C: G& A( } Flat_Gate_Valve.rar (79.74 KB, 下载次数: 12)
发表回复
您需要登录后才可以回帖 登录 | 注册

本版积分规则


Licensed Copyright © 2016-2020 http://www.3dportal.cn/ All Rights Reserved 京 ICP备13008828号

小黑屋|手机版|Archiver|三维网 ( 京ICP备2023026364号-1 )

快速回复 返回顶部 返回列表