QQ登录

只需一步,快速开始

登录 | 注册 | 找回密码

三维网

 找回密码
 注册

QQ登录

只需一步,快速开始

展开

通知     

查看: 1992|回复: 2
收起左侧

[已解决] 键槽的尺寸标注

[复制链接]
发表于 2015-6-10 12:34:14 | 显示全部楼层 |阅读模式 来自: 中国安徽蚌埠

马上注册,结识高手,享用更多资源,轻松玩转三维网社区。

您需要 登录 才可以下载或查看,没有帐号?注册

x
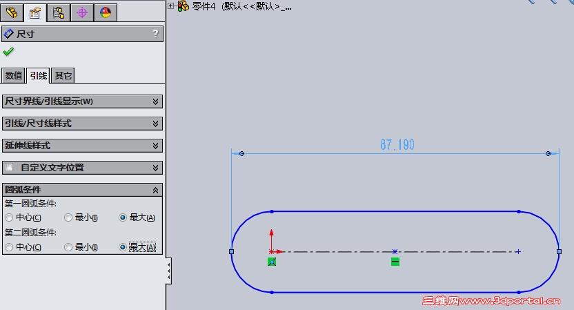
键槽的尺寸标注,有时是正常的标准,尺寸线为最大的,但是有时出现图示情况,标注的竟然是最小尺寸??
7 m3 q* W# H7 _. i0 V8 G( I请问什么情况。我要重启才正常。
( q4 l$ A8 A+ P7 C
0610.png
发表于 2015-6-10 13:12:04 | 显示全部楼层 来自: 中国江苏南京
你可以按照下图的方式标注 不需要拖动尺寸!前提是你的线性标注是点两个半圆来标注的!
- o2 O' b# y) W$ X! {" A/ ~6 b- H) j- s2 f" b4 l
平时,快捷的标注是:按住shift 键,点两个半圆  就会直接标注到最大的距离2 V0 }! t7 E0 U1 @: l) M' @

. {$ P4 b& W! w9 X, L( O" ?, @: Q5 j% G, Y. A2 Y2 ?5 Q% e
* ]4 C  w  s6 g6 J  i+ g
QQ截图20150610130848.jpg

评分

参与人数 1三维币 +3 收起 理由
阿帕奇 + 3

查看全部评分

发表于 2015-6-11 22:36:35 | 显示全部楼层 来自: 中国河北廊坊
电脑又不知道你要最大的户还是最小的,慢慢练练,这里是有操作技巧的,不过这也是SW的最大毛病之一,可先参数太多
发表回复
您需要登录后才可以回帖 登录 | 注册

本版积分规则


Licensed Copyright © 2016-2020 http://www.3dportal.cn/ All Rights Reserved 京 ICP备13008828号

小黑屋|手机版|Archiver|三维网 ( 京ICP备2023026364号-1 )

快速回复 返回顶部 返回列表