QQ登录

只需一步,快速开始

登录 | 注册 | 找回密码

三维网

 找回密码
 注册

QQ登录

只需一步,快速开始

展开

通知     

查看: 1438|回复: 5
收起左侧

[求助] 关于随形阵列……求解

[复制链接]
发表于 2015-4-2 14:18:21 | 显示全部楼层 |阅读模式 来自: 中国江苏苏州

马上注册,结识高手,享用更多资源,轻松玩转三维网社区。

您需要 登录 才可以下载或查看,没有帐号?注册

x
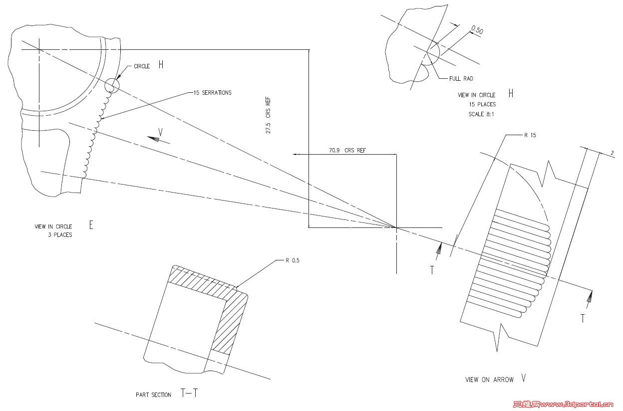
Capture.JPG
6 ?/ P4 s1 ~. f! w4 l$ K( |4 m5 L5 M7 T$ @9 h
图中有尺寸的,按尺寸,无尺寸的,大致差不多即可。画出那个齿状的东西即可
/ d0 N, k8 e; [* k
0 l4 i( `" R2 z$ g7 B9 c希望给出模型,谢谢啦~~~
! ^1 g7 U8 H8 G/ ^
 楼主| 发表于 2015-4-2 15:22:38 | 显示全部楼层 来自: 中国江苏苏州
寂静天花板 发表于 2015-4-2 15:14 static/image/common/back.gif
; r9 Q+ o7 ~" o% x  A齿状的突出才0.5高,0.5是什么单位,如果是mm,那太吓人了

; z- t% v# Z  V4 }就按mm,能画出来吗?主要是个思路。。百思不得其解,苦恼中~~~~~
 楼主| 发表于 2015-4-2 16:40:53 | 显示全部楼层 来自: 中国江苏苏州
寂静天花板 发表于 2015-4-2 15:58 static/image/common/back.gif
) U5 i$ }* s# s0 }( X4 O* VV向视图的圆角做不了,因为有个疑问,那是个弧面的投影,所以不应该是圆角,或者说那个圆角是投影后的结果 ...
. f( |: h9 F" |
应该原来就是个圆角。。这样的话,能弄出来吗?
发表于 2015-4-2 22:30:06 | 显示全部楼层 来自: 中国北京
随形阵列有这个功能吗,一般好像都是X和Y轴的整列吧,我没发现随形整列啊
发表于 2015-4-29 16:12:59 | 显示全部楼层 来自: 中国贵州贵阳
本帖最后由 sw2003x 于 2015-4-29 16:18 编辑
* c1 r* e/ ?. `6 Q& v
super353 发表于 2015-4-2 16:40 static/image/common/back.gif
8 i/ u2 V0 X6 S# N; M( }( ?应该原来就是个圆角。。这样的话,能弄出来吗?

1 {% H) I) x; {. T3 o5 o按楼主提供的图纸严格来描述应该是每个小圆柱下端面是球面。笨办法做的,不会随行阵列,但是可以参数控制更改。
4 y! X& K9 Y% Y: ~. ]) e$ J+ | 装饰花纹-01.png : J( G6 z7 j5 r
装饰花纹-02.png
 楼主| 发表于 2015-5-4 10:04:52 | 显示全部楼层 来自: 中国江苏苏州
sw2003x 发表于 2015-4-29 16:12 static/image/common/back.gif
# Q. R7 o+ Y& T( d1 f0 }按楼主提供的图纸严格来描述应该是每个小圆柱下端面是球面。笨办法做的,不会随行阵列,但是可以参数 ...
9 }4 x# j2 U5 x  n* |# g
谢谢了,能否提供下你的模型呢
发表回复
您需要登录后才可以回帖 登录 | 注册

本版积分规则


Licensed Copyright © 2016-2020 http://www.3dportal.cn/ All Rights Reserved 京 ICP备13008828号

小黑屋|手机版|Archiver|三维网 ( 京ICP备2023026364号-1 )

快速回复 返回顶部 返回列表