QQ登录

只需一步,快速开始

登录 | 注册 | 找回密码

三维网

 找回密码
 注册

QQ登录

只需一步,快速开始

展开

通知     

全站
7天前
查看: 2927|回复: 17
收起左侧

[求助] 轴承隔垫

[复制链接]
发表于 2014-7-26 10:18:39 | 显示全部楼层 |阅读模式 来自: 中国山东济南

马上注册,结识高手,享用更多资源,轻松玩转三维网社区。

您需要 登录 才可以下载或查看,没有帐号?注册

x
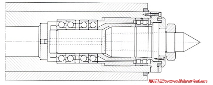
我在很多地方看到过多列角接触轴承间回加内外隔垫,这隔垫有啥作用啊?轴承就不能背对背的直接接触吗?5 ?2 w" a  D( j- h& O4 g- w
QQ图片20140726101453.jpg
 楼主| 发表于 2014-7-26 11:32:21 | 显示全部楼层 来自: 中国山东济南
寂静天花板 发表于 2014-7-26 11:15 static/image/common/back.gif, a- U' r  n# e% N( Q  [8 Y
你想让轴承互相顶,坏了怎么办

0 K- u# a# G# T+ t就算是现在有隔垫,不也是互顶吗?
发表于 2014-7-26 12:30:04 | 显示全部楼层 来自: 中国台湾
多列角接触轴承內外環交錯施預力才能發揮軸承特性.連安裝方向也都有關係./ {; s/ U. _, s1 }$ v* E
圖中排4個軸承似乎有問題.
发表于 2014-7-26 15:09:46 | 显示全部楼层 来自: 中国辽宁抚顺
heat_ice2000 发表于 2014-7-26 12:30 static/image/common/back.gif3 J9 R- a2 E8 o+ C+ Q
多列角接触轴承內外環交錯施預力才能發揮軸承特性.連安裝方向也都有關係.
8 e8 _% u& t3 C# K* u# ~圖中排4個軸承似乎有問題.
5 \: w. o  K4 C/ q
有同感,见于内外套尺寸误差,只会有两盘轴承负载,另外两盘帮倒忙。
 楼主| 发表于 2014-7-26 15:57:51 | 显示全部楼层 来自: 中国山东济南
qiminger 发表于 2014-7-26 15:09 static/image/common/back.gif) n; X! N% S9 i* K- t3 d
有同感,见于内外套尺寸误差,只会有两盘轴承负载,另外两盘帮倒忙。
4 n% @- @( z5 z. o6 u: m  n
内外套一般都是一块磨两端面的,应该没有尺寸误差
发表于 2014-7-26 16:34:52 | 显示全部楼层 来自: 中国湖北黄冈
角接触轴承一般是成对背靠背或面对面安装,1. 但由于轴承制造尺寸的误差,每个轴承的精度、运动间隙不可能一样的,2. 主轴的运动精度、轴向承载能力与轴承的预紧力密切相关的。所以内外都要用隔垫来配调预紧力来保证主轴的运转精度和刚性。预紧力过大,刚性好但容易发热;预紧力小容易产生间隙,刚性差。
发表于 2014-7-26 18:07:58 | 显示全部楼层 来自: 中国天津
首先,楼主你的图是哪来的,我只是想核实一下图纸的正确性,是来自图册或维修手册吗?还是自己或周围人设计的?还有楼主能提供左端轴承组的型号(订货号)吗?2 s& s! q- [$ K8 G
    其实8楼已经说得很详细了。楼主你看看订货号估计就彻底明白了
发表于 2014-7-26 20:58:47 | 显示全部楼层 来自: 中国河南焦作
便于维修方便,最多损坏个垫圈,保住了轴承。
发表于 2014-7-27 18:10:02 | 显示全部楼层 来自: 中国江苏苏州
其实主要是有两点:
6 M2 y' V& R5 |2 Y9 I; j1、为了更好的调节与压力,一般专业点的都要求预压力为多少公斤。这个基本如8楼所说。
/ q6 R2 @: i3 M" ?: t1 {2、因为这种安装基本是背对背的安装,在轴承中间加装垫圈也可以将背对背的支点拉大,从而增加刚性。
 楼主| 发表于 2014-7-27 20:58:05 | 显示全部楼层 来自: 中国山东济南
sison 发表于 2014-7-26 18:07 static/image/common/back.gif
/ T* Z7 T2 q8 r4 G8 H# I3 |首先,楼主你的图是哪来的,我只是想核实一下图纸的正确性,是来自图册或维修手册吗?还是自己或周围人设计 ...
! [' ]% r5 H+ R! p  R( U' b* z' X
来自于本网站,尾座的设计。
/ j& u4 i2 Z& q3 Y8 T# dhttp://www.3dportal.cn/discuz/fo ... &extra=page%3D1
 楼主| 发表于 2014-7-27 21:02:28 | 显示全部楼层 来自: 中国山东济南
sison 发表于 2014-7-26 18:07 static/image/common/back.gif  F+ u5 c: {( u. I! h
首先,楼主你的图是哪来的,我只是想核实一下图纸的正确性,是来自图册或维修手册吗?还是自己或周围人设计 ...

' h# y. e6 k9 g; {看他那意思好像是内外圈之间形成空腔,容纳多余的润滑脂。润滑脂过多的话,轴承会发热严重。
QQ图片20140727205959.jpg
发表于 2014-7-27 21:41:14 | 显示全部楼层 来自: 中国湖南岳阳
这种结构源自《FAG滚动轴承安装与设计》,不用怀疑其正确性。
' x; ]0 V  H$ K6 b9 Z$ s个人理解:角接触球轴承之间加隔圈可以适当增加轴承之间的间距以提高刚性;增加容脂空间有利于润滑。当然隔圈必须平行且等高。
发表于 2014-7-28 08:52:55 来自手机 | 显示全部楼层 来自: 中国辽宁
隔套圈一般为限制结构尺寸设计,材料一般材料即可,没有硬度要求。
发表于 2014-7-28 13:37:46 | 显示全部楼层 来自: 中国湖北黄冈
heat_ice2000 发表于 2014-7-26 12:30 static/image/common/back.gif6 A, H; Q) M' E& K
多列角接触轴承內外環交錯施預力才能發揮軸承特性.連安裝方向也都有關係.
2 G: f4 x5 o6 v" C6 q5 E# I圖中排4個軸承似乎有問題.

; I9 x" I; ]8 e- {% \没有问题。3 r" E1 T( i, {0 ~' }: `
1.  2个同方向排在一起是为了提高抵抗轴向载荷的能力。反向也是2个是因为这种轴承必须成对使用,使反向轴向承受能力一样大(也就是刚性一样大)。如果反向只有1个轴承则反向可能形成间隙。
0 C  `9 x% \3 f& j4 L" w4 C2.  该图主要用在径向力为主,轴向力为辅的场合。径向力靠右边的双列圆柱滚子轴承承担。
发表于 2014-7-28 15:44:12 | 显示全部楼层 来自: 中国山西太原
本帖最后由 gaoyns 于 2014-7-28 17:51 编辑 . H# ]( w) l5 G. u/ `/ ?5 l

2 U* h# t2 v; \  |- s! H这种结构设计是合理的,左边4轴承是两两背靠背安装,来承受双向轴向力,中间的隔套可以加大支承距离,增加稳定性,另外还可贮存多余挤出的油脂,便于散热。但在有些场合不要隔套也是可以的。
轴承的预紧方法.jpg
发表于 2014-7-28 20:25:45 | 显示全部楼层 来自: 中国天津
看了一下原文,是万用轴承,那样隔套就是等长的或是可以不用轴套。这样,隔套的作用就是增加稳定性和储存多余润滑脂了
 楼主| 发表于 2014-7-29 11:33:28 | 显示全部楼层 来自: 中国山东济南
sison 发表于 2014-7-28 20:25 static/image/common/back.gif2 h4 d% t9 C7 W5 L0 ?/ c
看了一下原文,是万用轴承,那样隔套就是等长的或是可以不用轴套。这样,隔套的作用就是增加稳定性和储存多 ...

+ B# ~& }, X% E6 u" z" z$ J. a比较同意你的观点,我们这一般用NSK万用轴承,轴承的预紧(轴承本身内外圈存在厚度差,厚度差就是预紧量)只要把四盘轴承压紧就可以了,没要求加内外隔垫。0 Y8 f' `  k; c6 e4 t# V& a. m
这里采用了隔垫,应该就是你所说的原因了。
发表于 2014-11-22 11:10:32 | 显示全部楼层 来自: 中国江苏苏州
听各位前辈讨论,真是受教了~
发表回复
您需要登录后才可以回帖 登录 | 注册

本版积分规则


Licensed Copyright © 2016-2020 http://www.3dportal.cn/ All Rights Reserved 京 ICP备13008828号

小黑屋|手机版|Archiver|三维网 ( 京ICP备2023026364号-1 )

快速回复 返回顶部 返回列表