QQ登录

只需一步,快速开始

登录 | 注册 | 找回密码

三维网

 找回密码
 注册

QQ登录

只需一步,快速开始

展开

通知     

查看: 5522|回复: 51
收起左侧

[已解决] 如何整列数字

[复制链接]
发表于 2013-12-28 18:43:33 | 显示全部楼层 |阅读模式 来自: 中国广东惠州

马上注册,结识高手,享用更多资源,轻松玩转三维网社区。

您需要 登录 才可以下载或查看,没有帐号?注册

x
在solidwork中如何实现数字递增整列,有哪位大侠知道?
发表于 2013-12-28 18:59:56 | 显示全部楼层 来自: 中国广东深圳
不明所以。能说清楚点吗?
发表于 2013-12-28 22:48:46 | 显示全部楼层 来自: 中国浙江嘉兴
本帖最后由 ryouss 于 2013-12-29 01:20 编辑 : G+ O+ M! ^) h; h  |' `+ W
6 ?# {. T6 ^" h* l) J3 @
這個意思嗎?3 L5 l+ a% v* d( V9 D. v- m
capture-6.gif
* o$ Z& B: }$ d& \4 q capture-8.gif
( @  a( z; x5 N* K" U5 H
; T! [& x' I7 F8 D2 x2 S如下是胡思亂想的!/ V) W2 a3 |2 ?3 U- v
刪除新增.gif

评分

参与人数 1三维币 +3 收起 理由
阿帕奇 + 3

查看全部评分

发表于 2013-12-29 07:46:17 | 显示全部楼层 来自: 中国辽宁大连
ryouss 发表于 2013-12-28 22:48 static/image/common/back.gif0 i+ Q; t' U4 E* [# f7 \
這個意思嗎?
2 u' E& a. j: P9 d* U# Y
大侠用的是什么版本啊?
发表于 2013-12-29 09:55:31 | 显示全部楼层 来自: 中国浙江嘉兴
zhoucongda 发表于 2013-12-29 07:46 static/image/common/back.gif/ v! u% X7 p+ @0 H  P
大侠用的是什么版本啊?
" h( X  U2 A- `8 D2 q1 Y9 V: ^
2012 sp4
发表于 2013-12-29 10:18:46 | 显示全部楼层 来自: 中国辽宁大连
ryouss 发表于 2013-12-29 09:55 static/image/common/back.gif
/ l/ @% |' y+ Z9 k6 O/ P$ L2012 sp4
5 b2 Z% I  A# L
能不能说明一下是如何实现的,想学习一下!谢谢!
发表于 2013-12-29 10:25:50 | 显示全部楼层 来自: 中国台湾
梁兄的文字陣列是透過宏以實現 。4 k! @* r, C5 e- N0 N
至於數字陣列,就是鏈結屬性而已。/ L% A; F$ `& V0 c0 t
3 H1 T. Z# p+ K$ U# W
2013-12-2-02-34-04.png
' D2 @0 g" k8 m6 g4 o8 d- |
2 x3 S2 n5 P! i2 d 2013-12-2-02-34-21.png 0 Y" C/ V$ s- S& Z

评分

参与人数 1三维币 +2 收起 理由
asdolmlm + 2

查看全部评分

发表于 2013-12-29 10:58:14 | 显示全部楼层 来自: 中国辽宁沈阳
求做法           
发表于 2013-12-30 11:05:24 | 显示全部楼层 来自: 中国浙江嘉兴
walkinheaven 发表于 2013-12-29 10:58 static/image/common/back.gif
3 L1 x# }7 s' j# z0 K+ T" V求做法
! o" r5 ?8 _& E9 k3 x2 O. L
直排式為例,我的作法:
& r. E% V# ], ]+ P7 f7 B一.$ `0 Y% j5 G. e
capture-1.gif - [# {7 @9 p7 h$ M1 Q: ~9 p
二.; W$ E3 B* J* A1 v* m: l0 Z
capture-2.gif

评分

参与人数 1三维币 +3 收起 理由
阿帕奇 + 3

查看全部评分

发表于 2013-12-30 11:37:44 | 显示全部楼层 来自: 中国广东东莞
ryouss 发表于 2013-12-30 11:05 static/image/common/back.gif
/ T7 t; \) Y) _: I$ ^直排式為例,我的作法:
! Y/ h, m, D+ [% H1 |一.
& g/ e: y1 p6 X
太帅了 !学习下。
发表于 2013-12-30 11:46:40 | 显示全部楼层 来自: 中国浙江嘉兴
lyz060301113 发表于 2013-12-30 11:37 static/image/common/back.gif
6 g, B; B7 ~$ {& l( V6 \, S太帅了 !学习下。
) d" C5 Z- Q# o
期待貼出完成圖
发表于 2013-12-30 11:50:51 | 显示全部楼层 来自: 中国广东东莞
ryouss 发表于 2013-12-30 11:05 static/image/common/back.gif
# ?1 U  g: M1 V& X# r, Q1 c( g0 X% m直排式為例,我的作法:
% a* ]/ M" x4 j( J. x: U4 S! |一.

+ k9 [% J# n! X; t9 Q: e: F刚试了下,粘贴数字1的"D1@草圖2"到文本1上,怎么还是显示"D1@草圖2",而不是数字1啊,我加双引号了
发表于 2013-12-30 13:32:30 | 显示全部楼层 来自: 中国浙江嘉兴
lyz060301113 发表于 2013-12-30 11:50 static/image/common/back.gif
$ l% N' Q) {' o7 s, o刚试了下,粘贴数字1的"D1@草圖2"到文本1上,怎么还是显示"D1@草圖2",而不是数字1啊,我加双引号了

9 G5 {/ h0 S' C" l* `7 x建議上傳文件
发表于 2013-12-30 13:48:01 | 显示全部楼层 来自: 中国广东东莞
ryouss 发表于 2013-12-30 13:32 static/image/common/back.gif9 U4 m* o* u4 S" v$ i
建議上傳文件

2 A1 R% K- l) ^8 U! f) a 是不是引号的问题啊8 T7 j8 t8 P+ E& Y
1.JPG
6 ]2 v- z3 q, Q! m 2.JPG
- K3 X/ }  }4 a/ b6 d- D2 f
发表于 2013-12-30 14:19:47 | 显示全部楼层 来自: 中国浙江嘉兴
本帖最后由 ryouss 于 2013-12-30 14:24 编辑 2 ?  S$ S% {, z( V9 F  z( x
  e( {! k! P' n6 d( e- j
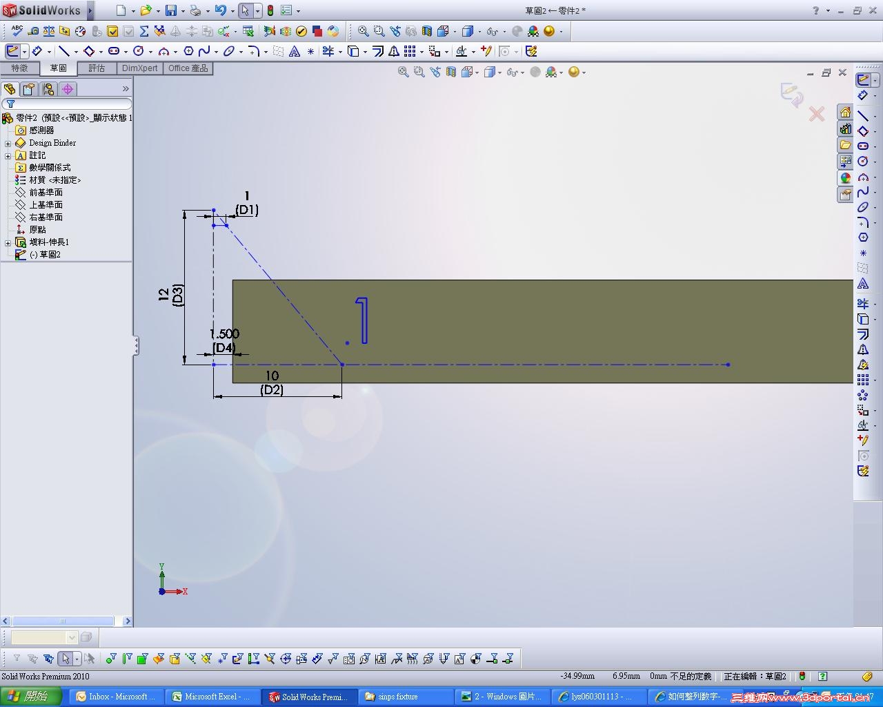
1. D2尺寸是從動,要隨D1(主動)尺寸等比例放大變化.) b- G, @9 a. O3 R: F
2. 草圖文字的位置要和D2尺寸共點重合.) a4 F9 }0 z1 m# m8 B. _$ v( N

2 A- Y5 B/ {- U
2 w, t9 R: L6 H+ x, J6 N
发表于 2013-12-30 14:43:00 | 显示全部楼层 来自: 中国广东东莞
ryouss 发表于 2013-12-30 14:19 static/image/common/back.gif
! v3 x2 Y' O4 Y6 O# i, `5 D1. D2尺寸是從動,要隨D1(主動)尺寸等比例放大變化.
( c( w! s( Z. K. w2. 草圖文字的位置要和D2尺寸共點重合.

4 n" U" @0 ~2 R" a  V3 q0 H按我图中标示,D2是随D1等比例变化的,就是草图文字位置没与D2尺寸点重合。我试了下重合,但是"D1@草圖2"这个还是不变数字1啊,我的文档上传 你试下吧!

11.zip

73.25 KB, 下载次数: 8

发表于 2013-12-30 15:22:02 | 显示全部楼层 来自: 中国浙江嘉兴
本帖最后由 ryouss 于 2013-12-30 15:23 编辑
8 ?) o3 c/ C0 x+ R( S
lyz060301113 发表于 2013-12-30 14:43 static/image/common/back.gif: x- h( {3 J; J
按我图中标示,D2是随D1等比例变化的,就是草图文字位置没与D2尺寸点重合。我试了下重合,但是"D1@草圖2" ...

8 ]5 X+ }& N) F1 `  s: M4 P6 D原檔如下設定錯誤8 Z9 B/ w- B/ `* I! B% f
capture-5.gif
6 F0 h- Q& E/ ^8 F0 u5 @  f* v0 s  ~修檔如下設定正確$ J) M. `% G4 Y
capture-7.gif / k. e! @( A0 d/ p- a4 A

. d+ E( t3 i% T2 e$ U4 J capture-8.gif
1 T1 ~! s7 F: z% U  p 11_OK.zip (44.48 KB, 下载次数: 29)

评分

参与人数 1三维币 +3 收起 理由
阿帕奇 + 3

查看全部评分

发表于 2013-12-30 15:25:39 | 显示全部楼层 来自: 中国广东清远
lyz060301113 发表于 2013-12-30 14:43 static/image/common/back.gif
. }- z' g" P0 T* E% }! a按我图中标示,D2是随D1等比例变化的,就是草图文字位置没与D2尺寸点重合。我试了下重合,但是"D1@草圖2" ...
+ {* A0 G3 U% m% p, \  c% ~
兄弟,那个双引号要是英文的。我将后面那个双引号改了就显示出来了。) j! n# Q9 i: W, b# D( P
QQ截图20131230152517.png
发表于 2013-12-30 15:58:48 | 显示全部楼层 来自: 中国广东清远
gt.adan 发表于 2013-12-29 10:25 static/image/common/back.gif3 N" X  C0 g% G# l, b3 X- r. t
梁兄的文字陣列是透過宏以實現 。% P) G! q: h8 M8 @
至於數字陣列,就是鏈結屬性而已。
2 B2 S) [) U4 p+ Y
阿丹大神,你看我做的对不对?
' E2 N9 q" ~$ K6 P6 D 1.png 2.png
/ G3 U( d; j  w' ]* L6 M* u1 J8 g0 r: u1 p1 @5 z
+ H/ m$ [; K. m3 s  F  @

评分

参与人数 1三维币 +3 收起 理由
阿帕奇 + 3

查看全部评分

发表于 2013-12-30 16:31:38 | 显示全部楼层 来自: 中国浙江嘉兴
398312203 发表于 2013-12-30 15:58 static/image/common/back.gif% ~" q) B% X3 N4 H. v# {+ Y5 P
阿丹大神,你看我做的对不对?

/ W& y. z8 G" j  J: D+ L, N+ i1 `正確,謝謝參與
发表于 2013-12-30 16:44:12 | 显示全部楼层 来自: 中国广东清远
ryouss 发表于 2013-12-30 16:31 static/image/common/back.gif8 r( V6 g( O* `2 \
正確,謝謝參與
: g3 T% l$ d8 i
谢谢!这段时间跟这梁老师,阿丹,闷大学了很多呢!继续向大神学习
发表于 2013-12-30 17:11:26 | 显示全部楼层 来自: 中国广东东莞
ryouss 发表于 2013-12-30 15:22 static/image/common/back.gif3 ^* ^1 l: N4 p& p- w. A( u, ?
原檔如下設定錯誤2 F: m; v7 E6 w8 e/ \" \9 l0 A" q- E
" n( M% ^$ M7 r; Q# k# G
修檔如下設定正確

: Z4 Z4 \1 s- R. B9 T9 o+ Een 知道了
发表于 2013-12-30 17:21:06 | 显示全部楼层 来自: 中国北京
寂静天花板 发表于 2013-12-28 19:40 static/image/common/back.gif
5 c% L( N5 ^( [+ b, Q& C) H那个开思论坛的SW版块有玩家作出来了,本论坛也有它们的潜伏

( P# o2 ]# e$ y* Z9 ]3 D) {天花板大大居然用了“它”字,
发表于 2013-12-30 18:29:06 | 显示全部楼层 来自: 中国江苏苏州
这个必须顶,谢谢了
发表于 2013-12-30 18:53:18 | 显示全部楼层 来自: 中国广东东莞
lyz060301113 发表于 2013-12-30 17:11 static/image/common/back.gif% Y- P: r- V1 O+ I0 P1 Y! R1 a+ C
en 知道了

( ]7 c1 y. B! _终于搞定了,今天上班公司用的SW2010,所以那个文本老显示不了数字。回家用我的电脑用SW2010和SW2012试了下,结果SW2012可以显示文本为数字,SW2010还是不能显示为数字,应该SW2010不支持。现在用Sw2012按照你们的提示终于完成了,真是太感谢大侠了!
发表回复
您需要登录后才可以回帖 登录 | 注册

本版积分规则


Licensed Copyright © 2016-2020 http://www.3dportal.cn/ All Rights Reserved 京 ICP备13008828号

小黑屋|手机版|Archiver|三维网 ( 京ICP备2023026364号-1 )

快速回复 返回顶部 返回列表