QQ登录

只需一步,快速开始

登录 | 注册 | 找回密码

三维网

 找回密码
 注册

QQ登录

只需一步,快速开始

展开

通知     

全站
6天前
查看: 13138|回复: 78
收起左侧

[练习题] 实体建模练习2

[复制链接]
发表于 2013-3-7 15:56:51 | 显示全部楼层 |阅读模式 来自: 中国辽宁营口

马上注册,结识高手,享用更多资源,轻松玩转三维网社区。

您需要 登录 才可以下载或查看,没有帐号?注册

x
本帖最后由 2005llnn 于 2013-4-6 10:17 编辑 + \3 Q4 e% Z2 ~$ A4 Q
6 K& J6 j- d4 m6 j
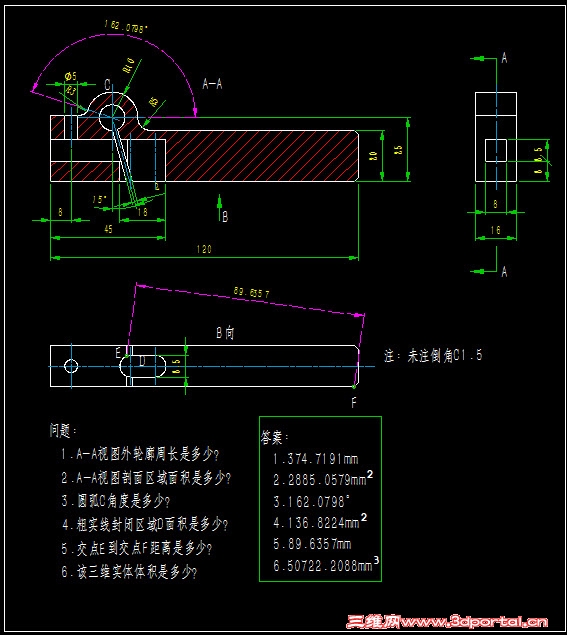
实体建模练习2
/ c, F) W; T/ S0 q5 t0 a. k! k
1303.jpg
) E' [, A8 M4 F* i' a& k) q. B! a
' O4 ?7 a0 c0 s5 z9 f8 s4 q

评分

参与人数 1三维币 +10 收起 理由
2005llnn + 10 提供作图练习

查看全部评分

发表于 2013-3-13 10:28:41 | 显示全部楼层 来自: 中国广西南宁
本帖最后由 woaishuijia 于 2013-3-22 02:27 编辑
  y3 k3 j5 o0 A7 c& W2 {. X* u. j2 [2 M
CA D几何作图竞赛题(2013年3月),至3月20日止, l' f  w3 x7 d/ e* Q

* F! X" i& S( j一.竞赛题目(参见附图)" X' n  u/ p% w0 r6 G
3 l# S. l) f5 ]2 P/ n
实体建模练习2 , m# P1 U* P. S4 @3 [, K3 X- G$ G
4 H" a, q9 B, T
用AutoCAD作图法求出该题要求的5个数值及一个三维几何题数值 。
" P( G7 l* h2 Q$ t& |( t: N1 L$ A" m4 ]; B  F
尺寸精度要求精确到小数点后4位。角度单位必须使用十进制度数,不得使用度/分/秒,百分度和弧度,精度也要求精确到小数点后4位。三维几何题数值尺寸精度要求精确到小数点后1位。 : C& D( c! X: |5 U5 m
3 F5 h! M# W0 I* Y0 e- |/ e1 r
二. 竞赛要求
4 v  k9 [; H# j6 Z" o- v' k; n; L6 O9 F5 b0 U9 D( B. h, L
会员、技术团队成员都可以参加,版主不参加,使用AutoCAD、ACM和MDT二维软件,
/ `7 u, _) _. P% ?在规定时间内将作出的图通过jpg附件在本主题下跟帖发表,只提供数值而没有所作图的截图或dwg附件,将不予评奖。
1 j6 W( V; v& U- R阅读权限定为最高权限。活动结束后由版主统一取消阅读权限。
; ~4 d7 J$ @3 O/ ?1 Q. z/ F禁止会员利用马甲一起参赛,发现将严惩。6 r8 I2 e/ ^4 x6 ~' x5 E4 F# y+ F
5 w! F: E6 _7 `5 |- O) \
三.竞赛时间7 V3 z  F) K$ W6 p. u9 f

; [1 v& z1 Q: u2013年3月13日至2013年3月20日。- \; ^2 `, b  n( P) C
7 N, l3 q! o7 }, f
四. 评选时间及方法
5 }: {, }6 g, f' ?9 L5 [  |; C/ J  V
2013年3月20日-2013年3月23日,由三维网技术论坛CAD版块版主为评委,内部评选出各奖项。
- V7 q4 N; L3 e9 D# A) R
6 O3 p) |) C/ f! H. y五.奖励; c7 o/ r7 M  C+ X6 B6 f) `+ y

; A" F5 ]3 q5 Z1、一等奖:5题全对奖励三维币50; , x) g' p; I8 }: j( D* d) R# Y- y
2、二等奖:答对4题奖励三维币40;
/ B' B5 F. i* O. K+ y8 }6 v( u3、三等奖:答对3题奖励三维币30; , X* P8 J9 F% ]7 J! T, d7 ~
4、四等奖:答对2题奖励三维币20; 5 t" V' @8 a3 B
5、五等奖:答对1题奖励三维币10;
1 I. K( n' y+ H# c, V6、三维奖:答对三维几何题奖励三维币30; ' f1 v0 ?$ F  a
7、作图基本符合要求者先各奖励5个三维币;) s' a# ^& \4 Y9 i7 ?$ L: u
8、根据竞赛实际情况会对奖励规则进行适当修改。
' M8 o6 r% A9 A' x7 Q5 b6 Y6 t
" K; L8 f7 e3 E
& {4 }0 ]. x( W, {/ G$ O六.其它& d4 E- a2 `* |% W) p3 O
! h. p( i7 P9 B# \9 R" `
竞赛结束后在本帖发回复帖进行点评和讨论, ~  [8 S; H+ W* t
# d2 r8 z" u% u& L/ `3 E. ^
竞赛已结束,初步评定成绩见下表,请参赛网友自行核对成绩.如有异议,请于三日内在本主题后跟帖说明,三日后正式公布奖项.: E9 z# A" H% X+ x
楼层
用户名
A
B
C
D
E
F
正确数
标准答案
366.0873
2085.0579
162.0798
136.8224
89.6357
3.7882E+04
 
3
smartlz
366.0873
2085.0579
162.0798
136.8224
89.6357
3.7882E+04
6
4
ysryc99001
366.0873
2340.4214
162.0798
136.8224
89.6357
3.7882E+04
5
5
西门吹鳕
366.0873
2085.0579
162.0798
136.065
89.6357
3.7882E+04
5
6
jiutiansl
366.0873
2082.3501
162.0798
136.8224
89.6357
 
4
7
qq625267377
366.0873
2085.0579
162.0798
136.8224
89.6357
3.7882E+04
6
8
lxf325
366.0873
2085.0579
162.0798
136.065
89.6357
3.7922E+04
4
9
一路彩虹
284.3944
2085.058
162.0798
137.495
89.6357
 
2
10
linebearing
374.7191
2885.0579
162.0798
136.8224
89.6357
5.0722E+04
3
11
zgssd
366.0873
2085.0579
162.0798
137.495
89.6357
3.7882E+04
5
12
ct4273
367.8447
2085.0579
143
137.495
89.6357
3.7882E+04
3
14
大隐于市
366.0873
2085.0578
162.0798
136.8224
89.6357
3.7882E+04
5
15
幸福_真好
367.0409
2085.0579
162
136.8225
97.7908
3.7882E+04
2
16
wangzai725
366.0873
2085.0579
162.0798
136.8224
89.6357
3.7882E+04
6
17
mbznianyi
296.7897
2085.0579
162
137.459
90.2659
3.7882E+04
2
18
xuyanrong
366.0873
2082.3503
162.0798
136.8224
89.6357
3.7882E+04
5
19
daji
298.547
2132.5579
162.0798
 
89.6357
3.8068E+04
2
20
gerald_lee
366.0873
2085.0579
162.0798
128.8798
89.6129
3.8029E+04
3
21
wupeiqi
366.0873
2085.0579
162.0798
137.495
89.6357
3.7882E+04
5
22
wheasy027
367.8447
2082.3502
162.0798
136.8224
89.6357
3.7394E+04
3
23
inuyasha_pw
366.0873
2085.0579
162.0798
136.065
89.6357
 
4
24
gongwen0519
366.0873
2085.0579
162.0798
137.495
89.6357
3.7882E+04
5
25
陳志強
366.0873
2085.0579
8.9601
137.495
89.6357
3.7882E+04
4
26
xtpi
360.9509
2103.0454
170.4802
135.8101
87.8971
3.8214E+04
0
27
henan1yzb
366.0873
2085.0579
162.0798
137.495
89.6357
3.7882E+04
5
28
gsddfg123
296.7897
2085.0579
2.8288
128.1715
89.6027
3.8005E+04
1
29
GOTO2
102
2084.9189
166.054
137.495
90.2658
3.7917E+04
0
30
play-boy
366.0873
2085.0579
162.0798
137.495
89.6357
3.3361E+04
4
31
LIAIYAO
296.7897
2085.0579
162.0798
137.495
89.6357
3.7922E+04
3
32
chenqi
366.0873
2085.0579
162.0798
136.8224
89.6357
3.7882E+04
6
33
凤九天
366.0873
2082.3502
162.0798
136.8224
89.6357
3.8068E+04
4
34
铜陵小鱼
366.0873
2085.0579
162.0798
137.495
89.6357
3.8109E+04
4
35
ss988
366.0873
2085.0579
162.0798
136.8224
89.6357
3.7882E+04
6
36
jastin168
366.0873
2085.0579
19.7559
141.1014
89.6357
3.7882E+04
4
37
yj9640
366.0873
2082.8502
162
136.0671
89.6357
 
2
38
林主0598
366.0873
2098.5579
162.0798
136.8224
89.6357
3.7991E+04
4
39
moonyuemo
366.0873
2085.0579
28.2883
173.62
89.6357
3.6791E+04
3
40
yunfei2046
366.0873
2085.0579
162.0798
136.8224
89.6357
3.7882E+04
6
41
hailangldf
296.7897
2085.0579
162.0798
137.495
89.6357
 
3
42
hbzyzyc
366.0873
2085.0579
162.0798
136.8224
89.6357
3.7882E+04
6
43
gsyefeng
366.0873
2085.0579
162.0798
136.8224
89.6357
3.7882E+04
6
44
sh_mrhg
366.0873
2085.0579
162.0798
137.495
90.5851
3.7461E+04
3
45
Oo
366.0873
2085.0579
162.0798
136.8224
89.6357
 
5
46
塔山817
366.0873
2085.0579
162.0798
172.19
89.6357
3.8160E+04
4
47
王老大先生
366.0873
2085.0579
162.0798
136.8224
89.6357
3.7882E+04
6
48
fish2
296.7897
2085.0579
162.0798
137.495
89.6357
 
3
49
赶路人
366.0873
2085.0579
162.0798
136.065
89.6357
 
4
50
qsmy1123
366.0873
2085.0579
162.0798
137.4861
89.6357
 
4
51
ilovebin1989
366.0873
2085.0579
162.0798
136.8224
89.6357
3.7922E+04
5
52
周富铸
366.0873
2193.0579
162.0798
136.8224
89.6357
3.7882E+04
5
53
cyanapple721
366.0873
2085.0579
162.0798
136.065
89.6357
3.7917E+04
4
注:表中文字为红色者,代表答案错误;空白者代表未提供答案或答案不明确

竞赛评分.rar

16.43 KB, 下载次数: 12

发表于 2013-3-13 13:06:53 | 显示全部楼层 来自: 中国江苏无锡
本帖最后由 woaishuijia 于 2013-3-22 02:04 编辑 * B6 q1 F6 E; M4 P6 z/ x
$ C" c+ a# O3 o
交作业如下 零件2.rar (54.05 KB, 下载次数: 8)

评分

参与人数 2三维币 +85 收起 理由
2005llnn + 80 一等奖+三维奖
woaishuijia + 5 参与鼓励

查看全部评分

发表于 2013-3-13 13:31:26 | 显示全部楼层 来自: 中国安徽合肥
本帖最后由 woaishuijia 于 2013-3-22 02:05 编辑 ; F/ h6 A4 n' S* M4 s

, M6 z0 j. c, k( f. r学习,学习,再学习。(重在参与), @' x6 x6 W# \/ T# g
1303(试题).jpg

1303.rar

142.07 KB, 下载次数: 5

评分

参与人数 2三维币 +75 收起 理由
2005llnn + 70 二等奖+三维奖
woaishuijia + 5 参与鼓励

查看全部评分

发表于 2013-3-13 13:55:34 | 显示全部楼层 来自: 中国江苏苏州
本帖最后由 woaishuijia 于 2013-3-22 02:05 编辑
1 M" S* a  @. m( E: t0 j6 b, R& C/ k
1303-Model.jpg
! B0 P  D0 R. [. p9 }2 }+ n: r5 B) U& h6 U4 b6 h2 P, l
交作业,希望多对几个

评分

参与人数 2三维币 +75 收起 理由
2005llnn + 70 二等奖+三维奖
woaishuijia + 5 参与鼓励

查看全部评分

发表于 2013-3-13 14:17:42 | 显示全部楼层 来自: 中国天津
本帖最后由 woaishuijia 于 2013-3-22 02:05 编辑
: A9 a* c- {' A- f, L) L. {
6 Y; u! K8 k& ~9 S0 E参与参与!重在参与!
, `: K0 I& c3 {2 d4 L4 {) { 三维网练习题-201303-上交.JPG ) u3 p7 }8 s9 ]- n2 q
& i) v0 g  B, l( k/ N$ e8 y

评分

参与人数 2三维币 +45 收起 理由
2005llnn + 40 二等奖
woaishuijia + 5 参与鼓励

查看全部评分

发表于 2013-3-13 15:34:10 | 显示全部楼层 来自: 中国浙江温州
本帖最后由 woaishuijia 于 2013-3-22 02:05 编辑 ; ]1 q6 j) I! R: C. M6 c

" c1 g1 B2 P* t2013-03月份竞赛题
2 T& O: @- q1 x2 t& L% j希望这次没想多8 i- I9 p6 h- O; D+ u" i1 x
2013-03月份三维竞赛题.jpg ) \; q1 V8 C6 J3 o" z0 Y3 ~
答案.jpg

2013-3月份三维竞赛题.rar

93.14 KB, 下载次数: 9

评分

参与人数 2三维币 +85 收起 理由
2005llnn + 80 一等奖+三维奖
woaishuijia + 5 参与鼓励

查看全部评分

发表于 2013-3-13 21:14:15 | 显示全部楼层 来自: 中国浙江台州
本帖最后由 woaishuijia 于 2013-3-22 02:06 编辑
( J4 @4 g# K8 x9 H. R# u8 \& I( ]& k
上交作业了,希望能全对 20130313.png 201303.jpg

评分

参与人数 2三维币 +45 收起 理由
2005llnn + 40 二等奖
woaishuijia + 5 参与鼓励

查看全部评分

发表于 2013-3-14 11:07:32 | 显示全部楼层 来自: 中国上海
本帖最后由 woaishuijia 于 2013-3-22 02:07 编辑
+ B8 _- H, W7 F4 `  f# g$ k
+ O% L# B; s( i1 s  J% G希望能进步,多学习学习
0 e- t, G9 i/ M

201303竞赛题

201303竞赛题
5 ~1 X4 s; \0 f" b

& K) ~# m; C' s1 g9 N2 j" k- m

评分

参与人数 2三维币 +25 收起 理由
2005llnn + 20 四等奖
woaishuijia + 5 参与鼓励

查看全部评分

发表于 2013-3-14 13:07:32 | 显示全部楼层 来自: 中国河北石家庄
本帖最后由 woaishuijia 于 2013-3-22 02:07 编辑 6 M4 a7 M) y0 r+ I9 w* o3 O
3 n0 G. G1 m( ^" }- I" t; `% s
给出答案,请确认是否正确?# o) j/ j) |) W
答案.jpg

答案.rar

55.5 KB, 下载次数: 1

评分

参与人数 2三维币 +35 收起 理由
2005llnn + 30 三等奖
woaishuijia + 5 参与鼓励

查看全部评分

发表于 2013-3-14 13:20:55 | 显示全部楼层 来自: 中国山东青岛
本帖最后由 woaishuijia 于 2013-3-22 02:07 编辑 $ z9 }% H& d  e9 Q% e) g' d3 c) g7 N9 r

) v0 H7 N0 e" o, [! o1 ~1 E参加竞赛
7 ~# }/ J* ^9 w0 p0 h Drawing2-布局1.jpg

实体建模练习2.rar

125.88 KB, 下载次数: 0

评分

参与人数 2三维币 +75 收起 理由
2005llnn + 70 二等奖+三维奖
woaishuijia + 5 参与鼓励

查看全部评分

发表于 2013-3-14 14:35:34 | 显示全部楼层 来自: 中国山东淄博
本帖最后由 woaishuijia 于 2013-3-22 02:07 编辑 6 j: N9 y- M) J4 G, H7 s

1 A7 j/ @6 t" K# H, `, U3 [5 E交作业。         
1 K8 Z% j8 ^8 a 三月作业.jpg

评分

参与人数 2三维币 +55 收起 理由
2005llnn + 50 四等奖+三维奖
woaishuijia + 5 参与鼓励

查看全部评分

发表于 2013-3-14 15:02:46 | 显示全部楼层 来自: 中国江苏无锡
楼上的仔细看一下答题规则4 q& A' Z* E! _; A5 Y
尺寸精度要求精确到小数点后4位。角度单位必须使用十进制度数,不得使用度/分/秒,百分度和弧度,精度也要求精确到小数点后4位。三维几何题数值尺寸精度要求精确到小数点后1位。
发表于 2013-3-14 16:21:16 | 显示全部楼层 来自: 中国安徽合肥
本帖最后由 woaishuijia 于 2013-3-22 02:08 编辑
* B, q5 l, U8 E, T# x. _+ y7 G( P# n5 `
这个月咋这么早,有点不适应了。' O) ?& u# _$ @7 S1 O
这次的题目实体做起来不复杂,但是问题中有几个小的陷阱,需要答题的时候很细心才行!
  P" o0 T% @* s7 {

实体建模练习2

实体建模练习2
9 I: ?0 R: R: W

评分

参与人数 2三维币 +75 收起 理由
2005llnn + 70 二等奖+三维奖
woaishuijia + 5 参与鼓励

查看全部评分

发表于 2013-3-14 16:22:45 | 显示全部楼层 来自: 中国上海
本帖最后由 woaishuijia 于 2013-3-22 02:08 编辑 . _; w$ P/ Q; o3 F" K; x7 p5 J
9 r- b+ q8 W6 d! d  Z+ _
学无止境! 转化的二维图不好

作业 13.3.zip

109.47 KB, 下载次数: 1

评分

参与人数 2三维币 +45 收起 理由
2005llnn + 40 五等奖+三维奖
woaishuijia + 5 参与鼓励

查看全部评分

发表于 2013-3-14 16:36:38 | 显示全部楼层 来自: 中国浙江宁波
本帖最后由 woaishuijia 于 2013-3-22 02:08 编辑
* G' E5 K6 r( w. N% O7 O
, F6 ?  h4 }5 I) O  q, k- P  终于可以交作业呢!% r, s' q7 y8 p
QQ截图20130314162733.jpg
7 x, k, O4 Z1 V' Y5 F7 v1 k" J" v4 O4 ]1 t9 C, a

CA D几何作图竞赛题(2013年3月).rar

125.5 KB, 下载次数: 1

评分

参与人数 2三维币 +85 收起 理由
2005llnn + 80 一等奖+三维奖
woaishuijia + 5 参与鼓励

查看全部评分

发表于 2013-3-14 18:28:31 | 显示全部楼层 来自: 中国江苏连云港
本帖最后由 woaishuijia 于 2013-3-22 02:09 编辑
1 l/ N5 u/ Z* q# K6 {, v* e& k- B! Y; T
201303-2.JPG 201303-1.JPG

201303.rar

63.35 KB, 下载次数: 1

评分

参与人数 2三维币 +45 收起 理由
2005llnn + 40 五等奖+三维奖
woaishuijia + 5 参与鼓励

查看全部评分

发表于 2013-3-14 21:56:21 | 显示全部楼层 来自: 中国广东广州
本帖最后由 woaishuijia 于 2013-3-22 02:10 编辑 : R0 {7 U1 M* ?, _5 j2 C' R2 f  A. x
7 o+ u  d" y5 l2 G$ b& p0 {* l
3月竞赛题.jpg
2 D8 D! `" v3 x# f2 ^! s& V0 r5 K! M' I! y( b% K
交作业了。。。。。。

评分

参与人数 2三维币 +75 收起 理由
2005llnn + 70 二等奖+三维奖
woaishuijia + 5 参与鼓励

查看全部评分

发表于 2013-3-15 08:11:06 | 显示全部楼层 来自: 加拿大
本帖最后由 woaishuijia 于 2013-3-22 02:10 编辑 / x$ Z" N. [" x6 _# W# d- {% ?( u

- V* B: j7 f' Y% M: b! o! K交作业,有些还拿不准。有机会交流请教各位。
CAD作图竟赛2013-03.jpg

CADJS1303.zip

36.66 KB, 下载次数: 1

评分

参与人数 2三维币 +25 收起 理由
2005llnn + 20 四等奖
woaishuijia + 5 参与鼓励

查看全部评分

发表于 2013-3-15 12:28:06 | 显示全部楼层 来自: 中国天津
本帖最后由 woaishuijia 于 2013-3-22 02:10 编辑 2 i2 L9 ?: f( U* b3 d, e
' W  ?9 D; n3 W2 z/ l+ x0 O
本月习题!5 }3 t% p  h* x/ p
1.jpg " w1 Y) Z, A. X
8 h3 _" p/ r. D/ D

评分

参与人数 2三维币 +35 收起 理由
2005llnn + 30 三等奖
woaishuijia + 5 参与鼓励

查看全部评分

发表于 2013-3-15 15:09:18 | 显示全部楼层 来自: 中国江苏苏州
本帖最后由 woaishuijia 于 2013-3-22 02:10 编辑
) |; o/ B( `, F: |
2 z4 C5 o5 X% |) W. U: q9 n参与练习
" ~: _* C7 S) V5 l4 T希望有所进步!
0 d2 g, b4 O  n 3yue.PNG

评分

参与人数 2三维币 +75 收起 理由
2005llnn + 70 二等奖+三维奖
woaishuijia + 5 参与鼓励

查看全部评分

发表于 2013-3-15 15:47:01 | 显示全部楼层 来自: 中国湖北武汉
本帖最后由 woaishuijia 于 2013-3-22 02:10 编辑
- d& K5 L3 C! l4 K5 @4 o: }& c
5 U. f5 ]9 Y2 L: ~参与  
1 |; b5 b7 _1 u- N& T. w9 v  E8 G3 o/ G9 |* a3 j- }
# X( j. Z# L8 k& i. ]
2013-3CAD练习.pdf (61.14 KB, 下载次数: 3)

评分

参与人数 2三维币 +35 收起 理由
2005llnn + 30 三等奖
woaishuijia + 5 参与鼓励

查看全部评分

发表于 2013-3-15 16:04:12 | 显示全部楼层 来自: 中国北京
本帖最后由 woaishuijia 于 2013-3-22 02:12 编辑
5 E5 q9 ^/ W" f/ J- ?: V; r8 l1 k' e% ^
交作业了,(三维实体还是不会啊):) D' M8 i4 f$ O( e
. ?; s1 m+ q$ |4 @2 W
S02-A.jpg
8 x, Z9 C. T/ |* S5 U0 c
3 B( K- H$ O) I4 `8 ?3 J9 y6 g# V1 W. \% f! s% ^( F" H+ D

评分

参与人数 2三维币 +45 收起 理由
2005llnn + 40 二等奖
woaishuijia + 5 参与鼓励

查看全部评分

发表于 2013-3-15 16:29:41 | 显示全部楼层 来自: 中国广东广州
本帖最后由 woaishuijia 于 2013-3-22 02:12 编辑
, m2 o" i- H* R% Q, s* O6 q: F8 u9 r) y, h7 ?+ w2 F, }2 t( _
阳春三月:  X8 d4 T7 F/ n2 G. k+ I! R9 }
: |7 m. U/ O5 T' q4 g
201303.gif

评分

参与人数 2三维币 +75 收起 理由
2005llnn + 70 二等奖+三维奖
woaishuijia + 5 参与鼓励

查看全部评分

发表于 2013-3-15 21:18:47 | 显示全部楼层 来自: 中国香港
本帖最后由 woaishuijia 于 2013-3-22 02:12 编辑
2 H& f% P& g2 W3 ?3 [! n; |0 q
8 b$ z  E" q- y8 d9 G# c. M9 C0 z 20.png + D3 p6 T+ O8 M/ P# _) h+ t

+ v2 l8 ^0 k/ I
. Q' w8 s1 s6 Z) H2 p4 O. g* J  e# l% ~0 O% }2 c
21.png / \& f7 n5 R1 N! K

4 e' M: c: A" K% P- }7 r0 w- K: N# A8 ~+ \, @. J/ `

$ A2 u9 P6 x1 E: F" V 22.png
7 z; j# E0 G3 e- |* ^
- W. N. l( N3 Y" S1 R4 s+ Q; v" k  K
3 r* p% M7 M6 E. |# }& }
23.png

评分

参与人数 2三维币 +65 收起 理由
2005llnn + 60 三等奖+三维奖
woaishuijia + 5 参与鼓励

查看全部评分

发表回复
您需要登录后才可以回帖 登录 | 注册

本版积分规则


Licensed Copyright © 2016-2020 http://www.3dportal.cn/ All Rights Reserved 京 ICP备13008828号

小黑屋|手机版|Archiver|三维网 ( 京ICP备2023026364号-1 )

快速回复 返回顶部 返回列表