QQ登录

只需一步,快速开始

登录 | 注册 | 找回密码

三维网

 找回密码
 注册

QQ登录

只需一步,快速开始

展开

通知     

查看: 2432|回复: 20
收起左侧

[求助] 请教:谁能帮我完成如图制作

[复制链接]
发表于 2013-2-4 11:22:48 | 显示全部楼层 |阅读模式 来自: 中国江苏苏州

马上注册,结识高手,享用更多资源,轻松玩转三维网社区。

您需要 登录 才可以下载或查看,没有帐号?注册

x
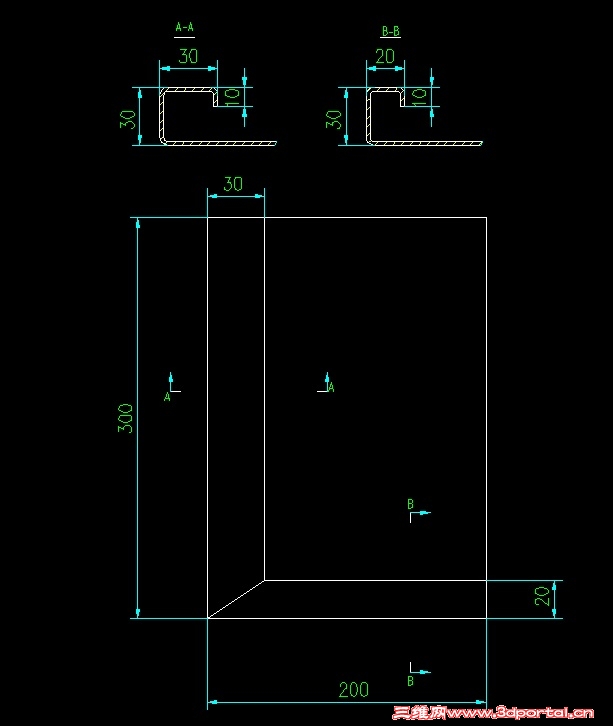
如题:见附件,请教高手帮忙按两维图做出三维图。我是做错的。谢谢!( P1 i8 q/ v7 {! L
在线等!!!
示意图1.jpg
示意图2.jpg
发表于 2013-2-4 13:19:04 | 显示全部楼层 来自: 中国山东青岛
寂静天花板 发表于 2013-2-4 13:10 static/image/common/back.gif6 ?5 U. m' w5 A8 x) T+ K
用斜接法兰特征,操作看帮助文件。
: K; R* j/ G5 |/ I$ |+ n
大侠,你用什么软件录像的? 怎么都没有失真
 楼主| 发表于 2013-2-4 14:00:19 | 显示全部楼层 来自: 中国江苏苏州
寂静天花板 发表于 2013-2-4 13:10 static/image/common/back.gif
* X4 t( ]7 q% G1 n% M用斜接法兰特征,操作看帮助文件。

2 I+ N- H- [+ e6 `- T* @- s; c亲,你好像做的是两边相等的情况。
. t. n$ G9 b5 W问题是我要求的如图中A-A剖与B-B剖中20和30的情况下,怎么做!
' I* \9 V/ P& ?& K1 {; C2 h2 j! X1 Z谢谢!!
发表于 2013-2-4 14:24:43 | 显示全部楼层 来自: 中国浙江杭州
楼主两边一个20,一个30,R角处能接的好吗?, Q/ D- w1 n$ J" P
我做的这个样子很像,但不是钣金
5 Z; V( c' M0 d/ K% Z 1.gif
4 ^2 d7 `) R1 R$ G/ `' v) k& ` 2.gif

评分

参与人数 1三维币 +3 收起 理由
阿帕奇 + 3

查看全部评分

发表于 2013-2-4 14:33:12 | 显示全部楼层 来自: 中国江苏无锡
他需要的是钣金做法,我也在帮忙做做看
发表于 2013-2-4 14:39:54 | 显示全部楼层 来自: 中国江苏无锡
或者你用画好实体转换成钣金试试看
发表于 2013-2-4 15:24:09 | 显示全部楼层 来自: 中国浙江杭州
搞了个大概- q+ N0 {7 e$ K: `8 G1 z/ ]
1.gif
1 Q/ Z9 Y3 X! j) Z 2.gif

评分

参与人数 1三维币 +3 收起 理由
阿帕奇 + 3

查看全部评分

 楼主| 发表于 2013-2-4 15:26:10 | 显示全部楼层 来自: 中国江苏苏州
寂静天花板 发表于 2013-2-4 15:15 static/image/common/back.gif
2 T5 b4 }) o+ X3 X3 D楼主这张图必须先从工艺上可行,然后才有建模设计的必要,先问问车间师傅如何加工吧。
( g( P- @) `' b# Z: d- h+ J
现在我们工件已在生产,我想做个三维图示意图模型
 楼主| 发表于 2013-2-4 15:28:21 | 显示全部楼层 来自: 中国江苏苏州
22553711 发表于 2013-2-4 14:24 static/image/common/back.gif
% ^" v2 \. u8 s楼主两边一个20,一个30,R角处能接的好吗?
( N, j9 f; p7 ]( y9 g3 L我做的这个样子很像,但不是钣金

& x0 F1 ?$ u6 W& f& c应该没有这方面的问题,因为板是同厚的。: l% }! J  \/ s/ m
况且我们车间已在做此工件!
 楼主| 发表于 2013-2-4 15:49:16 | 显示全部楼层 来自: 中国江苏苏州
我做了个示意,感觉很难看,先做的零件,在转成的钣金件。各位请指导!
钣金件1.jpg
钣金件展开.jpg

评分

参与人数 1三维币 +3 收起 理由
阿帕奇 + 3

查看全部评分

 楼主| 发表于 2013-2-4 15:53:16 | 显示全部楼层 来自: 中国江苏苏州
22553711 发表于 2013-2-4 15:24 static/image/common/back.gif2 c1 i. a9 I$ ^- R3 \
搞了个大概
8 h- ]9 p: B& a
请问是用钣金件做的吗?能放上教程吗?
: f* I0 o$ C; J' u& P谢谢!!
 楼主| 发表于 2013-2-4 15:55:44 | 显示全部楼层 来自: 中国江苏苏州
寂静天花板 发表于 2013-2-4 15:34 static/image/common/back.gif/ p- B: H; |' d5 C* t3 D) d
图纸画的和车间实际加工肯定是完全两个样子,因为车间有车间的处理办法,但SW建模是详图,所以你要用钣金 ...
6 p" ~9 O' Z7 a7 W
亲,辛苦了!谢谢!!
: [# P5 w0 y% S; r5 ~说实在的,这东东还是车间自己做出来的,我是想做一钣金件示意。
发表于 2013-2-4 16:11:19 | 显示全部楼层 来自: 中国浙江杭州
wbq513 发表于 2013-2-4 15:53 static/image/common/back.gif
1 q" y% I& P% d5 h4 |; U$ M9 R+ O( |% t请问是用钣金件做的吗?能放上教程吗?$ g- g7 O7 {9 s7 R2 z7 S' n6 @
谢谢!!
" ^1 w8 x% Z, ^5 T4 \$ x
我也是胡乱弄的。
- y4 p. n, ?1 |/ b, `6 @, Q% X) H这是我的特征树,行的话您参考
! i7 S4 R/ Y4 g: }/ V: H 1.gif
2 i0 B/ v* K! t; N" e& h- \8 y
发表于 2013-2-4 20:58:17 | 显示全部楼层 来自: 中国山东青岛
这个是钣金的基本  有很多方法的
发表于 2013-2-5 08:54:53 | 显示全部楼层 来自: 中国吉林白城
本帖最后由 ywei0436 于 2013-2-5 08:56 编辑
/ E6 H5 m0 M) j( c
1 L" m! B4 M# b7 s! d这个其实很简单,一边一边的用钣金做,然后编辑钣金草图就可以了。
5 b3 ~( z7 j+ E* t7 o# |- V
无标题.jpg

评分

参与人数 1三维币 +3 收起 理由
阿帕奇 + 3

查看全部评分

发表于 2013-2-5 09:06:58 | 显示全部楼层 来自: 中国江苏宿迁
2楼,图文并茂!
发表于 2013-2-5 14:32:42 | 显示全部楼层 来自: 中国上海
向你们学习来了!
360截图20130205142929012.jpg
360截图20130205142958949.jpg
 楼主| 发表于 2013-2-7 10:01:26 | 显示全部楼层 来自: 中国江苏苏州
xuhongren 发表于 2013-2-5 14:32 static/image/common/back.gif" ~. Z# L5 f7 T: R' o8 O
向你们学习来了!

. j" N+ y# n! S( ^请教你怎么可以三步“边线-法兰”就成型了,还没有明白!值得学习,请发源文件或指教。- J) N; N$ [0 n8 A
谢谢!(说说边线步骤也行)
发表于 2013-2-7 10:13:11 | 显示全部楼层 来自: 中国台湾彰化县
wbq513 发表于 2013-2-7 10:01 static/image/common/back.gif7 W2 g8 F# S5 I% U6 Y, M5 I- x7 W* |
请教你怎么可以三步“边线-法兰”就成型了,还没有明白!值得学习,请发源文件或指教。: |  K/ z9 z0 f* M4 D  _6 Y) C
谢谢!(说说边线 ...
" V2 g8 b" C5 F  Q* d8 D0 i; V
如果20樓的朋友做的符合要求的話,那2樓的天花版前輩做的步驟豈不更精簡?一步就完成了!
+ K. l: S7 `# D5 }$ {' A' h6 e樓主自己在12樓做的也不錯呀!真要學習的話,是否應該16樓朋友的做法來的好一些呢?* Y! x, o' g; X2 N  _
純屬個人觀點。
" [* F5 E3 m7 w+ x  j% O8 q: t1 X; `1 `. y' n6 g8 I: `
2013-2-7 上午 10-08-54.png
+ S8 m( L4 l) G/ ]0 u/ X5 U# x% W& f$ h
% I$ B2 R( n* K  Z7 r8 B
发表于 2013-2-7 12:40:59 | 显示全部楼层 来自: 中国辽宁
学习学习!!!!!!!!!!
发表于 2013-2-7 16:22:57 | 显示全部楼层 来自: 中国浙江嘉兴
本帖最后由 licoolicoo 于 2013-2-7 16:27 编辑 3 x. {, U7 Z% c$ f6 m; h

8 O5 q8 `8 }* q- O4 I也做了一下。感觉SW还得改进得更方法。' @4 o) A6 V. [  W: a! z! d
333.png 333.png
发表回复
您需要登录后才可以回帖 登录 | 注册

本版积分规则


Licensed Copyright © 2016-2020 http://www.3dportal.cn/ All Rights Reserved 京 ICP备13008828号

小黑屋|手机版|Archiver|三维网 ( 京ICP备2023026364号-1 )

快速回复 返回顶部 返回列表