QQ登录

只需一步,快速开始

登录 | 注册 | 找回密码

三维网

 找回密码
 注册

QQ登录

只需一步,快速开始

展开

通知     

查看: 2257|回复: 15
收起左侧

[讨论] 高手们,来帮我看看SW能不能做这种工程图?

[复制链接]
发表于 2013-1-9 14:26:44 | 显示全部楼层 |阅读模式 来自: 中国福建厦门

马上注册,结识高手,享用更多资源,轻松玩转三维网社区。

您需要 登录 才可以下载或查看,没有帐号?注册

x
本帖最后由 deihc851209 于 2013-1-10 17:14 编辑 & M) M7 V! `0 r0 n7 w4 |9 }

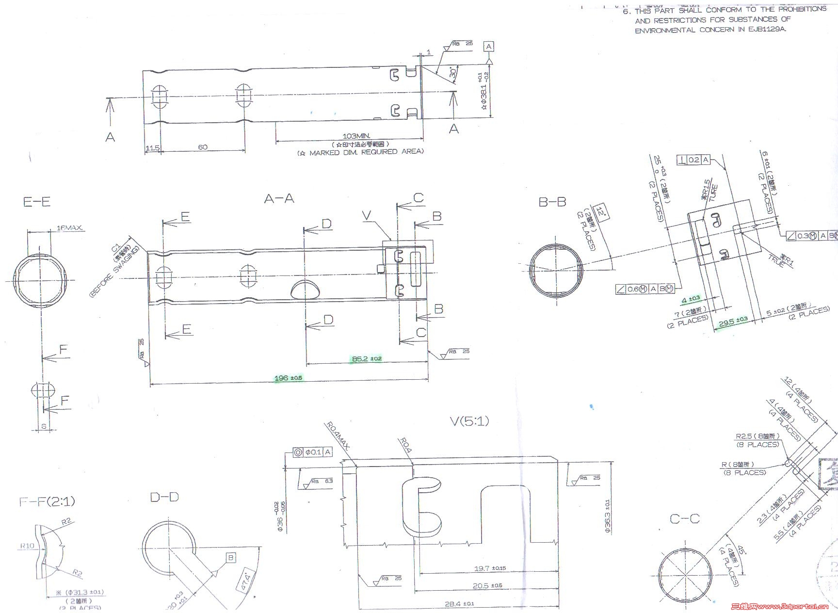
& `. H3 k- E) c+ I/ R* U如图里面的红框里面的图在SW工程图能不能做出来,能做的话就请讲一下方法,如果不能的话,那两个小孔要用什么视图来体现也来呢?! `$ u' ]6 R4 P
下面那张是原图
QQ截图20130109141249.png
qqqqqqq.jpg
 楼主| 发表于 2013-1-9 14:56:41 | 显示全部楼层 来自: 中国福建厦门
高手不来啊,自顶一下
发表于 2013-1-9 15:27:07 | 显示全部楼层 来自: 中国上海
可以用个平面图与三维图结合示意啊,这个并不是很难理解的,只要表示清晰就可以了。
发表于 2013-1-9 16:59:45 | 显示全部楼层 来自: 中国辽宁营口
这不是局部视图吗?多简单点事
 楼主| 发表于 2013-1-9 17:59:38 | 显示全部楼层 来自: 中国福建厦门
horseshoe 发表于 2013-1-9 16:59 static/image/common/back.gif
" `0 N! q; Z+ t5 d; ^. J1 S这不是局部视图吗?多简单点事
; O+ @: C5 m# r  D. ^& A5 O
哪一个是局部视图?
发表于 2013-1-9 19:26:06 | 显示全部楼层 来自: 中国辽宁营口
deihc851209 发表于 2013-1-9 17:59 static/image/common/back.gif$ F" h$ W3 m7 K5 U
哪一个是局部视图?
( C) ], J9 z$ F( u+ C" y
你的专业是什么,局部放大图都不知道吗
发表于 2013-1-9 19:44:38 | 显示全部楼层 来自: 中国浙江嘉兴
楼主要的是“辅助视图”。看到红方框中的那个图之间还有一条边线。应该是辅助视图。

评分

参与人数 1三维币 +2 收起 理由
chenjun520601 + 2 技术讨论

查看全部评分

发表于 2013-1-10 08:21:52 | 显示全部楼层 来自: 中国福建厦门
你居然吧主视图都给隐了,让大伙来看一大堆剖视图
发表于 2013-1-10 08:29:56 | 显示全部楼层 来自: 中国江苏泰州
无全图啊,能不能做到取决于人,而非SW
 楼主| 发表于 2013-1-10 17:15:39 | 显示全部楼层 来自: 中国福建厦门
horseshoe 发表于 2013-1-9 16:59 static/image/common/back.gif& J) f; R7 i: U9 r7 q5 k5 _
这不是局部视图吗?多简单点事

, J/ i9 X) d4 B) X这位先生,我把原图方上来了,你看看哪一个是局部视,和我问的问题有关系吗?
 楼主| 发表于 2013-1-10 17:17:13 | 显示全部楼层 来自: 中国福建厦门
tohoto 发表于 2013-1-10 08:21 static/image/common/back.gif- @1 v' Y7 P7 o. F5 E6 s
你居然吧主视图都给隐了,让大伙来看一大堆剖视图

& v: v- h8 w; }7 x+ e& y我把原图方上来,你再看看呢
发表于 2013-1-15 13:31:42 | 显示全部楼层 来自: 中国上海
完全可以做
发表于 2013-2-25 19:59:01 | 显示全部楼层 来自: 中国陕西西安
你的图有些视图看不明白,斜着的那些是什么意思
发表于 2013-2-26 11:05:03 | 显示全部楼层 来自: 中国上海
感觉没什么问题的。。。
发表于 2013-3-2 21:30:07 | 显示全部楼层 来自: 中国
solidworks 只要你的三维模型画对了  二维图是可以出来的。你找个可以用局部放大视图来搞定。到要做好线性的设置
发表于 2013-3-7 16:52:58 | 显示全部楼层 来自: 中国广东深圳
完全可以,这样的东西solidworks都搞不定的话,谁还用
发表回复
您需要登录后才可以回帖 登录 | 注册

本版积分规则


Licensed Copyright © 2016-2020 http://www.3dportal.cn/ All Rights Reserved 京 ICP备13008828号

小黑屋|手机版|Archiver|三维网 ( 京ICP备2023026364号-1 )

快速回复 返回顶部 返回列表