QQ登录

只需一步,快速开始

登录 | 注册 | 找回密码

三维网

 找回密码
 注册

QQ登录

只需一步,快速开始

展开

通知     

查看: 6307|回复: 24
收起左侧

[已解决] 形位公差标注问题

[复制链接]
发表于 2006-6-21 14:31:48 | 显示全部楼层 |阅读模式 来自: 中国浙江宁波

马上注册,结识高手,享用更多资源,轻松玩转三维网社区。

您需要 登录 才可以下载或查看,没有帐号?注册

x
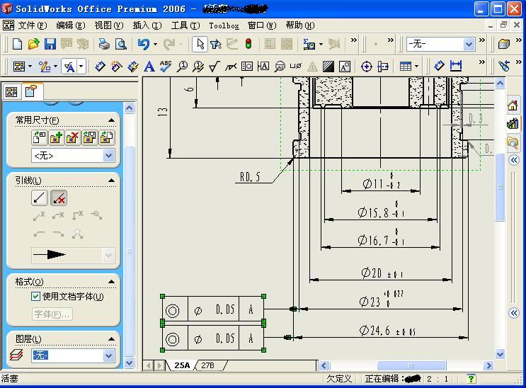
请教高手:图中两个形位公差如何合并在一起?

被选中的两个形位公差

被选中的两个形位公差
发表于 2006-6-22 14:30:36 | 显示全部楼层 来自: 中国广东深圳
看下面
0000.JPG
发表于 2006-6-22 15:31:45 | 显示全部楼层 来自: 中国浙江台州
楼主的意思是Φ23和Φ24.6具有相同的同轴度公差Φ0.05,
发表于 2006-6-22 16:34:11 | 显示全部楼层 来自: 中国广东广州
在其 箭头 按住 ctrl 再 拉出一箭头。

评分

参与人数 1三维币 +5 收起 理由
tianma_liu + 5 鼓励回帖

查看全部评分

 楼主| 发表于 2006-6-23 08:13:48 | 显示全部楼层 来自: 中国浙江宁波
ACAD里直接画可以实现这样的效果(也就是我想要的效果),在SW里只画一个形位公差时可以让它随尺寸线一起移动,但是这时候形位公差是没有引线的(见主帖左边的属性)。我想问的就是这时候能不能画成ACAD里的效果,并且形位公差仍然随尺寸线移动。
CAD形位公差.JPG
发表于 2006-6-23 08:31:48 | 显示全部楼层 来自: 中国广东深圳
原帖由 wwjkgzs 于 2006-6-22 16:34 发表
& x5 V2 Q: ?  Q8 C1 l; H在其 箭头 按住 ctrl 再 拉出一箭头。
0000.JPG
 楼主| 发表于 2006-6-24 10:50:11 | 显示全部楼层 来自: 中国浙江宁波
原帖由 tianma_liu 于 2006-6-23 08:31 发表4 P3 j4 X: v  F! m% l
# l9 c7 B/ b4 M8 ^$ m. {3 Z6 x! `
但是这样的标注,它的箭头与尺寸线是分开的,移动尺寸线的时候标注箭头不会跟随,我想要的是单个标注时随尺寸线移动的效果+多个箭头。
4 A* M; m! L! ~: x7 q# w% E. i按住Ctrl增加箭头的操作,前提是有箭头。但是要让标注随尺寸线移动,就要把标注附加到尺寸上,就会自动变成没有箭头。(请看主帖里显示的属性)  x3 W- N" V+ V. y& c
谢谢!
# o% l0 ?0 J$ G% I& z4 q9 g) M7 ?. D! E, X9 a4 ?6 T: l
[ 本帖最后由 w1solid 于 2006-6-24 10:56 编辑 ]
发表于 2006-7-1 22:22:13 | 显示全部楼层 来自: 中国广东广州
楼主,请说明具体意思
发表于 2006-8-8 15:29:55 | 显示全部楼层 来自: 中国安徽合肥
可以这样标注吗?不同的尺寸不应该在一起标注。
发表于 2006-8-9 19:44:41 | 显示全部楼层 来自: 中国云南昆明
相同的同轴度公差值,但表达的部位不一样.课本上是要求各注各的,但我想可以用一个框格图两个箭线头来表示,但这需要变通,严格意义上来说是不允许的
发表于 2006-8-9 20:13:56 | 显示全部楼层 来自: 中国上海
深奥,还没用solidworks标注过公差等
发表于 2006-8-11 11:20:17 | 显示全部楼层 来自: 中国江苏常州
是呀,工程图里标尺寸我一直都觉得很麻烦,而且字体大小控制不容易,我还是转到CAD里进行再加工的
发表于 2007-5-15 18:46:17 | 显示全部楼层 来自: 中国河北保定
原帖由 tianma_liu 于 2006-6-23 08:31 发表 http://www.3dportal.cn/discuz/images/common/back.gif

' q6 n% P2 }+ [/ w
& x. Q- k/ k6 p2 o/ i5 T) g; G, d& L
我正想问多箭头如何标呢,多谢多谢.
头像被屏蔽
发表于 2007-5-15 19:41:58 | 显示全部楼层 来自: 中国安徽宿州
提示: 作者被禁止或删除 内容自动屏蔽
发表于 2007-5-16 08:30:04 | 显示全部楼层 来自: 中国河南安阳
可以么??学习学习。 :loveliness:
发表于 2007-5-16 08:33:06 | 显示全部楼层 来自: 中国河南安阳
试过了,可以,高人高人
发表于 2008-8-24 11:01:55 | 显示全部楼层 来自: 中国江苏苏州
真的可以啊 ,正好用
发表于 2008-8-24 14:00:24 | 显示全部楼层 来自: 中国吉林长春

回复 13# 的帖子

那就失去了出2二维图的意义,如果三维模型改了怎么办???再加工???2 Z0 i: W& X) v8 a! T/ \
( c( D! E- g% d9 f) b' y8 W- g
SW二维图功能挺强大了,我都是直接出图
/ X! z: j5 @  ^. P2 N$ p# ]3 L8 x) B3 C5 ~( U4 t" e3 T
做个好的二维图模板很有用!good
发表于 2009-8-16 16:01:34 | 显示全部楼层 来自: 中国湖南长沙
原帖由 tianma_liu 于 2006-6-23 08:31 发表 http://www.3dportal.cn/discuz/images/common/back.gif
' m5 q' r" t/ p/ {+ [

) q$ w) I3 M& h( H6 n8 |谢谢,有用,实在!
发表于 2009-8-16 16:55:24 | 显示全部楼层 来自: 中国江苏无锡
骗人的把戏,只是在另一个尺寸上通过草图画了二条直线,看上去象就行了。
未命名.jpg
发表于 2012-8-3 17:03:28 | 显示全部楼层 来自: 中国浙江台州
tianma_liu 发表于 2006-6-23 08:31 static/image/common/back.gif
, j) b& u1 k  F
请问怎么在形位公差方框的另一端也添加一个箭头呢?: _. a2 g9 C5 |7 O2 Z
还有,形位公差的箭头可不可以两次折弯?
发表于 2012-8-3 21:59:18 | 显示全部楼层 来自: 中国江苏镇江
本帖最后由 syc102 于 2012-8-3 22:14 编辑 * d) F% B2 }$ P2 L4 [1 q5 b8 e
轩琪 发表于 2012-8-3 17:03 static/image/common/back.gif: o+ P8 h+ _9 U* f( n, k
请问怎么在形位公差方框的另一端也添加一个箭头呢?
, a* y/ [' @, }+ t# |3 x还有,形位公差的箭头可不可以两次折弯?

, Y! K" F$ q! x9 q& {可以多次折弯,多次添加箭头!! Y" y1 T' m/ \9 x8 {3 \

9 |8 e& [( k& h; Y7 H
ww.jpg
发表于 2012-8-3 22:50:35 | 显示全部楼层 来自: 中国陕西西安
syc102 发表于 2012-8-3 21:59 static/image/common/back.gif
! }/ F" B2 D! L3 Q& K% [: x可以多次折弯,多次添加箭头!

6 }( `' z; Q. e* o这个方法最好,添加转折点,完全可以达到自己的要求。
发表于 2012-8-4 07:32:49 | 显示全部楼层 来自: 中国浙江台州
syc102 发表于 2012-8-3 21:59 static/image/common/back.gif
$ F$ J/ y( @% ~4 G/ c/ i! y可以多次折弯,多次添加箭头!

7 _" v# L; k8 k谢谢,非常感谢!
发表于 2012-8-4 21:21:49 | 显示全部楼层 来自: 中国广东广州
点箭头,按住CTRL最实在,ctrl 作用太大了
发表回复
您需要登录后才可以回帖 登录 | 注册

本版积分规则


Licensed Copyright © 2016-2020 http://www.3dportal.cn/ All Rights Reserved 京 ICP备13008828号

小黑屋|手机版|Archiver|三维网 ( 京ICP备2023026364号-1 )

快速回复 返回顶部 返回列表