QQ登录

只需一步,快速开始

登录 | 注册 | 找回密码

三维网

 找回密码
 注册

QQ登录

只需一步,快速开始

展开

通知     

楼主: lufeiya
收起左侧

[讨论] 请问大伙都是用SW出二维工程图吗?

[复制链接]
发表于 2009-3-19 11:45:40 | 显示全部楼层 来自: 中国广东佛山
把SW模型转成CAD出图,如果有什么修改的话又要重新转CAD,重新标注,想累死人呀?
发表于 2009-3-19 15:20:04 | 显示全部楼层 来自: 中国上海
原帖由 shubinf 于 2009-3-1 08:09 发表 http://www.3dportal.cn/discuz/images/common/back.gif0 E" X" L+ O1 H, T8 d  A3 h& S
既然都用SW建模了,为什么不用SW出工程图呢?6 o2 L( L$ {/ B) W
SW出工程图我想比CAD出工程图快Nⁿ倍,几乎不用你学习,除非你是机盲.
; B  O- f" d& L& ]$ s

; t) e% I0 e' w( h0 h7 d5 o我在设计完产品后,自然用SW出图,保存为dwg格式,便于大家交流。但有时用AUTOCADA来润饰修改,使图面更好看。
发表于 2009-3-19 15:28:18 | 显示全部楼层 来自: 中国山东淄博
我们还是用CAD出图,但我觉得应该用SW快,只是有一个适应过程。
发表于 2009-3-19 16:03:31 | 显示全部楼层 来自: 中国湖北武汉
sw出图很快的,选好模板就更好!
发表于 2009-3-19 16:22:11 | 显示全部楼层 来自: 中国浙江台州
用熟练了,还是SW好,毕竟修改直接在三维上,而且功能也比较强,已经用了3年了
发表于 2009-3-20 08:30:25 | 显示全部楼层 来自: 中国四川成都
SW是关联设计,AUTOCAD是没有的,我遇见几个都是在这上面出问题,设计(NO描图)时经常要改动原有的零件,SW的工程图可以自动更新,模型改了,图纸也就更新了,这是SW让你专注于设计的一大特点,用过就知道这有多重要
发表于 2009-3-20 08:36:14 | 显示全部楼层 来自: 中国浙江宁波
SW出图就是傻瓜式的
发表于 2009-3-26 14:43:26 | 显示全部楼层 来自: 中国江苏苏州

用SW从设计到制图一体化

用SW从设计到制图一体化,供大伙参考,请多多指教2 \6 W9 Q/ q* b$ h

' E$ w+ E) X' f& B* `6 P( ^. h[ 本帖最后由 chenzhiyun008 于 2009-3-26 14:52 编辑 ]

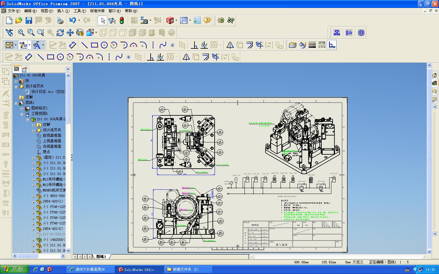
本人做的油压MCjig

本人做的油压MCjig

fixture.PDF

696.5 KB, 下载次数: 19

本人做的油压MCjig

发表于 2009-3-26 14:51:57 | 显示全部楼层 来自: 中国四川成都
原帖由 ugforrest 于 2009-3-1 20:51 发表 http://www.3dportal.cn/discuz/images/common/back.gif/ o$ k' K" q( l% \& W
我很想用SW出图。
9 K6 C" i1 p8 O' M. x$ j8 ?还没用过,不是怕麻烦,而是公司图纸都有规定的格式,没办法!
3 [# |2 g6 G. Y# d  W/ V/ x自己跟上时代很简单,但要想一个公司跟上就不那么简单了!

( F% K6 F# ^3 y9 P6 c& w" G) y  _( I5 W+ |
这个问题是你对SolidWorks不熟悉造成的,其实SolidWorks如果进行工程图模板编制的话,可以吧SolidWorks的工程图完全按照你们公司的规定格式来出图
发表于 2009-3-26 15:08:50 | 显示全部楼层 来自: 中国江苏苏州

SW做机械设计的好处

SW做机械设计的好处,不管是从开始做设计,还是制图,都是关联性的,3D变了,2D 也会变。
1 D; ?$ E3 R) @' W) Q至于你是用从上到下,还是从下到上的设计方法,那其实都不是很重要,那只是设计方法,重要的是结构要清楚。
发表于 2009-3-26 21:18:59 | 显示全部楼层 来自: 中国广东广州
学习了,要用SW出工程图不断练习。
发表于 2009-3-26 22:51:26 | 显示全部楼层 来自: 中国天津
暂时还不是
: t0 S3 ~+ F, |/ O& }- r# ~$ F但是争取早日过渡过去
发表于 2009-3-26 23:36:27 | 显示全部楼层 来自: 中国浙江杭州
sw出工程图非常方便,尤其08、09版的功能很强大,比如编辑、标注功能等,建模后可直接转成工程图,部件工程图可自动生成零部件明细表,另外还可生成专用件、标准外购件、借用件汇总表,诸如此类远比Autocad强大、方便!
发表于 2009-3-27 10:55:39 | 显示全部楼层 来自: 中国广东东莞
sw出图爽极了!
发表于 2009-3-27 10:57:01 | 显示全部楼层 来自: 中国北京
SW出图确实比较方便,但有些细节部分需要调整
发表于 2009-3-27 12:07:36 | 显示全部楼层 来自: 中国甘肃兰州
7楼的能不能给我们仔细讲讲啊!SW我不太会啊
发表于 2009-3-27 17:16:28 | 显示全部楼层 来自: 中国上海
我试图尽量用SW来出二维工程图,也为此做了许多工作
+ d- w0 w8 d2 v8 w+ f0 F比如预先定义图框,零件明细表,零件图模版,装配体模版等,想想这些先期的工作做好了
2 _- N- Y2 j8 C9 O: x) Y0 F( K出图应该是一件很容易的事情吧,至少比二维软件有优势吧
5 ~9 F; ^9 G/ v确实,在一些简单的设计中1 Q2 i" x/ ]  b, ?
装配体于零件的工程图的出图速度还可以。3 b5 K7 O6 H/ G
但是…………, r% g+ W2 T9 \
在一些复杂的设计中,比如机床整机我用三维软件设计完成后
4 T# [. `+ P* m* l) f: j0 k. j可能有上百个零部件。还有的零部件比较复杂,可能单个零件就有上百个特征。6 u" {/ \5 N. M3 i& R' v
这时候直接出工程图成了件非常痛苦的事情
, W5 Z3 X/ X- U% e/ I那个速度………………+ ~& A7 K) a$ `4 C6 B+ U
自问电脑配置比较好DELL M4300移动工作站: D8 B) N! r6 N
花了好多功夫才说服公司花了大价钱购买的哦,就是为了能够直接用SW出工程图
% r7 H( U: o% n5 j& W出图速度那个慢啊,标个尺寸都要半天,缩小放大的速度也奇慢
; p4 }, G( c  z$ r与我用顺手的CAXA软件不可同日而语啊。- |/ `$ ~# L; @6 r# t$ P; a
哎……………………
# Y" M  Z1 o! V' L都说图纸是工程师的语言7 \% ~/ u/ e  M' O. y9 _' _  j! ~* s
花了九牛二虎之力将三维模型设计好2 L" ?8 T; W/ |/ M! }# W( x; k
总不能把模型直接给厂家去制作吧?也太不科学和严谨了吧
/ i2 @, V5 c% h- b再说,有些东西像基准、公差,技术要求等等,只能在图纸总才能表达清楚的吧。
% h' i3 L. z1 R! j' f0 ~总之一句话,如果出图速度能比得上二维软件的话
( d! Y; R. H, P肯定是推广很快的0 D( I" C' B0 p1 u
现在…………据我了解,很多机械厂家设计出图还是二维为主啊
发表于 2009-3-27 21:58:33 | 显示全部楼层 来自: 中国辽宁铁岭
路过,学习了
发表于 2009-3-29 02:02:05 | 显示全部楼层 来自: 中国上海
solidworks   在学习如何出工程图    感觉很不适应    . I& e! [1 H5 s

* Y" w+ B6 V  j: ~. b9 V在CAD中我可以随意更改任何的数据,然而在SolidWorks里特别死板,出一些小的零件图可以。但是需要大量注解的复杂零件图的时候,solidworks就很麻烦。
发表于 2009-3-29 09:50:45 | 显示全部楼层 来自: 中国天津
我最近学习用sw出图SW的工程图相当强大,比acad强多了,内置多种加工符号,而且调整绘图比例和图纸图幅相当方便。就是随意性有的不如意. l) L. t, h! T+ K7 T

% G5 _2 ?6 l8 k& P; `! B  n; ]% z[ 本帖最后由 zhukai64 于 2009-3-29 09:53 编辑 ]
发表于 2009-3-29 23:15:12 | 显示全部楼层 来自: 中国江西九江
一直用它出工程图,产品很多
发表于 2009-3-30 10:24:30 | 显示全部楼层 来自: 中国辽宁沈阳
我认为直接用SW出图挺好的,但是有些细节地方与机械制图标准不符需要自己调整或者手动修改,如剖切箭头粗细,局部剖视图边界线是粗线等,但总的来说还是挺方便的。
发表于 2009-3-31 14:16:26 | 显示全部楼层 来自: 中国浙江金华
SW 直接出的工程图不符合GB,给加工者看看还可以,作为图纸保留恐怕不行。
发表于 2009-3-31 16:11:32 | 显示全部楼层 来自: 中国浙江宁波
我觉得sw出的工程图不是很完善,我一般还要拿到cad上修改
发表于 2009-3-31 16:38:42 | 显示全部楼层 来自: 美国
个人还是感觉用AUTOCAD方便的多。用SW只是参数建模来看看,打出粗略的图纸,标上尺寸。再在AUTOCAD里面绘制。因为一开始用的AUTOCAD所以感觉要正式些。
发表回复
您需要登录后才可以回帖 登录 | 注册

本版积分规则


Licensed Copyright © 2016-2020 http://www.3dportal.cn/ All Rights Reserved 京 ICP备13008828号

小黑屋|手机版|Archiver|三维网 ( 京ICP备2023026364号-1 )

快速回复 返回顶部 返回列表