QQ登录

只需一步,快速开始

登录 | 注册 | 找回密码

三维网

 找回密码
 注册

QQ登录

只需一步,快速开始

展开

通知     

全站
14小时前
楼主: edisoncba
收起左侧

[分享] 高级制图员上机试卷

 关闭 [复制链接]
发表于 2009-2-17 14:57:54 | 显示全部楼层 来自: 中国河南洛阳
看看我是初级不?
发表于 2010-5-12 21:01:07 | 显示全部楼层 来自: 中国四川成都
wo zhichi!!!!!! 25# ug学习 henhao
发表于 2010-5-12 21:02:02 | 显示全部楼层 来自: 中国四川成都
我也回复回复,想画画图!!
发表于 2010-5-12 23:42:40 | 显示全部楼层 来自: 中国山东莱芜
谢谢楼主,下载看看
发表于 2010-5-13 00:51:49 | 显示全部楼层 来自: 中国广西桂林
好资料,支持楼主!
发表于 2010-5-13 06:01:26 | 显示全部楼层 来自: 中国广东深圳
下载试试看,谢谢分享
发表于 2010-5-13 09:16:33 | 显示全部楼层 来自: 中国湖北武汉
这种题目也太简单了吧 还高级。。。。
发表于 2010-5-13 11:43:10 | 显示全部楼层 来自: 中国四川成都
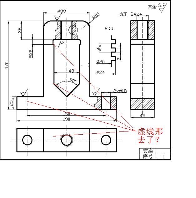
看了LZ的图,我实在是不吐不快,高级???很疑问啊,图上很多必须的东西都没有或不全,材料,尺寸公差,粗糙度,形位公差,明细表,技术要求等,当然,你可以说设计者他不需要这些,一样加工出合格的产品,那我佩服,但我最不能忍受的是图纸上还有很多错误,让我看了后实在是不舒服,不吐不快,LZ,如有得罪,见谅,我有点直
2 D0 l8 R, @7 i1 z, A9 _+ E大概看了一下发现的错误
1.JPG
2.JPG
3.JPG
4.JPG
发表于 2010-5-13 12:12:12 | 显示全部楼层 来自: 中国浙江杭州
电气专业的人飘过,觉得现在的考试都好假。。
$ E' L6 h- \3 L) `. E* J- A1 X7 L; l% g5 s对学历、证书是爱之恨之
, |2 V- H5 j* t爱,因为有了它,你才能工作一马平川
: p/ x$ r/ [: E# G% n5 Q恨,因为考了它,你就觉得在侮辱自己
4 A* ~7 c$ Q2 o  M" d喜欢这个论坛,因为很多人都这么好学并能分享自己的见解
发表于 2010-5-13 13:34:22 | 显示全部楼层 来自: 中国北京
我也下来看看
发表于 2010-5-13 15:17:02 | 显示全部楼层 来自: 中国上海
有的题目做过。但是没有全做过。不知道时间是多长
发表于 2010-5-14 15:55:39 | 显示全部楼层 来自: 中国河北廊坊
我是初学者,感觉不容易呀,希望高手指教呀
发表于 2010-5-14 18:59:59 | 显示全部楼层 来自: 中国浙江杭州
很了以后开始以为图很简单,但细想,用CAD画起来还是很麻烦的,
发表于 2010-5-14 20:00:34 | 显示全部楼层 来自: 中国江苏苏州
看看,我什么时候能达到那个水平
发表于 2010-5-14 20:45:27 | 显示全部楼层 来自: 中国山西太原
看看是么东西
发表于 2010-5-14 22:46:51 | 显示全部楼层 来自: 中国福建厦门
太简单了吧。。。要这样的话,我都成了超级了
发表于 2010-5-15 08:33:40 | 显示全部楼层 来自: 中国河北保定
较简单,不过工作量较大呵,比技师的量还大
发表于 2010-5-15 09:43:41 | 显示全部楼层 来自: 中国广东东莞
:curse:下载看看,谢谢楼主分享
发表于 2010-5-28 15:18:47 | 显示全部楼层 来自: 中国浙江宁波
下载看看
发表于 2010-5-28 15:22:54 | 显示全部楼层 来自: 中国贵州六盘水
下下来参考下,看看难度如何
发表于 2010-5-28 15:50:47 | 显示全部楼层 来自: 中国江苏苏州
我相信这个是高级制图员的试题。。0 G1 S1 ?+ O' |4 w, g* N2 n; u

2 b0 M8 |( K! a7 w; Y9 Z1 I7 H但是是又怎么样??再怎么高级还是制图员。
发表于 2010-5-29 17:53:32 | 显示全部楼层 来自: 中国辽宁沈阳
是CSWA吧,楼主要诚恳啊,我们要的是CSWP
发表于 2010-5-30 10:51:38 | 显示全部楼层 来自: 中国辽宁大连
下来看看,!!!
发表于 2010-5-30 11:12:05 | 显示全部楼层 来自: 中国天津
谢谢楼主分享,看看
发表于 2010-5-30 18:34:36 | 显示全部楼层 来自: 中国广东惠州
可以贴图看看嘛。先下来看看自己能不能都做对啊
发表回复
您需要登录后才可以回帖 登录 | 注册

本版积分规则


Licensed Copyright © 2016-2020 http://www.3dportal.cn/ All Rights Reserved 京 ICP备13008828号

小黑屋|手机版|Archiver|三维网 ( 京ICP备2023026364号-1 )

快速回复 返回顶部 返回列表