QQ登录

只需一步,快速开始

登录 | 注册 | 找回密码

三维网

 找回密码
 注册

QQ登录

只需一步,快速开始

展开

通知     

楼主: 小刘-到
收起左侧

[已解决] 平行度,平整度标注的疑问

[复制链接]
发表于 2014-8-16 09:41:23 | 显示全部楼层 来自: 中国广东梅州
哎,中国标准,美国标准,欧洲标准。。。
发表于 2014-8-16 09:42:15 | 显示全部楼层 来自: 中国广东梅州
香港都有标准。
发表于 2014-8-16 10:11:05 | 显示全部楼层 来自: 中国广东梅州
我以前刚刚看宝洁公司的图纸,就闹了个笑话。人家单位是英寸,我说这么小的工件没有加工过。后来才知道人家公差也不标注的,是按照标注的尺寸就知道公差范围。比如尺寸小数点后越多,尺寸公差越精密。
 楼主| 发表于 2014-8-16 14:03:14 | 显示全部楼层 来自: 中国广东深圳
非主流~不离 发表于 2014-8-16 10:11 static/image/common/back.gif; ]+ j1 ]2 Z, b7 o3 F$ g9 N# }
我以前刚刚看宝洁公司的图纸,就闹了个笑话。人家单位是英寸,我说这么小的工件没有加工过。后来才知 ...

- [$ k$ V% ?! w$ ~* g对呀,未标注公差的就按图框里面的公差计算,我也见过。
发表于 2014-8-16 15:33:11 | 显示全部楼层 来自: 中国陕西西安
小刘-到 发表于 2014-8-13 08:39 static/image/common/back.gif( Y* @0 j8 f2 K+ l9 E6 \
谢谢前辈的指导!!!: O: q( Z& p( s
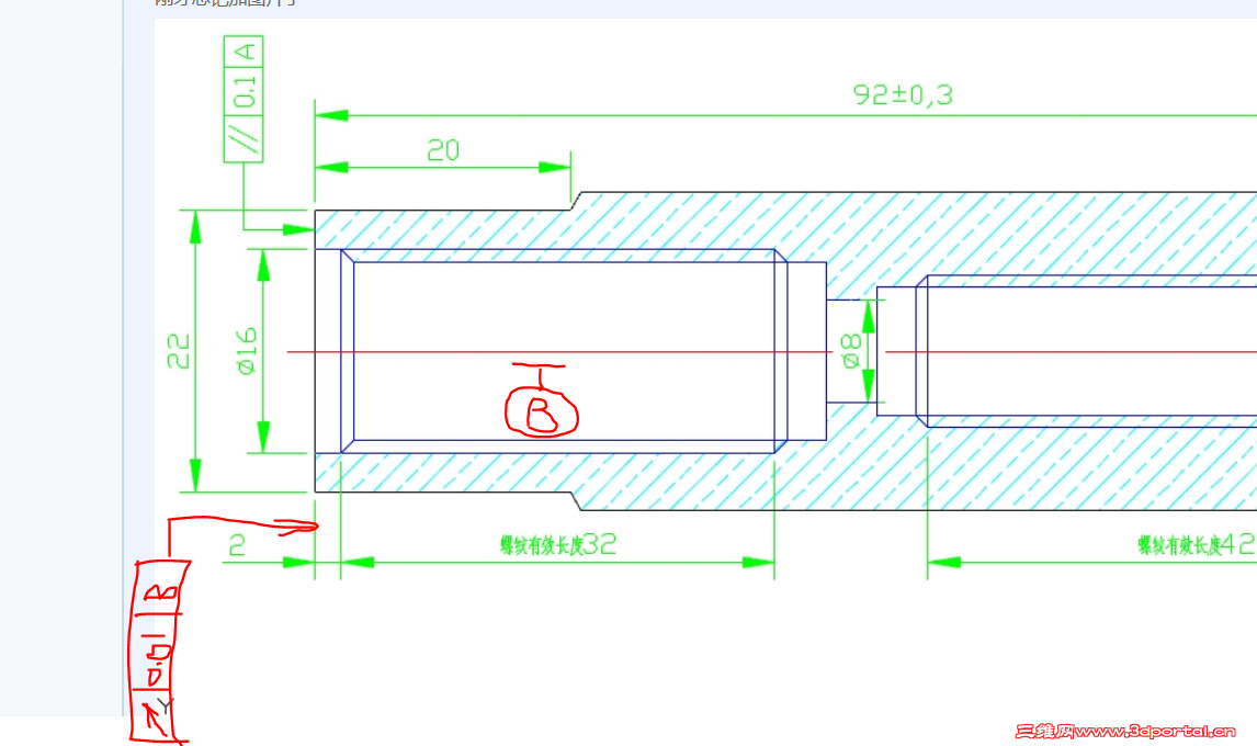
1、直径8毫米的孔,我专门又问过师父了,他说要留着,我就先不纠结它了。
6 u8 z) v0 X5 J. \: N9 k+ E2、孔口 ...

9 u/ ~% T% Y% E0 @& O# ~- Y小数分隔符号的设置:
' y' K: B3 f% F5 S, Q+ W+ e1 ^; h1 g$ V
20140816-6.PNG

评分

参与人数 1三维币 +5 收起 理由
2005llnn + 5 应助

查看全部评分

发表于 2014-8-16 15:39:12 | 显示全部楼层 来自: 中国陕西西安
小刘-到 发表于 2014-8-13 15:59 static/image/common/back.gif
" k7 R, G1 ^# J0 T1 w前辈说的也是,可是怎么标呀?3 z, _' F6 m3 A" K9 j
还有一个疑问,像图纸这样画出来,明显垂直的,究竟需不需要说明呢?以前 ...
- W. Q' ?% C5 R$ I$ ~
端面跳动标法:
7 X6 J9 G9 F7 R# w5 @( {
. o" @4 y" J* l0 n 20140816-7.PNG

评分

参与人数 1三维币 +5 收起 理由
2005llnn + 5 应助

查看全部评分

 楼主| 发表于 2014-8-20 08:31:14 | 显示全部楼层 来自: 中国广东深圳
我爱用acad 发表于 2014-8-16 15:33 static/image/common/back.gif% W+ l0 P+ k% @, s, {6 w
小数分隔符号的设置:

6 b- r3 N9 C1 n6 p( ?谢谢前辈,已经按前辈的方法修改啦!
发表回复
您需要登录后才可以回帖 登录 | 注册

本版积分规则


Licensed Copyright © 2016-2020 http://www.3dportal.cn/ All Rights Reserved 京 ICP备13008828号

小黑屋|手机版|Archiver|三维网 ( 京ICP备2023026364号-1 )

快速回复 返回顶部 返回列表