QQ登录

只需一步,快速开始

登录 | 注册 | 找回密码

三维网

 找回密码
 注册

QQ登录

只需一步,快速开始

展开

通知     

查看: 7117|回复: 55
收起左侧

[已解决] 方孔的加工方法

[复制链接]
发表于 2010-7-28 19:48:29 | 显示全部楼层 |阅读模式 来自: 中国江苏苏州

马上注册,结识高手,享用更多资源,轻松玩转三维网社区。

您需要 登录 才可以下载或查看,没有帐号?注册

x
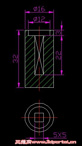
1.jpg
# d8 ]' P) Q/ C4 y7 a5 J* D4 V( B各位高手!如图所示的5×5方孔该如何加工?
! v' A- _2 t$ d+ e  ~, p9 q谢谢指教!!!
发表于 2010-7-28 20:53:53 | 显示全部楼层 来自: 中国山东烟台
建议使用放电加工!

评分

参与人数 1三维币 +2 收起 理由
plc + 2 应助

查看全部评分

发表于 2010-7-28 21:12:37 | 显示全部楼层 来自: 中国浙江嘉兴
本帖最后由 zhoushan403 于 2010-7-28 21:39 编辑
9 r8 d' J0 C8 d% ^, v$ c% |8 S6 l' \  _  z1 y1 S! x! y
是批量生产还是单件?
% p) q( Y3 `; o( f数量不多建议采用电脉冲,要是批量的建议采用锻造(热冲)。

评分

参与人数 1三维币 +2 收起 理由
plc + 2 应助

查看全部评分

 楼主| 发表于 2010-7-28 21:15:40 | 显示全部楼层 来自: 中国江苏苏州
3# zhoushan403 ( x5 b1 a0 O) O

" g  Q) [% U1 H, `谈不上批量,楼主,冷冲可以吗?
发表于 2010-7-28 22:18:49 | 显示全部楼层 来自: 中国上海
1# nzy
# }. Z& ?: P! {  X0 r; x
1 b/ V/ P/ z) `  Z5 f$ C* j
) ^. n3 W0 h: W8 k5 O: K* {学习一下,采用电脉冲怎么保证方孔的直角,石墨电极直角边是不是要倒圆?

评分

参与人数 1三维币 +2 收起 理由
plc + 2 技术讨论

查看全部评分

发表于 2010-7-29 07:55:10 | 显示全部楼层 来自: 中国安徽滁州
批量不大,采用电火花加工为宜。

评分

参与人数 1三维币 +2 收起 理由
plc + 2 应助

查看全部评分

发表于 2010-7-29 08:07:47 | 显示全部楼层 来自: 中国山西太原
此件方孔长径比较大,先钻φ4.5mm孔,热冲压成形,若冷冲压冲头寿命短。电火花加工效率低。

评分

参与人数 1三维币 +2 收起 理由
plc + 2 应助

查看全部评分

发表于 2010-7-29 08:10:47 | 显示全部楼层 来自: 中国河南南阳
精度要求高、批量小的可以采用电火花,精度要求低、批量大的最好直接成型,不需要加工。

评分

参与人数 1三维币 +2 收起 理由
plc + 2 应助

查看全部评分

头像被屏蔽
发表于 2010-7-29 08:25:29 | 显示全部楼层 来自: 中国辽宁丹东
提示: 作者被禁止或删除 内容自动屏蔽
发表于 2010-7-29 08:39:29 | 显示全部楼层 来自: 中国上海
盲孔,大大增加了加工难度,改成通孔不行吗?

评分

参与人数 1三维币 +2 收起 理由
plc + 2 应助

查看全部评分

发表于 2010-7-29 08:48:56 | 显示全部楼层 来自: 中国浙江金华
设计上最好考虑容易加工...否则成本太高,加工太困难.

评分

参与人数 1三维币 +2 收起 理由
plc + 2 技术讨论

查看全部评分

发表于 2010-7-29 08:54:37 | 显示全部楼层 来自: 中国天津
啥材质的?(铝:冷冲,铁:红冲,不锈钢:精密铸造,样品:电火花)

评分

参与人数 1三维币 +2 收起 理由
plc + 2 应助

查看全部评分

发表于 2010-7-29 14:28:23 | 显示全部楼层 来自: 中国江苏泰州
这方孔做什么用,感觉不符合机械设计原则

评分

参与人数 1三维币 +2 收起 理由
plc + 2 技术讨论

查看全部评分

发表于 2010-7-29 16:33:11 | 显示全部楼层 来自: 中国陕西西安
这个比例不能冲的,太深。关键这个22是不是一定要准确,要是不用很准或者说最小22的话还好做点。可以上车床的哦

评分

参与人数 1三维币 +2 收起 理由
plc + 2 应助

查看全部评分

发表于 2010-7-29 16:47:18 | 显示全部楼层 来自: 中国上海
我看了一下,要这样的方孔最好还是铸造,毕竟精确多了。冲压不现实,电火花做几个到是没问题!

评分

参与人数 1三维币 +2 收起 理由
plc + 2 应助

查看全部评分

发表于 2010-7-29 16:48:47 | 显示全部楼层 来自: 中国湖南长沙
支持12楼,支持
发表于 2010-7-29 20:36:18 | 显示全部楼层 来自: 中国山东青岛
材质? 用途?一般孔底应有退刀,一般钢材(45,Q235)先钻-再-冷冲

评分

参与人数 1三维币 +2 收起 理由
plc + 2 技术讨论

查看全部评分

发表于 2010-7-29 20:58:39 | 显示全部楼层 来自: 中国陕西西安
孔太小,即使精铸也很难保证。没有退刀槽,冷热冲都不可能。只有电火花加工或改变设计使之更符合加工工艺需求。

评分

参与人数 1三维币 +2 收起 理由
plc + 2 技术讨论

查看全部评分

发表于 2010-7-30 10:58:49 | 显示全部楼层 来自: 中国广东深圳
量大粉末冶金
发表于 2010-7-31 15:09:39 | 显示全部楼层 来自: 中国福建泉州
如果是通孔就好办多了,0 Q# F8 h5 E& j, _
不是特别要求就设计成通孔了
发表于 2010-7-31 15:56:25 | 显示全部楼层 来自: 中国浙江宁波
普通精铸做不出来的,硅溶胶工艺也很难保证,孔径和深度比例太夸张的......盲孔更是不好做!9 ]0 }3 z) S$ p; l9 n+ Z6 o

/ n! G' D$ q8 Q+ L5 l数量大建议粉末冶金,少量建议电脉冲加工!
发表于 2010-7-31 23:49:43 | 显示全部楼层 来自: 中国广东东莞
具体要看什么材质,尺寸精度及22尺寸底部的要求及批量而定。: {5 F. H# b0 Q; R% \' K" p
铝:加d4.5~4.8底孔冷挤压;钢:尺寸精度不高且底部要求不高时:加d4.5~4.8底孔冷挤压;精度要求高时:另外加电火花精加工。
发表于 2010-8-1 00:57:09 | 显示全部楼层 来自: 中国山东青岛
学习中,确实不是非常好加工
发表于 2010-8-2 09:58:59 | 显示全部楼层 来自: 中国江苏镇江
如果精度要求高的哈 我建议用线切割!
发表于 2010-8-2 14:34:16 | 显示全部楼层 来自: 中国山东烟台
就电火花加工得了
发表回复
您需要登录后才可以回帖 登录 | 注册

本版积分规则


Licensed Copyright © 2016-2020 http://www.3dportal.cn/ All Rights Reserved 京 ICP备13008828号

小黑屋|手机版|Archiver|三维网 ( 京ICP备2023026364号-1 )

快速回复 返回顶部 返回列表