QQ登录

只需一步,快速开始

登录 | 注册 | 找回密码

三维网

 找回密码
 注册

QQ登录

只需一步,快速开始

展开

通知     

查看: 2838|回复: 6
收起左侧

[求助] 三维实体剖切后无法合并?!

[复制链接]
发表于 2010-12-15 14:02:45 | 显示全部楼层 |阅读模式 来自: 中国四川德阳

马上注册,结识高手,享用更多资源,轻松玩转三维网社区。

您需要 登录 才可以下载或查看,没有帐号?注册

x
( H3 P% T- d0 x$ D/ t9 r# B
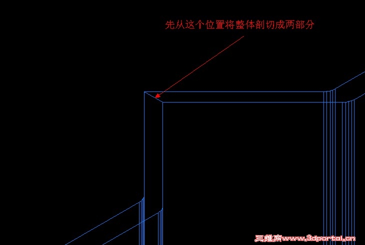
遇到的问题如下图所示:
8 Y8 t$ n" P, `1 o7 Z9 ~' q 1.jpg 3 G0 b0 ?2 F0 I; B  p* ^# u
1.2.jpg
" N* _0 O; ^5 n( R& N( b 1.3.jpg
8 A5 D: H& r% a3 V( b 2.jpg
5 X: B) x2 P7 x 3.jpg
/ u$ d' a# c( w$ _ 4.jpg ) F5 b6 v+ n, D4 N. p
5.jpg
4 M' g6 e/ A8 T. L- i% z3 ^" r7 h. }. c  e
  f# E0 V+ m0 Y0 q* ~

! n9 V8 y9 S  L! I) R. c
7 V+ W4 y' M1 L# G5 o; N问题模型: 模型.dwg (130.08 KB, 下载次数: 7)
发表于 2010-12-15 19:27:32 | 显示全部楼层 来自: 中国广东汕头
楼主给的文件已经是合并好的。
发表于 2010-12-15 19:41:51 | 显示全部楼层 来自: 中国辽宁
那里貌似一条线,其实是两条边,放大了看就知道了.局部细节太复杂了,CAD受不了了
Untitled-1.gif
Untitled-2.gif

评分

参与人数 1三维币 +5 收起 理由
wang2003 + 5 应助

查看全部评分

 楼主| 发表于 2010-12-16 08:42:54 | 显示全部楼层 来自: 中国四川德阳
本帖最后由 fergus1987 于 2010-12-16 08:44 编辑
: n( O/ F9 \( ?7 _+ ~7 x$ h" V6 x! P+ P* E- Y9 j5 p/ c7 x' H
2#  2 y. e4 t! O6 ]' W* d5 }. E, {

. s5 c2 g% [: \; S  h" I3 T) G谢谢你的回复  不过我需要将它先剖切开  然后再此合并 这样就出现问题了!
 楼主| 发表于 2010-12-16 08:45:24 | 显示全部楼层 来自: 中国四川德阳
3# woaishuijia
% ~1 d$ G0 p, ?8 |! Q
8 Z6 f3 I& d+ d& X- v& L9 S谢谢你的解答  请问有方法将两者合并吗  就是消除那条线  因为我在CAD里用di查询命令 两部分的长宽高都是一样的?! 急求!!
发表于 2010-12-16 11:52:31 | 显示全部楼层 来自: 中国广东汕头
请问下你是怎么剖切的,建议你移动坐标后用XY平面进行剖切,而不要用3点的方式取截面。然后再合并,这样可能不会出错。
 楼主| 发表于 2010-12-18 13:57:09 | 显示全部楼层 来自: 中国四川德阳
6# 唐昕晨 6 l: [  [7 G* a& x8 Z" Y9 |" w

$ F6 p' `- U: r0 |% q. k我是三点剖切的  按照你的方法用坐标面剖切 结果一样的。。
发表回复
您需要登录后才可以回帖 登录 | 注册

本版积分规则


Licensed Copyright © 2016-2020 http://www.3dportal.cn/ All Rights Reserved 京 ICP备13008828号

小黑屋|手机版|Archiver|三维网 ( 京ICP备2023026364号-1 )

快速回复 返回顶部 返回列表