QQ登录

只需一步,快速开始

登录 | 注册 | 找回密码

三维网

 找回密码
 注册

QQ登录

只需一步,快速开始

展开

通知     

全站
8天前
查看: 3130|回复: 5
收起左侧

[求助] 加工这样一个六级精度齿轮需要多少钱?

[复制链接]
发表于 2010-10-30 15:09:18 | 显示全部楼层 |阅读模式 来自: 中国广东东莞

马上注册,结识高手,享用更多资源,轻松玩转三维网社区。

您需要 登录 才可以下载或查看,没有帐号?注册

x
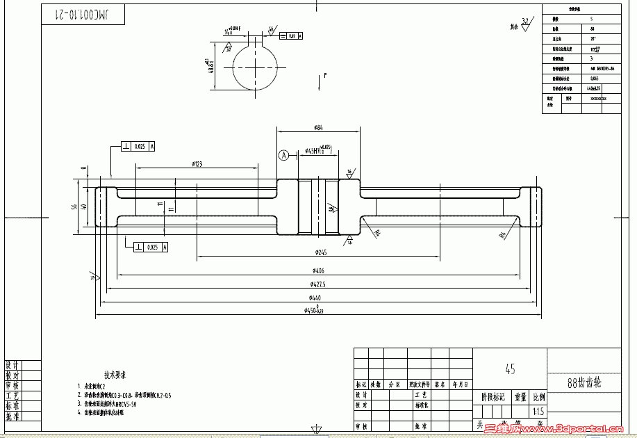
未命名.GIF
. x2 y& _( \  E1 q* _- ?, o: j5 r, y( K& S3 Y/ Q  c
加工如上图所示的这样一个六级精度齿轮需要多少钱?
发表于 2010-10-30 18:37:24 | 显示全部楼层 来自: 中国浙江杭州
这个估计不便宜,我们多是自己加工的,应该在千元以上!
发表于 2010-11-1 11:27:07 | 显示全部楼层 来自: 中国北京
那可能只是成本价,要买肯定高于。正常的市场价格应该在3,4千左右,当然是质量好的,可靠的。
发表于 2010-11-1 13:07:36 | 显示全部楼层 来自: 中国河南新乡
如果是批量的话,不会超过三千块钱。印刷机械上用的比这精度还高呢,它是5-5-6级的,上网找吧能找到。
发表于 2011-4-5 23:21:57 | 显示全部楼层 来自: 中国江西南昌
主要是原材料贵,这样的大齿轮,磨齿的,单件3200左右,批量价格也不会少很多。
发表于 2011-4-18 11:44:28 | 显示全部楼层 来自: 中国山东淄博
计算成本应该客观的计算(预算),可以按照步骤进行:! @- y; b) v! e( c4 @1 m- x
1.计算齿坯材料的重量,乘以材料现行的价格;
+ [( D  E( A6 R! y% g4 F" n2.按照齿轮硬度和精度要求,材料40Gr,工艺采用锻打、粗车、调质、精车、制齿、高频淬火等。: D" ]; ?  |3 B# U9 X) c. ?! A
3.机加工按工时单价计算,热处理按工件重量计算费用。

评分

参与人数 1三维币 +4 收起 理由
hero2006 + 4 技术讨论

查看全部评分

发表回复
您需要登录后才可以回帖 登录 | 注册

本版积分规则


Licensed Copyright © 2016-2020 http://www.3dportal.cn/ All Rights Reserved 京 ICP备13008828号

小黑屋|手机版|Archiver|三维网 ( 京ICP备2023026364号-1 )

快速回复 返回顶部 返回列表