QQ登录

只需一步,快速开始

登录 | 注册 | 找回密码

三维网

 找回密码
 注册

QQ登录

只需一步,快速开始

展开

通知     

查看: 1645|回复: 2
收起左侧

[讨论] 如何打印戳记?但不是简单的字段

[复制链接]
发表于 2010-10-11 21:03:25 | 显示全部楼层 |阅读模式 来自: 中国北京

马上注册,结识高手,享用更多资源,轻松玩转三维网社区。

您需要 登录 才可以下载或查看,没有帐号?注册

x
本帖最后由 woaishuijia 于 2010-10-12 11:00 编辑
) [. _8 `1 ]5 ]# {: K7 F: ^
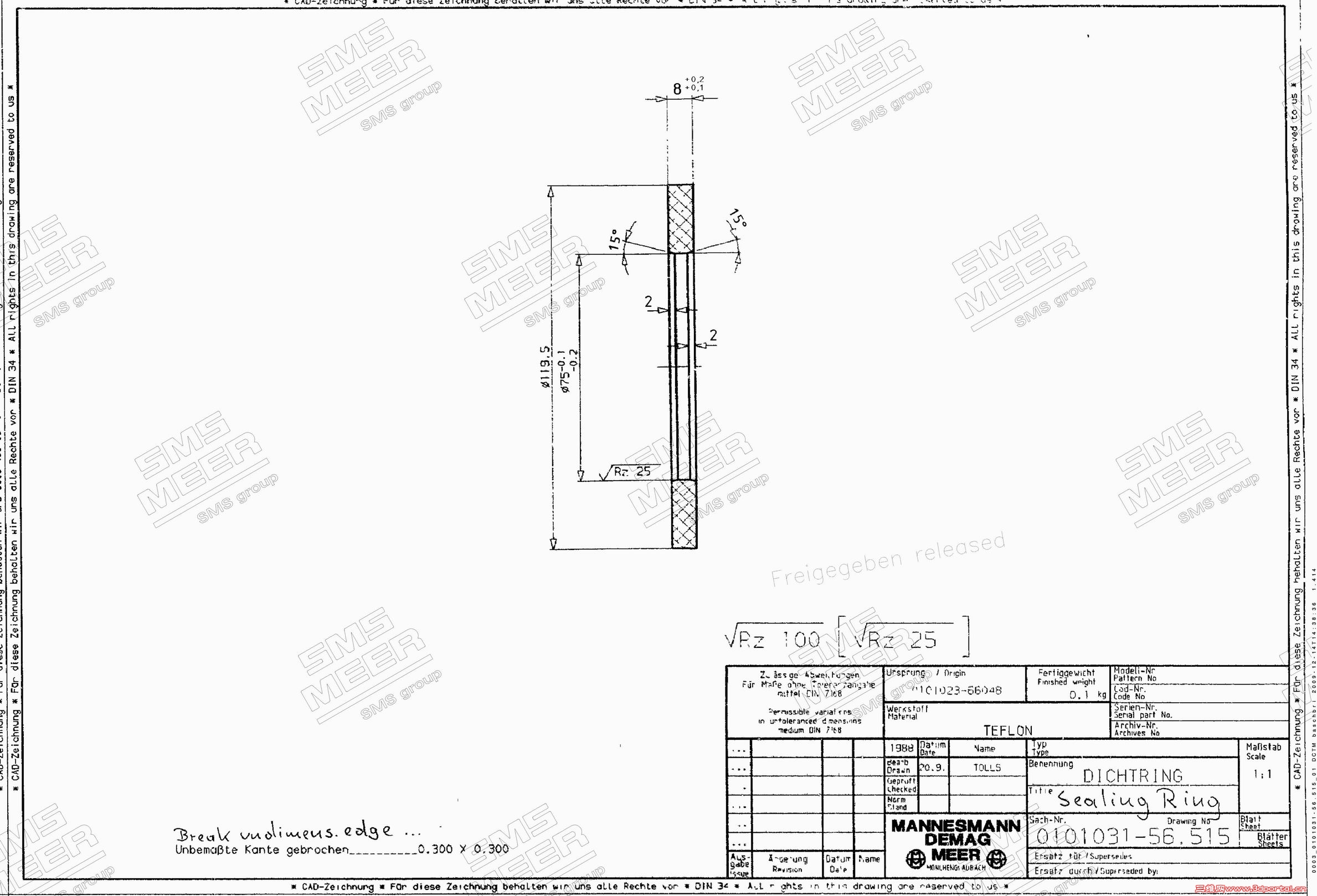
8 T4 S3 l9 B. p. a" F. n3 K, U如何制作下面图纸中的SMS MEER的水印标识! x. U! T% }+ S! Y7 n3 S% x
调整大小 调整大小 1111.jpg
发表于 2010-10-12 09:40:24 | 显示全部楼层 来自: 中国安徽芜湖
本帖最后由 coolboy123 于 2010-10-12 09:43 编辑 * h4 Q1 I: R7 M8 ~) G; w7 d
5 _% G. _7 N# X$ `) Q7 `, s% ^
国标写得很清楚:“工程图中不得有影响识图的符号、文字、图案、水印等”,所以您的想法可以看作是异想天开。
- J* ?* F% Q, c9 D! c  Z" X* c* {如果实在要搞,可以用“附着光栅图像文件”实现,这是AUTOCAD自带的功能,但是这是违反工程图一般原则的行为。

评分

参与人数 1三维币 +5 收起 理由
woaishuijia + 5 技术讨论

查看全部评分

发表于 2010-10-12 11:03:12 | 显示全部楼层 来自: 中国辽宁沈阳
学习了。看来什么都得懂一些。
发表回复
您需要登录后才可以回帖 登录 | 注册

本版积分规则


Licensed Copyright © 2016-2020 http://www.3dportal.cn/ All Rights Reserved 京 ICP备13008828号

小黑屋|手机版|Archiver|三维网 ( 京ICP备2023026364号-1 )

快速回复 返回顶部 返回列表