QQ登录

只需一步,快速开始

登录 | 注册 | 找回密码

三维网

 找回密码
 注册

QQ登录

只需一步,快速开始

展开

通知     

全站
3天前
查看: 1309|回复: 7
收起左侧

[已解决] 在线质询

 关闭 [复制链接]
发表于 2010-10-8 23:43:01 | 显示全部楼层 |阅读模式 来自: 中国陕西西安

马上注册,结识高手,享用更多资源,轻松玩转三维网社区。

您需要 登录 才可以下载或查看,没有帐号?注册

x
请问,已经生成的三维图怎样看尺寸?用的是sw2010,急
发表于 2010-10-9 00:44:32 | 显示全部楼层 来自: 中国广东深圳
双击特征或用测量工具
 楼主| 发表于 2010-10-9 07:12:19 | 显示全部楼层 来自: 中国陕西西安
楼上,测量工具找不到{帮助里也没有},双击只看特征,相邻之间的不行
发表于 2010-10-9 08:45:51 | 显示全部楼层 来自: 中国北京
如你是默认安装的,在评估选项卡中有测量工具。帮助里是肯定有测量工具的,看来你是生手中的生手。
发表于 2010-10-9 09:43:48 | 显示全部楼层 来自: 中国广东佛山
方法应该有很多吧
+ R- @& {- R( l7 u1 @/ f6 x可以用测量
8 T6 ]1 ^7 n& {& \4 d6 ?或者在草图中看) E" K+ h" w$ k6 f
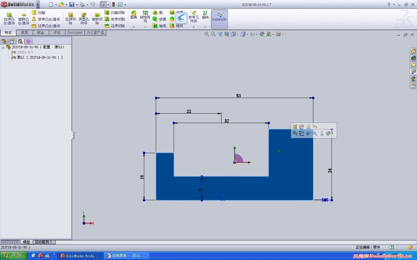
再要不就如下图了
未命名fdsa.jpg
发表于 2010-10-9 12:54:50 | 显示全部楼层 来自: 中国浙江杭州
本帖最后由 livefy 于 2010-10-9 12:58 编辑 3 \3 k6 D1 j$ }  O( m1 T

: n8 \0 I4 a  p应该是工具栏中的测量工具吧,或是双击特征树中的草图(如果你草图有标尺寸的话)
工具栏测量.JPG
 楼主| 发表于 2010-10-9 21:36:11 | 显示全部楼层 来自: 中国陕西西安
十分感谢各位,学会了,则再次感谢
发表于 2010-10-9 21:47:18 | 显示全部楼层 来自: 中国广东惠州
编辑草图不就可以吗?
发表回复
您需要登录后才可以回帖 登录 | 注册

本版积分规则


Licensed Copyright © 2016-2020 http://www.3dportal.cn/ All Rights Reserved 京 ICP备13008828号

小黑屋|手机版|Archiver|三维网 ( 京ICP备2023026364号-1 )

快速回复 返回顶部 返回列表