QQ登录

只需一步,快速开始

登录 | 注册 | 找回密码

三维网

 找回密码
 注册

QQ登录

只需一步,快速开始

展开

通知     

查看: 4262|回复: 12
收起左侧

[已解决] 请问大家能不能看出这工程图用的是什么字体?

[复制链接]
发表于 2010-9-25 14:12:03 | 显示全部楼层 |阅读模式 来自: 中国浙江温州

马上注册,结识高手,享用更多资源,轻松玩转三维网社区。

您需要 登录 才可以下载或查看,没有帐号?注册

x
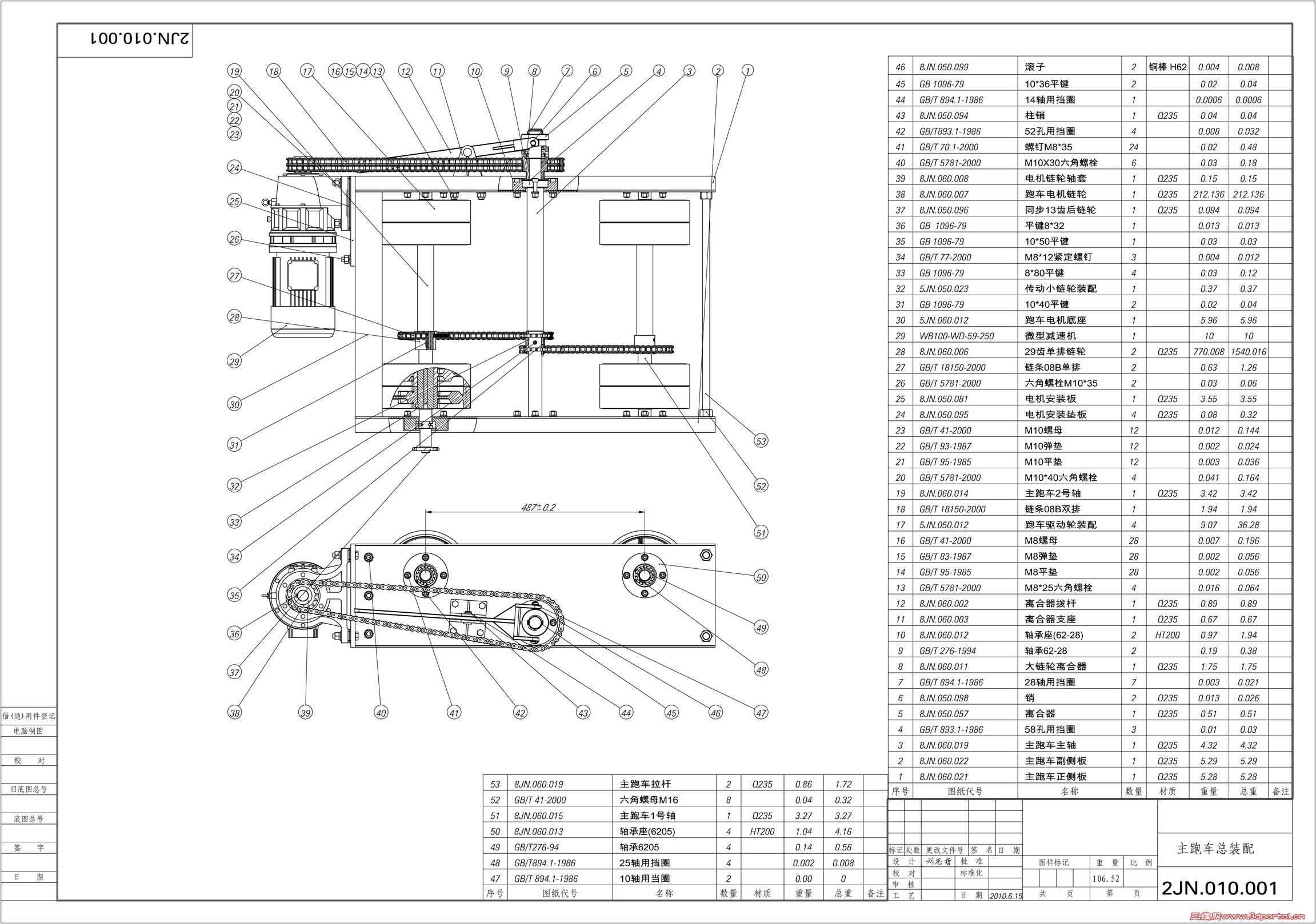
请问大家能不能看出这工程图用的是什么字体?1 C2 B: q! m9 L  g! z/ z+ P0 i
文件原贴出自http://www.3dportal.cn/discuz/viewthread.php?tid=924255&extra=page%3D1
( \2 I1 K* d- G4 x9 l( O* h" Y由于出工程图打出来的字总是不清楚
1007050940d642af6622469538.jpg
发表于 2010-9-25 20:02:54 | 显示全部楼层 来自: 中国广东深圳
好像是黑体。
发表于 2010-9-25 21:02:33 | 显示全部楼层 来自: 中国上海
看不清楚...不是黑体就是中圆体.
发表于 2010-9-25 21:06:29 | 显示全部楼层 来自: 中国广东深圳
应该是黑体~~~
发表于 2010-9-26 14:44:37 | 显示全部楼层 来自: 中国山东潍坊
打开后很清晰啊??怎么会不清晰呢
发表于 2010-9-27 00:16:23 | 显示全部楼层 来自: 中国湖南娄底
就是宋体字
发表于 2010-9-27 11:02:06 | 显示全部楼层 来自: 中国北京
应是打印设置问题
发表于 2010-9-28 12:53:49 | 显示全部楼层 来自: 中国香港
不錯的工程圖,但怎么材料但內的鏈輪一個有二百多公斤,另一個有七百多公斤,單單兩個鏈輪就接近一公噸了。
发表于 2010-9-28 14:04:11 | 显示全部楼层 来自: 中国北京
是不是xp下画的图到win7下打开了?宋体被替换成别的字体了
发表于 2010-9-28 14:59:43 | 显示全部楼层 来自: 中国山东青岛
看着像是Arial字体
发表于 2010-9-28 19:30:55 | 显示全部楼层 来自: 中国江苏南通
请教大家这零件序号怎么可以做成楼主这样的?
发表于 2018-1-21 10:20:28 | 显示全部楼层 来自: 中国山东莱芜
0 S8 @7 @4 u9 ]/ h( E* y1 q; c
应该是Arial字体,但有些字会变为繁体
发表于 2018-3-15 11:29:45 | 显示全部楼层 来自: 中国浙江绍兴
UNIVERS CONDENSED         
  ^% \! ~( S. i; O7 G+ l; S- N
1 y. s1 A. D( J/ s  h
发表回复
您需要登录后才可以回帖 登录 | 注册

本版积分规则


Licensed Copyright © 2016-2020 http://www.3dportal.cn/ All Rights Reserved 京 ICP备13008828号

小黑屋|手机版|Archiver|三维网 ( 京ICP备2023026364号-1 )

快速回复 返回顶部 返回列表