QQ登录

只需一步,快速开始

登录 | 注册 | 找回密码

三维网

 找回密码
 注册

QQ登录

只需一步,快速开始

展开

通知     

全站
8天前
查看: 2449|回复: 8
收起左侧

[讨论] 弗兰德齿轮箱修复装配问题

[复制链接]
发表于 2010-9-24 23:59:54 | 显示全部楼层 |阅读模式 来自: 中国河南郑州

马上注册,结识高手,享用更多资源,轻松玩转三维网社区。

您需要 登录 才可以下载或查看,没有帐号?注册

x
本帖最后由 thepioneer 于 2010-9-25 00:45 编辑 5 ?, K- O/ Y% ~
! C: q; k# n- K! {$ F
目前碰到一弗兰德进口齿轮箱需要修复,两路载荷分流,又回到一个输出轴上,因此装配上要保证两路分流的齿轮载荷均衡,怎样保证?希望大家多提宝贵意见0 o8 @/ g+ K3 `4 ~# ]
6 c: @# l% }# ?. C9 i
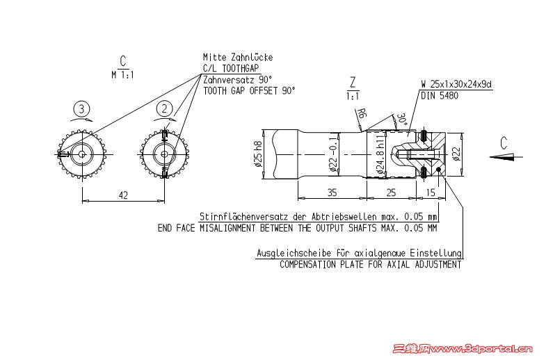
具体情况(见图):403和503,404和504为同参数齿轮(和轴过赢量比较大,靠过赢来传递扭距),一起来驱动输出轴300,最终和轴200同转速输出,轴承孔不在分合面上,轴400,401,500,501上有油压涨开孔,0 n/ Y% k& e! Y2 A3 k, s6 q. o7 X
需要保证问题:/ c6 g; J2 m) x( k- t9 k+ k2 g
1。齿轮加热,轴冷却后放箱体内套装,已解决
- v9 }4 V: N9 a1 f8 F- i( A8 I2。保证两输出轴相位要求,已解决
4 k$ [4 m) M5 h% U- R' ?6 _3。齿轮材料工艺都能保证,德标花键,已解决* a+ f# f$ n/ m1 n, W

7 q: S4 x4 [) O3 |6 C* O我的问题:怎样保证403和503,404和504齿轮的载荷均衡?????请大家多提宝贵意见,谢谢,这也是我见过的进口齿轮箱修复里比较复杂的一种。7 |6 ^/ ^2 x, Y
还有那些需要注意的吗?请多多提宝贵意见
FLEND减速器.JPG
输出轴相位角.JPG
发表于 2010-9-25 11:18:57 | 显示全部楼层 来自: 中国重庆
LZ你好,你的图纸不够清晰,一放大就模糊了,能不能上传一个清晰的,这样好分析传动关系
6 {' D* \/ w# ]我们也可以QQ上交流,34494051
 楼主| 发表于 2010-9-25 22:03:38 | 显示全部楼层 来自: 中国河南郑州
已加QQ, 自己再顶下
发表于 2010-9-26 09:04:13 | 显示全部楼层 来自: 中国重庆
轴400,401,500,501上有油压涨开孔. X) r* M, {& r% s, M
这个是在安装时调整同步用的,使得齿轮能相对轴转动,从而达到均载: M" {' X+ H/ I* {- @- N
当然,在运转过程中,圆柱滚子轴承起着至关重要的作用
$ e; U( \+ }; C" f能够轴向移动也起到均载的作用

评分

参与人数 1三维币 +4 收起 理由
hero2006 + 4 技术讨论

查看全部评分

发表于 2010-9-28 13:18:14 | 显示全部楼层 来自: 中国北京
这是弗兰德的挤塑机。调整比教麻烦。楼上说得对,有一级就专门是用来调整用的,通过油压控制调整,同时还有一专门的调整工具。调整好之后应该就没有太大问题。
 楼主| 发表于 2010-9-28 18:56:17 | 显示全部楼层 来自: 中国河南郑州
楼上对这个很了解啊,您说“同时还有一专门的调整工具”,什魔样的调整工具?能具体点吗?谢谢,我现在只能先保证轴承有一定间隙,然后靠感觉去调整两边均载,希望能搞好。
发表于 2010-9-29 11:19:07 | 显示全部楼层 来自: 中国北京
一联体的与两输出轴齿相吻合的东东,当然要求其加工精度要能达到要求,要不起不了作用。
 楼主| 发表于 2010-9-29 23:11:57 | 显示全部楼层 来自: 中国河南郑州
一联体的与两输出轴齿相吻合的东东,当然要求其加工精度要能达到要求,要不起不了作用。
& j6 q- b% E7 U7 g# Myan26345524 发表于 2010-9-29 11:19 http://www.3dportal.cn/discuz/images/common/back.gif

4 f, L3 x! R4 s; }2 S9 _! L
# h$ X5 m4 V" g  h谢谢了,你说的是输出花键的膜板吧?就是保证相位要求的?这个好办,线切割加工个就OK了,我说的是中间四个大齿轮的调整
发表于 2010-10-4 21:17:00 | 显示全部楼层 来自: 中国江苏南京
这是弗兰德的双螺杆挤出机专用齿轮箱,比蒂森公司的差远了,在国外几乎没什么市场。弗兰德的双分流比较简单,各传递总功率的25%,最后合到一根出轴上为50%,蒂森公司是一根传70%,一根传30%,传70%的分50%到一根出轴上,剩下的20%和另一根30%的合到另一根出轴上总和为50%,结构相当精巧,比弗兰德的设计要强多了,只不过人家蒂森的有专利保护,弗兰德也只能干瞪眼看着市场份额被蒂森吃光。) M/ \2 ^+ f) b- D
跑题了。这类齿轮箱装配时确实有专用设备,我在德国看到过。两个推力轴承到位,各级轴承的间隙调整完毕,在静止状态下先给出轴套上模板,保证花键和键槽的位置和工作状态一致,模拟加载,各轴上加载量是按设计控制好的,给其中的一个齿轮打油压(记得油压在2000个大气压,时间太久,记不准确)让齿轮涨开后,对该齿轮按工作方向施加固定载荷并保持一段时间,然后慢慢卸压,卸压完成后仍要保持一定的时间,最后去除加在各轴上的模拟载荷,齿轮箱合上盖完工。交检验。蒂森和弗兰德这一步几乎是一样的,只是各自设计不同,加的载荷不同而已,原理一致
发表回复
您需要登录后才可以回帖 登录 | 注册

本版积分规则


Licensed Copyright © 2016-2020 http://www.3dportal.cn/ All Rights Reserved 京 ICP备13008828号

小黑屋|手机版|Archiver|三维网 ( 京ICP备2023026364号-1 )

快速回复 返回顶部 返回列表