QQ登录

只需一步,快速开始

登录 | 注册 | 找回密码

三维网

 找回密码
 注册

QQ登录

只需一步,快速开始

展开

通知     

全站
5天前
查看: 2176|回复: 8
收起左侧

[求助] 这个图有更简便的画法吗

[复制链接]
发表于 2010-9-17 10:29:58 | 显示全部楼层 |阅读模式 来自: 中国浙江杭州

马上注册,结识高手,享用更多资源,轻松玩转三维网社区。

您需要 登录 才可以下载或查看,没有帐号?注册

x
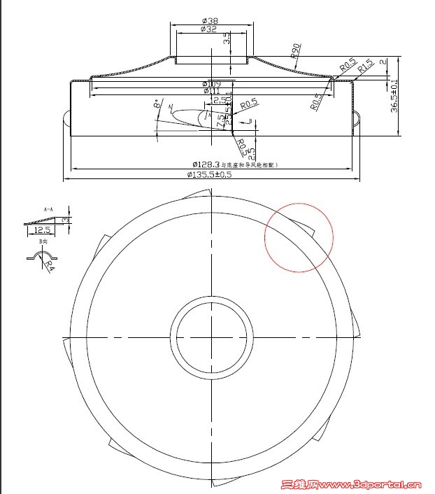
这个图是一个风罩,周围8个孔起到导风作用,* Y  ~) ~$ ?% L: J6 l
; Q  h3 r! S3 e% N$ E
但就是这8个突出的部分,请高手指点应该怎么画,最好有简便的方法# L  G9 ]. O( b+ `9 `
5 q% [+ I* i! q9 q# B
有时间的帮我画下,给我传下源文件,
: i( A( F: j% }
& P0 }- S2 K! |7 D+ s% I5 k, _谢谢
123.jpg

daofenglun Model (1).pdf

45.59 KB, 下载次数: 19

 楼主| 发表于 2010-9-17 16:11:34 | 显示全部楼层 来自: 中国浙江杭州
没人帮忙
' q% X; e+ E  m( L  R' h自己顶上来
发表于 2010-9-19 10:33:10 | 显示全部楼层 来自: 中国广东深圳
用多实体建模,实体合并后添加圆角。
 楼主| 发表于 2010-9-19 15:21:01 | 显示全部楼层 来自: 中国浙江杭州
朋友,随便画一个  示意一下 3# soar_tch
 楼主| 发表于 2010-9-21 09:23:50 | 显示全部楼层 来自: 中国浙江杭州
有人可以帮忙画个简单的  给我示意一下吗
 楼主| 发表于 2010-9-26 13:51:13 | 显示全部楼层 来自: 中国浙江杭州
期待高手来帮忙画个示意……- r7 c) A6 D" ^% Q+ j& ?
郁闷  好几天了  还没解决
发表于 2010-9-28 20:53:33 | 显示全部楼层 来自: 中国辽宁铁岭
没人帮忙呢,我来顶起,学习学习
头像被屏蔽
发表于 2011-1-14 10:13:57 | 显示全部楼层 来自: 中国湖北武汉
提示: 作者被禁止或删除 内容自动屏蔽
头像被屏蔽
发表于 2011-1-14 10:14:41 | 显示全部楼层 来自: 中国湖北武汉
提示: 作者被禁止或删除 内容自动屏蔽
发表回复
您需要登录后才可以回帖 登录 | 注册

本版积分规则


Licensed Copyright © 2016-2020 http://www.3dportal.cn/ All Rights Reserved 京 ICP备13008828号

小黑屋|手机版|Archiver|三维网 ( 京ICP备2023026364号-1 )

快速回复 返回顶部 返回列表