QQ登录

只需一步,快速开始

登录 | 注册 | 找回密码

三维网

 找回密码
 注册

QQ登录

只需一步,快速开始

展开

通知     

全站
3天前
查看: 3939|回复: 18
收起左侧

[已解决] 这张板金工程图这样出图可以吗?

[复制链接]
发表于 2010-8-29 12:48:31 | 显示全部楼层 |阅读模式 来自: 中国浙江丽水

马上注册,结识高手,享用更多资源,轻松玩转三维网社区。

您需要 登录 才可以下载或查看,没有帐号?注册

x
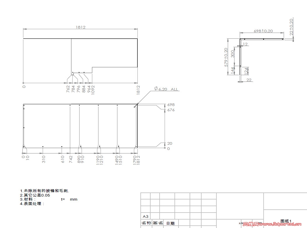
这是一块机架外壳的板金结构,这张板金工程图这样出图可以吗?本人第一次出图,搞不太清楚要求,请各位指点一下。7 u4 G3 _8 h2 \- |- H
1.尺寸标注及其它标注
7 V. G- u4 c5 u% S) N2.技术要求3 X; D* P! E. q) S) ]$ K; w  f
3.孔表
. p* m& e% A2 E* \+ Q4.视图布局
  i" V; z/ _6 X- j2 i以上几点还有什么问题?那位朋友帮忙出个样板图好吗?谢谢了!
4 O3 {: E0 ]- m 2010-8-29 12-31-44.jpg 2010-8-29 12-29-09.jpg
" u( F: ]& k- d+ U3 x5 f0 m 板金01.rar (296.83 KB, 下载次数: 71)
发表于 2010-8-29 16:07:22 | 显示全部楼层 来自: 中国广东佛山
我还没见过钣金件用孔表的,当然我的见识可能浅薄。
 楼主| 发表于 2010-8-29 18:34:46 | 显示全部楼层 来自: 中国浙江丽水
我还没见过钣金件用孔表的,当然我的见识可能浅薄。
) P3 p0 N& E& A- r% r# ^easyb 发表于 2010-8-29 16:07 http://www.3dportal.cn/discuz/images/common/back.gif

' U1 m9 d& ?2 l3 P孔主要是用来固定板金在机架外壳上的,不用孔表那尺寸标注不是很麻烦吗?

评分

参与人数 1三维币 +2 收起 理由
chenjun520601 + 2 技术讨论

查看全部评分

发表于 2010-8-29 19:10:04 | 显示全部楼层 来自: 中国台湾
本帖最后由 hottee2009 于 2010-8-29 19:13 编辑 + w( U0 \* \  W) a

$ k' h4 l9 c  b如果出给您自己可以,要给别人简单的说不可以出图!!
 楼主| 发表于 2010-8-29 21:08:14 | 显示全部楼层 来自: 中国浙江丽水
帮忙指出点问题吧,或帮忙出一张示范一下好吗?源文件在上面了。
发表于 2010-8-29 23:18:59 | 显示全部楼层 来自: 中国台湾
您确定您的尺寸要精确到小数点后3位??加工厂家找到了吗??
 楼主| 发表于 2010-8-29 23:41:55 | 显示全部楼层 来自: 中国浙江丽水
6# hottee2009
0 o  D0 s, \2 ^1 ~+ r- P精确小数是系统自动生成的,只要在技术要求中再去规定一下就可以了,有0.5就可以了。请求帮忙出个图吧,谢谢你了!
5 f" b5 P; k/ c0 P! _% d2 i6 v朋友若是行家我们也许可以合作?
发表于 2010-8-30 09:50:34 | 显示全部楼层 来自: 中国浙江金华
只要加工者能读懂就好了!
发表于 2010-8-30 13:04:41 | 显示全部楼层 来自: 中国江苏苏州
本帖最后由 tony_hao 于 2010-8-30 13:15 编辑 * c$ [0 E+ E% x/ M+ O0 Z; f
/ ?" R+ O1 b) s; }# O! {9 m
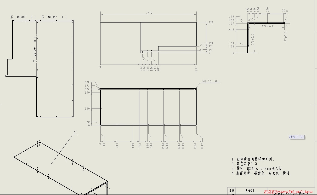
大概弄了一个,尺寸我没有标全。最好不要给展开,每个公司的展开工艺都有点不一样的,只能拿来参考,不能用来标注尺寸。' q- M5 W% [- N6 P% H- Z" D
不好意思,折弯尺寸精度要求0.50可以了,0.20要求有点高了,600的尺寸,又是用来安装的。那个20的折弯尺寸就0.20

XKQ-701-00-06-01.PDF

151.11 KB, 下载次数: 44

评分

参与人数 1三维币 +3 收起 理由
chenjun520601 + 3 应助

查看全部评分

 楼主| 发表于 2010-8-30 15:16:33 | 显示全部楼层 来自: 中国浙江丽水
本帖最后由 xf81519 于 2010-8-30 15:17 编辑 * j3 ^. Y2 a' |5 g& w+ H2 t
1 S6 [8 S) V! S! E  `, G! |
9# tony_hao
0 ^' l9 h7 K8 H1 o/ R6 W非常地谢谢!你给出了我的问题,这是我想要的,我想再问下:
0 k3 Z# l5 n" d6 F1.“600的尺寸”是指什么?我不太理解。
5 J& J% z! a6 C) L- Z6 ~2.用孔表来标注孔是否也可以?常用吗?' W2 k8 S) q4 i/ d$ R5 f
3.技术要求中,我想喷漆,先要如何处理?6 _  D$ y5 V& N8 o3 {
2010-8-30 15-12-21.jpg
发表于 2010-8-30 22:15:48 | 显示全部楼层 来自: 中国浙江宁波
做钣金可加QQ76241189  一起来探讨 呵呵
发表于 2010-8-31 08:45:32 | 显示全部楼层 来自: 中国江苏苏州
本帖最后由 tony_hao 于 2010-8-31 08:47 编辑
4 U# ]0 G1 |8 o& v) ]
" G: @% ~" s1 T* ?10# xf81519
. U* ]5 L; k$ Q2 m$ y1 .600的尺寸,是指597和698的尺寸,我意思是600左右的尺寸(这里是指折弯尺寸).6 n4 B& c4 m% T6 d6 K3 [2 L8 c
2.孔太多的话,用孔表也可以,但你这一种孔就算了吧.
5 P$ g  t0 I6 m  a/ B2.要表面处理的话,你要告知颜色,光泽度,色差,表面纹路,附着力等等.(如果你是问:板材如何前处理的话,那是供应商的工艺了,就不用你操心了)

评分

参与人数 1三维币 +3 收起 理由
华氏911 + 3 技术讨论

查看全部评分

发表于 2010-8-31 09:03:24 | 显示全部楼层 来自: 中国天津
如果已经确定加工商了,就管他们要折弯系数表,折弯半径,这样直接做出来的钣金展开图给他就行,不用标注,然后只给折弯图。你这样就太麻烦了

评分

参与人数 1三维币 +2 收起 理由
华氏911 + 2 技术讨论

查看全部评分

发表于 2010-8-31 09:26:51 | 显示全部楼层 来自: 中国广东东莞
远东地区相去甚远某某

评分

参与人数 1三维币 -3 收起 理由
华氏911 -3 灌水

查看全部评分

 楼主| 发表于 2010-8-31 11:06:11 | 显示全部楼层 来自: 中国浙江丽水
本帖最后由 xf81519 于 2010-8-31 11:14 编辑 - o  J# e( A) R; \9 B4 K2 C

% N+ J% ?6 n) u8 H2 S我做了一张,这样可以了吗?帮忙修改一下,谢谢!  W, ~5 K: d& m( L

6 m+ p+ ?: p% F1 ^) ]( K9 M6 N' |# o
工程图1.rar (113.46 KB, 下载次数: 4)
2010-8-31 11-11-13.jpg
发表于 2010-8-31 11:33:55 | 显示全部楼层 来自: 中国江苏苏州
15# xf81519
" T% C1 X% C5 C+ E" ~! U其它公差0.05吧,0.5太大了,(这里的其它尺寸其实大部分就是指冲切尺寸)

评分

参与人数 1三维币 +2 收起 理由
chenjun520601 + 2 继续应助!

查看全部评分

 楼主| 发表于 2010-8-31 11:54:57 | 显示全部楼层 来自: 中国浙江丽水
16# tony_hao
) \/ ?1 i. a( t好的,谢谢!我能联系你吗?QQ:283523334   手机:13587181519
发表于 2010-9-1 08:12:54 | 显示全部楼层 来自: 中国台湾
孔表在很多国家标准是允许的
8 z1 q) _9 v. l% c- U5 V下为JIS标准7 A5 Z9 K) L2 w/ A5 O. R

* p' g# ^4 j; `1 R. V8 i: _7 q% C9 c- [1 N! J2 ~& B8 z

8 o6 D, }" l/ c7 p q1.gif
/ P- a0 W& E3 K% }  N% c
发表于 2010-9-1 08:44:33 | 显示全部楼层 来自: 中国台湾
至于公差看楼主使用的加工设备如何
3 K; |3 v$ S$ L. P如为CNC设备加工精度可到0.01
# |. V0 y& o; |& g' o/ w如为一般手工标定尺寸那公差定为0.5为合理
4 }5 Z5 s: Q: y5 o另钻孔尺寸如为等距改用等分法标注(手工标定尺寸)$ G  G( q- W0 [. N' {3 {: }8 w
孔的尺寸∮6.2与∮6.20两者差别很大使用设备也相差很大* e. X& ]! ^: }( n
同样∮6.2的钻头与∮6.20钻头价格也有差(有些小地方∮6.20钻头可能还买不到)
发表回复
您需要登录后才可以回帖 登录 | 注册

本版积分规则


Licensed Copyright © 2016-2020 http://www.3dportal.cn/ All Rights Reserved 京 ICP备13008828号

小黑屋|手机版|Archiver|三维网 ( 京ICP备2023026364号-1 )

快速回复 返回顶部 返回列表