QQ登录

只需一步,快速开始

登录 | 注册 | 找回密码

三维网

 找回密码
 注册

QQ登录

只需一步,快速开始

展开

通知     

全站
3天前
查看: 1954|回复: 4
收起左侧

[已解决] 请教这个螺旋槽怎么画

[复制链接]
发表于 2010-8-24 16:57:21 | 显示全部楼层 |阅读模式 来自: 中国江苏苏州

马上注册,结识高手,享用更多资源,轻松玩转三维网社区。

您需要 登录 才可以下载或查看,没有帐号?注册

x
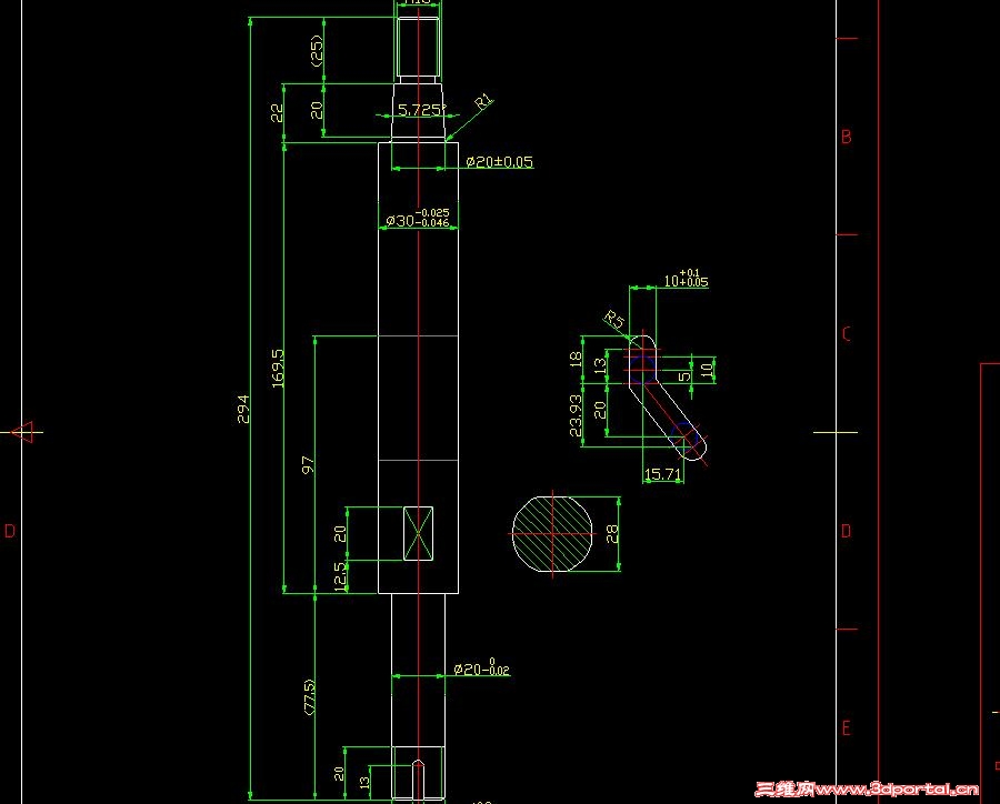
请教各位,附件中的螺旋槽怎么画,我现在是先画螺旋线,然后扫描切除,但画不出来。
; E: R3 Z- c- d. U: G7 l5 M8 f- _还希望各位大侠没帮帮忙!
shiyi.JPG
发表于 2010-8-24 18:17:38 | 显示全部楼层 来自: 中国河北廊坊
简单做了一个 螺旋槽.jpg

评分

参与人数 1三维币 +2 收起 理由
chenjun520601 + 2 应助

查看全部评分

发表于 2010-8-24 21:07:59 | 显示全部楼层 来自: 中国广东广州
能截图逐步分解下吗
 楼主| 发表于 2010-8-25 13:49:21 | 显示全部楼层 来自: 中国江苏苏州
本帖最后由 peiyan0512 于 2010-8-25 16:47 编辑
, e: V/ Q' I. }8 i0 o, h+ Z8 e
  S. x0 K1 n  d0 W4 ^这是我画的,螺旋槽前端还算工整,后端会出现变形。
/ z! J/ u1 |, H- B1 ]* `我是先画螺旋线,再用组合曲线,然后再用扫描切除!现在还没找到问题出现的原因!
- @& ^7 N- R* U* c还得再请大侠们帮帮忙啊!
未命名.JPG
发表于 2010-8-25 19:37:40 | 显示全部楼层 来自: 中国天津
用实体扫描切除。
发表回复
您需要登录后才可以回帖 登录 | 注册

本版积分规则


Licensed Copyright © 2016-2020 http://www.3dportal.cn/ All Rights Reserved 京 ICP备13008828号

小黑屋|手机版|Archiver|三维网 ( 京ICP备2023026364号-1 )

快速回复 返回顶部 返回列表