QQ登录

只需一步,快速开始

登录 | 注册 | 找回密码

三维网

 找回密码
 注册

QQ登录

只需一步,快速开始

展开

通知     

查看: 1435|回复: 8
收起左侧

[求助] 求助:这样设计有问题吗

[复制链接]
发表于 2010-8-7 22:13:46 | 显示全部楼层 |阅读模式 来自: 中国江苏盐城

马上注册,结识高手,享用更多资源,轻松玩转三维网社区。

您需要 登录 才可以下载或查看,没有帐号?注册

x
VTM300-40-001 Model (1).jpg
发表于 2010-8-7 23:12:43 | 显示全部楼层 来自: 中国四川泸州
要想讨论就把全图发上来,只有部分,怎么分析嘛/
发表于 2010-8-7 23:56:50 | 显示全部楼层 来自: 中国北京
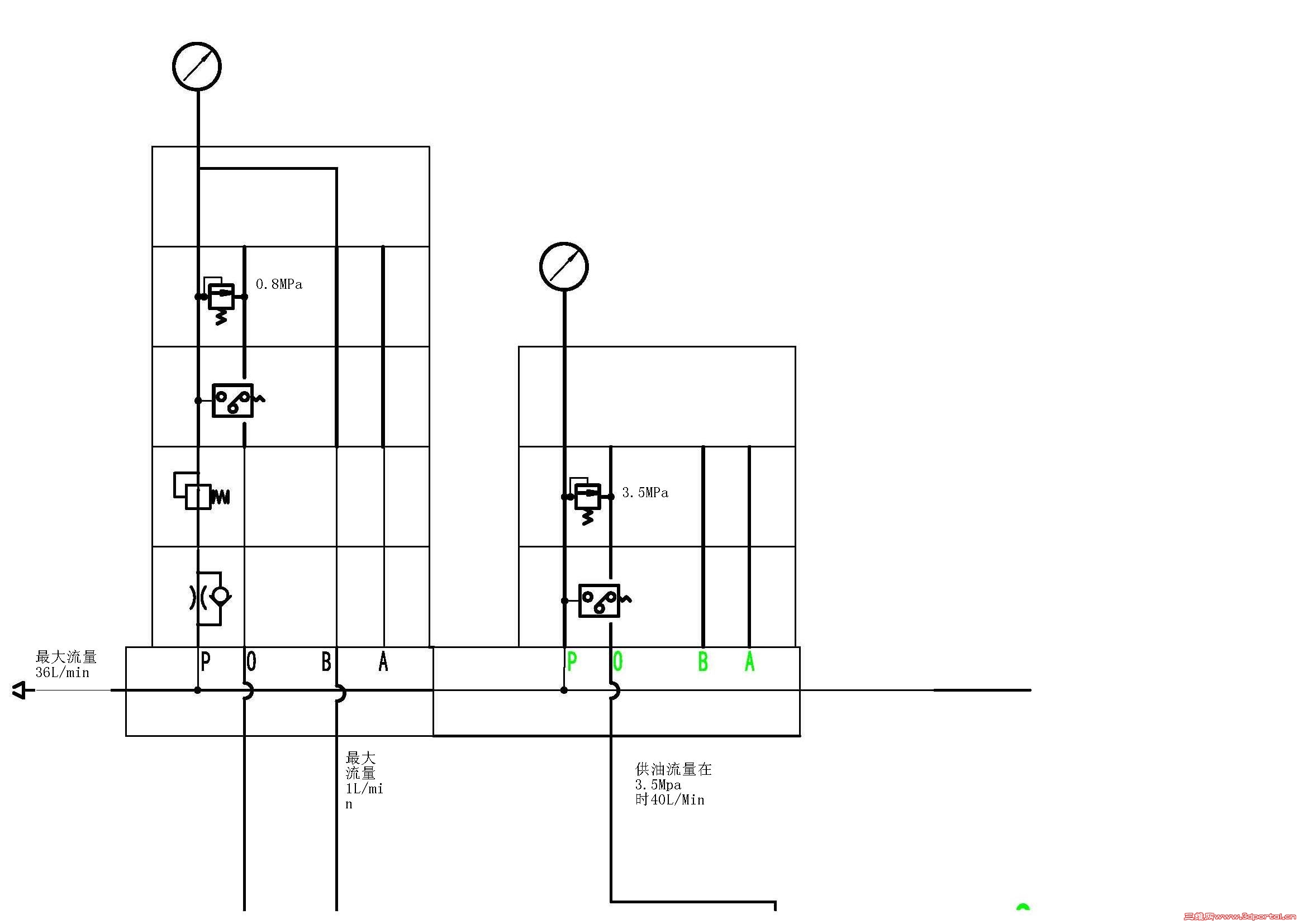
问题:单向节流阀装反了,没有节流效果,最好能把节流阀装到B口去,不换向要单向干吗?
' f9 h' _2 q" L. f% C) `$ |* j问题:看你的图应该都是叠加的阀,不用换向吗?
 楼主| 发表于 2010-8-8 02:44:17 | 显示全部楼层 来自: 中国江苏盐城
这是给两个多头泵供油的布置,一个3.5Mpa 36L/min,一个0.8Mpa 1L/min, 都是最大。不用换向,只要能保证供油即可,节流阀是反了,它的作用就是限制0.8Mpa的回路供油流量不要太大,以免影响3.5Mpa的流量。
 楼主| 发表于 2010-8-8 02:46:55 | 显示全部楼层 来自: 中国江苏盐城
0.8Mpa的那个做润滑用,接个单向节流阀防止窜油
 楼主| 发表于 2010-8-8 02:51:39 | 显示全部楼层 来自: 中国江苏盐城
把节流阀接到B口会不会有压力损失?压力表显示就不准了,另外接到前面节流效果会更好,减少对流量的影响
发表于 2010-8-9 07:23:35 | 显示全部楼层 来自: 中国河南安阳
感觉0.8MPa的那个溢流阀多余。
发表于 2010-8-9 07:25:38 | 显示全部楼层 来自: 中国河南安阳
把节流阀接到B口会不会有压力损失?压力表显示就不准了,另外接到前面节流效果会更好,减少对流量的影响( r2 Q! k$ _6 N2 d0 `, A
shmily_liuwei 发表于 2010-8-8 02:51 http://www.3dportal.cn/discuz/images/common/back.gif
0 G6 Q, B0 @5 C3 e1 B* c* }
节流阀还是在P口吧,把单向节流阀换成节流阀(或串联式的单项节流阀)就可以了。
 楼主| 发表于 2010-8-10 15:21:06 | 显示全部楼层 来自: 中国江苏盐城
第二个溢流阀多余,已经去掉了。节流阀也去掉了。担心是多余的。
发表回复
您需要登录后才可以回帖 登录 | 注册

本版积分规则


Licensed Copyright © 2016-2020 http://www.3dportal.cn/ All Rights Reserved 京 ICP备13008828号

小黑屋|手机版|Archiver|三维网 ( 京ICP备2023026364号-1 )

快速回复 返回顶部 返回列表