QQ登录

只需一步,快速开始

登录 | 注册 | 找回密码

三维网

 找回密码
 注册

QQ登录

只需一步,快速开始

展开

通知     

全站
3天前
查看: 1326|回复: 4
收起左侧

[已解决] 工程图

[复制链接]
发表于 2010-8-3 09:23:39 | 显示全部楼层 |阅读模式 来自: 中国浙江嘉兴

马上注册,结识高手,享用更多资源,轻松玩转三维网社区。

您需要 登录 才可以下载或查看,没有帐号?注册

x
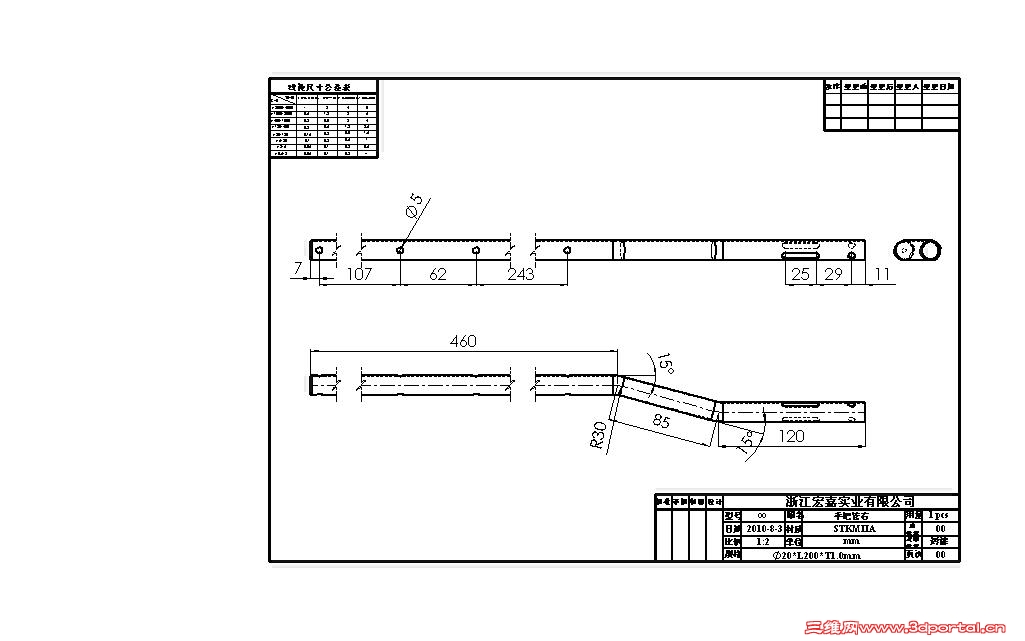
请那位高手指点一下次3D图的工程图部分的椭圆部分如何表示,尺寸如何标注(含角度)
手把管右.jpg
手把管.jpg
发表于 2010-8-4 06:52:14 | 显示全部楼层 来自: 中国天津
Autocad里如何标注,sw也同样,标长轴短轴啊,你该不会不知道椭圆如何画的吧
发表于 2010-8-4 09:35:51 | 显示全部楼层 来自: 中国陕西西安
处理图纸时还是按照工程制图来做的,没有其它标准。
 楼主| 发表于 2010-8-12 16:44:57 | 显示全部楼层 来自: 中国浙江嘉兴
谢谢你们的回答,但是在SW里的工程图无法标注尺寸啊
发表于 2010-8-13 14:20:53 | 显示全部楼层 来自: 中国北京
没看出你有椭圆,就是圆管有两个转折。
9 k$ g8 S; E9 e4 [2 @. N如果仅是SW不认工程图中图形而你非要标上,你可以在工程图上做辅助点或辅助线,这样就可以标了。如是二次曲线之类的,好象没有CAD可以标注。只有常用的形状可以标注。
发表回复
您需要登录后才可以回帖 登录 | 注册

本版积分规则


Licensed Copyright © 2016-2020 http://www.3dportal.cn/ All Rights Reserved 京 ICP备13008828号

小黑屋|手机版|Archiver|三维网 ( 京ICP备2023026364号-1 )

快速回复 返回顶部 返回列表