QQ登录

只需一步,快速开始

登录 | 注册 | 找回密码

三维网

 找回密码
 注册

QQ登录

只需一步,快速开始

展开

通知     

全站
1天前
查看: 5453|回复: 26
收起左侧

[已解决] 这个拐角怎么做出来

[复制链接]
发表于 2010-7-20 13:59:38 | 显示全部楼层 |阅读模式 来自: 中国浙江杭州

马上注册,结识高手,享用更多资源,轻松玩转三维网社区。

您需要 登录 才可以下载或查看,没有帐号?注册

x
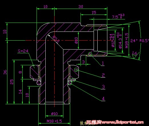
各位大大 帮我看下这个图怎么用SolidWorks做出来 我现在遇到的主要难点就是拐角的地方怎么做出来 只有一边是圆弧过渡,所以扫描是做不出来的
{{KYY0E_XJM]WGDIO}K%9V8.jpg
发表于 2010-7-20 14:05:11 | 显示全部楼层 来自: 中国天津
可以用“扫描+多半径倒角”试试。
 楼主| 发表于 2010-7-20 14:11:57 | 显示全部楼层 来自: 中国浙江杭州
能不能具体点 谢谢
发表于 2010-7-20 14:17:07 | 显示全部楼层 来自: 中国天津
扫描不用解释;变半径倒角可以根据情况在一条边上选择不同的倒角半径。
发表于 2010-7-20 14:29:35 | 显示全部楼层 来自: 中国浙江杭州
这样的拐角,很不符合机械设计。
  A% C0 d, n3 H- j( u2 u) B: Z& L9 ^) M# L
如果纯粹挑战SW学习画法,可以,0 D" X: i/ G  l9 D7 q5 ~% E

1 Q6 O: Q% |3 V8 u; }  G9 _实际加工做成这样,那这个设计师,根本就是一个蹩脚货
发表于 2010-7-20 14:35:32 | 显示全部楼层 来自: 中国浙江杭州
设计时,我们还要很注意一点,7 R( M! o# ~* c! ?  Q

- Y4 r- c( w5 O. `" K# f+ U加工工艺的可行性!
 楼主| 发表于 2010-7-20 15:08:48 | 显示全部楼层 来自: 中国浙江杭州
设计成这样可能有特殊的用途吧 我也不知道这个用在哪里的,只知道它叫直角弯头
发表于 2010-7-20 16:01:53 | 显示全部楼层 来自: 中国山东
可以先做外形,最后通孔
发表于 2010-7-20 17:14:41 | 显示全部楼层 来自: 中国浙江杭州
我很真诚的向楼主道歉,是我的武断了!!; p/ L( ^; l2 n3 A* r: ]
没考虑清楚就乱下定论!; R' y) t) h! k9 B! F
" `$ F& o( r) X" A3 h
楼主的90度弯角阀门,是完全符合加工工艺的!!
* l3 x) K0 A. j- M是我太武断,我再次向楼主道歉。
6 I4 y+ D- @1 M& ~& c 未命名A.jpg
发表于 2010-7-20 17:17:20 | 显示全部楼层 来自: 中国浙江杭州
 点击显示原图大小
) S+ A3 }6 r+ N3 _! v6 }4 [% n6 _- O
( a& J, {1 C' \$ i) ` 调整大小 未命名aA.jpg
发表于 2010-7-20 17:50:00 | 显示全部楼层 来自: 中国台湾
樓主 您只要在那邊做 旋轉切除就順了
发表于 2010-7-20 19:50:00 | 显示全部楼层 来自: 中国北京
谁说扫描不行?尺寸对了的话就能达到效果
扫描.jpg
发表于 2010-7-20 20:21:54 | 显示全部楼层 来自: 中国北京
扫的时候,轨迹线上拐弯的地方加圆角,圆角半径等于内孔半径即可.....
 楼主| 发表于 2010-7-21 13:26:42 | 显示全部楼层 来自: 中国浙江杭州
我也做出来了 不过我做的比较复杂 分了好几部 基本上是用组合的方式做出来的。; L  h% T+ v' ~! f2 |
在这里非常感谢以上同仁的热忱指导,帮助很大啊!谢谢
发表于 2010-7-21 14:15:24 | 显示全部楼层 来自: 中国天津
扫的时候,轨迹线上拐弯的地方加圆角,圆角半径等于内孔半径即可.....
1 M! u* a% e, x, z$ X2 P5 ^dongxin 发表于 2010-7-20 20:21 http://www.3dportal.cn/discuz/images/common/back.gif

5 l8 \: p3 a% x) X8 F与楼主图纸的要求不符。。。。。。
发表于 2010-7-21 15:49:14 | 显示全部楼层 来自: 中国山东烟台
可以说这是solidworks需要改进的地方,像UG、INVENTOR等软件完全能用扫描画出来。而solidworks是不允许扫描的内半径为0即尖角,但只要内半径不为零(比如R=0.0001甚至更小)就能扫描出来。
发表于 2010-7-21 16:04:23 | 显示全部楼层 来自: 中国山东烟台
用扫描也能做出来,但要从中心分开,分别扫描。

aaaa.zip

60.8 KB, 下载次数: 15

发表于 2010-7-22 06:09:46 | 显示全部楼层 来自: 中国山东淄博
这样的拐角,很不符合机械设计。# _( A* t7 p" j% V

. V# Y7 m% Q1 m3 U5 e3 i如果纯粹挑战SW学习画法,可以,
2 A/ `. A3 N( k8 F, h) ^% T) X1 `5 j" H3 a3 E8 w3 G7 \
实际加工做成这样,那这个设计师,根本就是一个蹩脚货
, V% A% Y- t- T- x! ^" ]% i3 L7 Z软体动物 发表于 2010-7-20 14:29 http://3dportal.cn/discuz/images/common/back.gif

: X1 }0 [& C# k9 S0 f" T" M' d- y" S" d6 r7 O! r0 ~5 _9 ^, F
哈哈。。。支持楼上这种说法。。。
发表于 2010-7-22 09:45:44 | 显示全部楼层 来自: 中国江苏常州
我很真诚的向楼主道歉,是我的武断了!!
. Z% n0 j* x+ C/ d. L, b6 C没考虑清楚就乱下定论!8 P7 ~( h0 D  M( i+ I

. r* q; o( l/ g; t楼主的90度弯角阀门,是完全符合加工工艺的!!) C: W- l! x' Q6 c+ Q
是我太武断,我再次向楼主道歉。
( O$ e/ ?! q3 t4 ?3 P2 v9 k1 I17012935 _" ]* j+ p4 G  x5 N* r
软体动物 发表于 2010-7-20 17:14 http://www.3dportal.cn/discuz/images/common/back.gif
6 j+ c7 ?7 F# A% H* J
用铣刀加工管路合适吗?
发表于 2010-7-22 11:35:51 | 显示全部楼层 来自: 中国浙江杭州
用铣刀加工管路合适吗?& P/ h( z6 j$ ~6 y3 P  v
loveelva0 发表于 2010-7-22 09:45 http://www.3dportal.cn/discuz/images/common/back.gif
7 D; v+ F$ Y* X' g5 e) j# m! z
$ X1 I) s; [$ J# [) M
6 C! G: z% S, o! T/ S; x: x" i
$ H: i* A9 P9 b1 X' G# u' `
没问题呀,钻好孔,铣刀沉一下孔就行了,两边沉到底相交就行了。
' ^* f! L9 h' R; V2 R: y, Z- Z4 @$ U: h" o
机械加工中,这个孔就是这样加工的呀!!
发表于 2010-7-22 16:53:59 | 显示全部楼层 来自: 中国江苏南京
高手们过招就是热闹啊呵呵
发表于 2010-7-22 17:00:12 | 显示全部楼层 来自: 中国北京
那个应该是铸造圆角,一般都是压铸的铝合金件,再加工。
发表于 2010-7-27 09:54:50 | 显示全部楼层 来自: 中国浙江绍兴
22# fgshrl " g! T: f7 T1 l" s2 x7 g' U
19、20楼朋友,我加工这种弯头多年了,实际这种弯头的内壁圆弧要求不高,我们是用钻头头上磨成圆弧直接钻孔成形的。
发表于 2010-7-27 11:09:45 | 显示全部楼层 来自: 中国浙江杭州
同意楼上的!!
发表于 2010-7-27 11:37:40 | 显示全部楼层 来自: 中国江苏苏州
90度管接头,里面ø10的孔,应该不是靠机加工完成的,
5 ?6 {9 J8 {; h6 t6 N0 \旋转切除应该可以搞定吧
发表回复
您需要登录后才可以回帖 登录 | 注册

本版积分规则


Licensed Copyright © 2016-2020 http://www.3dportal.cn/ All Rights Reserved 京 ICP备13008828号

小黑屋|手机版|Archiver|三维网 ( 京ICP备2023026364号-1 )

快速回复 返回顶部 返回列表