QQ登录

只需一步,快速开始

登录 | 注册 | 找回密码

三维网

 找回密码
 注册

QQ登录

只需一步,快速开始

展开

通知     

查看: 1828|回复: 8
收起左侧

[已答复] 请问下,此标记位置度怎么测量

[复制链接]
发表于 2010-6-11 10:03:42 | 显示全部楼层 |阅读模式 来自: LAN

马上注册,结识高手,享用更多资源,轻松玩转三维网社区。

您需要 登录 才可以下载或查看,没有帐号?注册

x
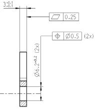
请教高手,下面的图纸标记的位置度如何测量,怎么确定基准面?产品为中间为一个圆弧.旁边2个孔,相对中心圆弧对称.
0 k: S/ ?/ X  g1 Z( R5 t. o. e" `' f, J9 m! [
12.JPG
发表于 2010-6-11 10:12:21 | 显示全部楼层 来自: 中国上海
你可以用CMM测量样件,批量生产时用检具量。
 楼主| 发表于 2010-6-11 10:13:45 | 显示全部楼层 来自: LAN
关键是基准面怎么确定,我现在也是您说的那样做的.只是想再请教下有没有更好的理解.
发表于 2010-6-11 16:23:57 | 显示全部楼层 来自: 中国江苏苏州
其实就是测中心线的距离而已!基准面与中心轴线垂直的就行
发表于 2010-6-11 18:50:22 | 显示全部楼层 来自: 中国山东临沂
用综合检具或者三坐标都可以吧
发表于 2010-6-11 20:02:57 | 显示全部楼层 来自: 中国安徽淮南
平面度属于形状公差,没有基准;而位置度属于位置公差,是要有相对的参考,也就是要有基准的。# V5 `' f  P, H, z
楼主的基准呢?我怎么没有看到?没有基准,比如垂直度等,你是没有办法测量的。
) f+ K" s* N) S! I和设计者沟通一下吧。

评分

参与人数 1三维币 +2 收起 理由
天际孤帆 + 2 鼓励交流

查看全部评分

发表于 2010-6-11 20:10:40 | 显示全部楼层 来自: 中国陕西榆林
位置公差是要有基准参考面的,如果还有其它图请展示出来。应该说不止这一个图,位置公差没有参考基面,无法测量!
发表于 2010-6-12 10:14:17 | 显示全部楼层 来自: 中国浙江宁波
两孔相对于大圆弧位置度,先找出大圆弧中心位置,再测两孔相对于它的位置变化即可% P; W# p, c# x7 b. A; s+ N/ L! A
可用三坐标
$ C& h3 v, |2 Y也可自制检具
发表于 2010-6-12 15:12:04 | 显示全部楼层 来自: 中国江苏扬州
根居GB/T1182-2008规定,楼主所示形式位置度可以有基准,有可以无基准。无基准示意任意方面位置偏差半径0.5/2=0.25。用检具检测简单、方面、可行。
发表回复
您需要登录后才可以回帖 登录 | 注册

本版积分规则


Licensed Copyright © 2016-2020 http://www.3dportal.cn/ All Rights Reserved 京 ICP备13008828号

小黑屋|手机版|Archiver|三维网 ( 京ICP备2023026364号-1 )

快速回复 返回顶部 返回列表