QQ登录

只需一步,快速开始

登录 | 注册 | 找回密码

三维网

 找回密码
 注册

QQ登录

只需一步,快速开始

展开

通知     

查看: 2199|回复: 5
收起左侧

[已解决] 机械制图:不可见内螺纹应该如何画?

 关闭 [复制链接]
发表于 2010-6-10 09:31:20 | 显示全部楼层 |阅读模式 来自: 中国福建厦门

马上注册,结识高手,享用更多资源,轻松玩转三维网社区。

您需要 登录 才可以下载或查看,没有帐号?注册

x
本帖最后由 emop 于 2010-6-10 12:39 编辑
+ }% k( i5 z8 m1 I9 n
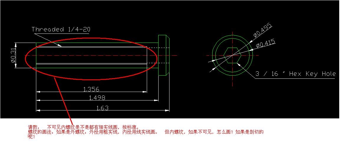
* t. l+ |6 @* K) {; L  U% X请教:  不可见内螺纹是不是都有细实线画,按标准。
: U* s% E3 e" i& I# e螺纹的画法:如果是外螺纹:外径用粗实线,内径用线实线画。  但内螺纹,如果不可见,怎么画?如果是剖切的呢?
4 C9 l: [. R  z8 s6 Q& l0 J7 v( \3 A( m6 G
问题1:不可见内螺纹怎么画,才是标准的?
; ?2 \2 V9 ~2 A2 ^问题2:剖切后的内螺纹又是怎么样画?+ R+ P; }' X6 W7 Q% n% {  x
谢谢各位指教了。
内螺纹画法.JPG

螺纹画法.rar

45.92 KB, 下载次数: 3

发表于 2010-6-10 09:44:00 | 显示全部楼层 来自: 中国上海
1. 不可见螺纹的所有图线用虚线绘制。(GB/T 4459.1-1995 《机械制图 螺纹及螺纹紧固件表示法》3.4条)- j% ^% Z" T; E+ l. E, c
2. 螺纹画法中牙顶圆用粗实线,牙底圆用细实线。对于内螺纹来说,小径是牙顶圆,大径是牙底圆。# h( c9 ^& ~+ l7 v9 k1 V; \* |
; ?0 }# q8 N9 E; b
参阅:GB/T 4459.1-1995 《机械制图 螺纹及螺纹紧固件表示法》

评分

参与人数 1三维币 +2 收起 理由
plc + 2 应助

查看全部评分

发表于 2010-6-10 10:49:20 | 显示全部楼层 来自: 中国河南焦作
楼主的图建议采用半剖,剖切后的内螺纹牙顶线为粗实线,牙底线为细实线,剖面的剖切符号要画到牙顶线(表示小径的线)
发表于 2010-6-10 12:18:13 | 显示全部楼层 来自: 中国上海
用局部剖就可以了吧,别的用虚线
发表于 2010-6-10 16:11:56 | 显示全部楼层 来自: 中国山东青岛
用虚线就是了
发表于 2010-6-10 21:42:01 | 显示全部楼层 来自: 中国江苏徐州
可以用半剖或局部剖,不能剖时可用虚线画。
发表回复
您需要登录后才可以回帖 登录 | 注册

本版积分规则


Licensed Copyright © 2016-2020 http://www.3dportal.cn/ All Rights Reserved 京 ICP备13008828号

小黑屋|手机版|Archiver|三维网 ( 京ICP备2023026364号-1 )

快速回复 返回顶部 返回列表