QQ登录

只需一步,快速开始

登录 | 注册 | 找回密码

三维网

 找回密码
 注册

QQ登录

只需一步,快速开始

展开

通知     

全站
9天前
查看: 1906|回复: 2
收起左侧

[讨论] 一种非标减速机输入轴输出轴轴承的方式是否合理?

[复制链接]
发表于 2010-5-29 22:44:33 | 显示全部楼层 |阅读模式 来自: 中国江苏泰州

马上注册,结识高手,享用更多资源,轻松玩转三维网社区。

您需要 登录 才可以下载或查看,没有帐号?注册

x
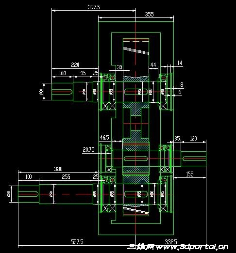
一种拉丝机上用的减速机,中间的轴作为输入,两侧的轴为输出主轴。. |4 ]. {) ~: i+ k. |" j6 r) |
在输入输出靠近轴伸的部位分别安装了两只轴承(球轴承在箱体内侧,圆锥滚子轴承在外侧),轴的另一头安装一只圆锥滚子轴承(设调节螺丝)。
2 T7 {/ o4 S$ F( i# R& Z+ C为方便检修,采用嵌盖结构。
* b6 [2 X: |1 }2 B: R9 X请网友谈谈这样设置是否合理?为什么?有没有更好的方式?7 Q7 T' D  `, K( ~
该类减速机负荷大,24小时连续运行。' s7 O  D7 P/ D" v! r2 ^7 R
该类减速机市场上应用非常多。
发表于 2010-5-29 23:05:41 | 显示全部楼层 来自: 中国广东汕头
可否上传照片或示意图纸?
* `9 G; x6 W% B1 A1 e4 `* v: }使大家能更方便探讨学习。
 楼主| 发表于 2010-5-30 02:35:54 | 显示全部楼层 来自: 中国江苏泰州
结构截图0 n' N+ n2 X# d/ t! @
未命名.JPG , I$ P" }  R* k6 I
这比语言叙述清楚些。
发表回复
您需要登录后才可以回帖 登录 | 注册

本版积分规则


Licensed Copyright © 2016-2020 http://www.3dportal.cn/ All Rights Reserved 京 ICP备13008828号

小黑屋|手机版|Archiver|三维网 ( 京ICP备2023026364号-1 )

快速回复 返回顶部 返回列表