QQ登录

只需一步,快速开始

登录 | 注册 | 找回密码

三维网

 找回密码
 注册

QQ登录

只需一步,快速开始

展开

通知     

查看: 5311|回复: 34
收起左侧

[已答复] 如图,轴上的隔套还起作用吗?

[复制链接]
发表于 2010-5-11 21:26:05 | 显示全部楼层 |阅读模式 来自: 中国辽宁沈阳

马上注册,结识高手,享用更多资源,轻松玩转三维网社区。

您需要 登录 才可以下载或查看,没有帐号?注册

x
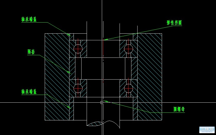
一个轴上轴承的布置,上下轴承端盖,轴上弹性挡圈,下两个圆螺母,中间的隔套还起作用吗?
QQ截图未命名.jpg
发表于 2010-5-11 21:39:45 | 显示全部楼层 来自: 中国黑龙江哈尔滨
这个轴 中间有轴肩 我觉得这样的话 那个隔套就没有必要了
发表于 2010-5-11 21:44:37 | 显示全部楼层 来自: 中国江苏南京
起压进轴承外圈的作用
发表于 2010-5-11 21:50:44 | 显示全部楼层 来自: 中国山东聊城
要是没有轴肩有用,固定轴承啊,个人认为。
发表于 2010-5-11 22:19:02 | 显示全部楼层 来自: 中国江苏无锡
本帖最后由 xiayongjun 于 2010-5-12 17:20 编辑 2 q( x- w- C8 N% ~; m5 [" b- I# m" N

* }; M- o; ^( K: q起作用的,调节轴承的预紧力!如果你将隔套拿去,上下的轴承端盖可以向里收紧的程度无法控制(可能预紧太大),加上套圈后端盖收紧到一定程度两轴承外圈都与隔套接触后就基本无法再加大预紧力了,一般根据需要消除游隙就好了!. X6 B0 Y/ @4 X4 |7 Y, F
    根据轴承游隙调整套圈的长度,在车间都是测好轴承游隙后再去磨套圈的。有可能的话楼主也可以去车间向师傅们请教!

评分

参与人数 1三维币 +4 收起 理由
天际孤帆 + 4 最为赞赏“有可能的话楼主也可以去车间向师傅们请教!”

查看全部评分

发表于 2010-5-11 22:21:58 | 显示全部楼层 来自: 中国江西南昌
个人觉得轴承是不是有点过定位了?
发表于 2010-5-11 23:46:11 | 显示全部楼层 来自: 中国湖南长沙
“起作用的,调节轴承的预紧力!如果你将隔套拿去,上下的轴承端盖可以向里收紧的程度无法控制(可能预紧太大),加上套圈后端盖收紧到一定程度两轴承外圈都与隔套接触后就基本无法再加大预紧力了,一般根据需要消除游隙就好了!根据轴承游隙调整套圈的长度,在车间都是测好轴承游隙后再去磨套圈的。有可能的话楼主也可以去车间向师傅们请教!”  说得很对,所以光从书本的简单知识去分析实际问题往往都是不够的,新手们应多从实践中、多向工人师傅请教
 楼主| 发表于 2010-5-12 06:52:47 | 显示全部楼层 来自: 中国辽宁沈阳
轴中间是有轴间的,单位里有的人加,有的人不加,好像每个人的习惯和想法都不一样
发表于 2010-5-12 08:31:48 | 显示全部楼层 来自: 中国上海
这个主要用于装配不熟练,或则加工精度等级不够时用于保护轴承用的,主要是怕压盖尺寸太长强行压轴承使轴承遭到破坏,通常情况下不做类似的处理!
发表于 2010-5-12 09:31:01 | 显示全部楼层 来自: 中国辽宁沈阳
本帖最后由 点识 于 2010-5-12 10:24 编辑
8 P" e8 C5 j( A; Q4 X6 U
! U1 u, i% K+ S图示轴承组合看上去似乎有些不尽合理,但因不明相关结构的具体受力和工况条件,不便加以评价。
$ a! M' n; j  ~' l1 y单从图示看,若其中的轴在轴向已经定位的话,图示的中间隔套就有些不合适了。5 G5 M* e/ z3 v) X+ @: \8 e
因为,工艺上很难保证外环之间隔套的轴向位置与内环之间轴肩的轴向位置的合理性。其结果必然是,或者是外环之间的隔套不吃力,或者是内环之间的轴肩不吃力。所以,从结构工艺的角度来考虑,不设中间隔套是合理的。

评分

参与人数 1三维币 +2 收起 理由
天际孤帆 + 2 鼓励交流

查看全部评分

发表于 2010-5-12 09:41:45 | 显示全部楼层 来自: 中国山西太原
上下两轴承外圈间的隔套是应当要的,如果没有隔套,上下轴承盖压紧后,这个压力就通过滚珠压到内圈的滚道上,使轴承受此力是额外负担,因此隔套一定要。二轴承之间有轴肩,轴承内圈外面的弹性挡圈和圆螺母可以不要,要也是多余的。

评分

参与人数 1三维币 +2 收起 理由
天际孤帆 + 2 鼓励交流

查看全部评分

发表于 2010-5-12 14:14:58 | 显示全部楼层 来自: 中国江苏常州
你的这个结构真是奇怪的
& Q3 y& j% \1 f& \第一:那个轴肩和隔套的长度可以是一致的,但是公差呢?公差不一导致某个面失去了作用了。
  H& t$ j: ]  o$ ?( X  E第二:你的那个圆螺母是如何拧上去的啊?圆螺母的厚度刚好是与轴承的外圈一样的?( P8 N- F' J+ A* r4 ^
第三:你的轴承如何装配?两边套?如何抵消封闭链的公差?
. ~* K2 ^- ?3 U-------------9 s7 N7 l5 @3 t7 N5 l$ |
结论:( M& _" q5 B0 T: i
这个是个想象的结构,没有工艺,没有装配
9 d7 d5 h% E! t! K第二:去掉中间的轴上的轴肩
# n+ B  N  l6 b& E第三:去掉隔套,加为整体的结构! x8 L: x1 g8 k) F) E: D
第四:去掉圆螺母和卡簧。

评分

参与人数 1三维币 +2 收起 理由
天际孤帆 + 2 鼓励交流

查看全部评分

发表于 2010-5-12 14:22:20 | 显示全部楼层 来自: 中国江苏常州
可能是个示意图,不过确实不合理。
发表于 2010-5-12 14:29:24 | 显示全部楼层 来自: 中国上海
同意11楼、12楼的意见。要考虑隔套的长度大于轴肩的长度,要不然隔套不起作用;弹性挡圈绝对可以不用;如果能够两面安装,且还想控制轴向蹿动,可以考虑安装圆螺母,否则圆螺母也可以去掉,通过轴肩长度和轴套长度控制轴的轴向蹿动。

评分

参与人数 1三维币 +2 收起 理由
天际孤帆 + 2 鼓励交流

查看全部评分

发表于 2010-5-12 14:59:16 | 显示全部楼层 来自: 中国江苏常州
如图所示可以不用。
发表于 2010-5-12 15:34:33 | 显示全部楼层 来自: 中国浙江杭州
这个主要用于装配不熟练,或则加工精度等级不够时用于保护轴承用的,主要是怕压盖尺寸太长强行压轴承使轴承遭到破坏,通常情况下不做类似的处理!
0 k$ g. ]  h) L8 V5 ^stone10 发表于 2010-5-12 08:31 http://www.3dportal.cn/discuz/images/common/back.gif
这种说法不正确,这种结构是轴承使用是最准确最好的方法,这种结构能够保证高的回转精度和长寿命,一般来说在使用精度和寿命等要求不高的地方可以简化设计省略隔套
发表于 2010-5-12 15:41:30 | 显示全部楼层 来自: 中国浙江杭州
本帖最后由 shenwq 于 2010-5-12 15:52 编辑 / C# h$ l. q" G6 x9 N' Q
你的这个结构真是奇怪的
- f3 [/ s6 U" g4 a" v* \, k6 X7 O5 }第一:那个轴肩和隔套的长度可以是一致的,但是公差呢?公差不一导致某个面失去了作用了。
# M; o0 N/ t# R/ F) C) }. Z& s第二:你的那个圆螺母是如何拧上去的啊?圆螺母的厚度刚好是与轴承的外圈一样的?3 j0 o" i$ |2 f" d8 u4 G3 A( c
第三:你的轴承 ...
0 O7 p' e" [; P6 G% ?千军一将 发表于 2010-5-12 14:14 http://www.3dportal.cn/discuz/images/common/back.gif
& w! Z5 w9 N. O) f/ w
这位仁兄,我觉得你应当去看看机床主轴类的结构,这种结构在机床设备上最为常用,顺便告诉你,中间的那个隔套要单件配加工的,在机床维修时可以不更换轴承只换那个隔套来调节轴承间隙来保证机床主轴的回转精度和轴向精度。5 ^3 w$ `( m8 y8 |! f- a3 Q* w& z) U
      顺便和各位提一下,这种结构主要应用于各种机床传动动轴结构,在设计精度要求高的地方还是需要这样来处理轴承结构的,在要求不高的地方,和大家交个底吧,呵呵,我也很少加那个隔套,原因是太麻烦,装配时要反复拆装配加工那个隔套,没有隔套只要装上就OK了,但是这样的结构寿命和精度都会降低,如果是高精度、高转速的地方,估计只要一年左右的时间就需要更换轴承了,在有高精度、长寿命、高转速等要求的地方,建议各位最好加个隔套。

评分

参与人数 1三维币 +2 收起 理由
天际孤帆 + 2 鼓励交流

查看全部评分

发表于 2010-5-12 17:16:46 | 显示全部楼层 来自: 中国江苏南京
总结以上各位大侠说的
  Y9 d* O" P2 b, W也就是高精度的时候要加套,而且套的精度要很高了
发表于 2010-5-12 17:34:59 | 显示全部楼层 来自: 中国江苏无锡
本帖最后由 xiayongjun 于 2010-5-12 18:23 编辑 0 Y1 }) u7 d: a$ v/ ?  Z

2 p8 j3 f, `1 S" k  W18# wssmjf 呵呵,是这么个理!我在车间实习的时候经常帮师父去磨这类套圈,类似的结构在机床上比较常见!一些不重要的地方(低速、受力小),都是师父靠感觉大概估计一下套圈要磨掉多少(磨多了就和没套圈一样),不知道楼主的图是什么状况。8 B9 D2 o6 M4 ]! m# p
     但是装配机床主轴时都是测量好间隙以后一个一个记下数值再去磨的(可以磨到恰到好处),套圈两端面的平行度要求也较高!测量装置如图:
测量.jpg

评分

参与人数 1三维币 +2 收起 理由
天际孤帆 + 2 鼓励交流

查看全部评分

发表于 2010-5-12 17:48:19 | 显示全部楼层 来自: 中国山东泰安
各套不起作用
发表于 2010-5-12 19:17:42 | 显示全部楼层 来自: 中国山东临沂
轴受力的情况是什么样的呢?有没有径向方向的力?
发表于 2010-5-12 19:32:16 | 显示全部楼层 来自: 中国湖北宜昌
起作用的,调节轴承的预紧力
发表于 2010-5-12 19:49:31 | 显示全部楼层 来自: 中国安徽合肥
看一个结构和不合理,要看看他的设计意图是否规范。
发表于 2010-5-12 20:25:22 | 显示全部楼层 来自: 中国黑龙江哈尔滨
本帖最后由 wakang 于 2010-5-16 22:13 编辑
! o6 }4 R5 q0 r2 m& B: |9 W& r+ s- Z! N% ?; B
5# xiayongjun 恩 你说的很有道理啊 我还是平时接触实际的少 谢谢啊
& a& ^. q' {% L7 e
这个帖子 从上至下 我认真的看了大家的见解 5 {7 `) Z+ q; R$ Z
说需要隔套的 和 说不需要隔套的 都有不少人 而且就我自己琢磨而言 我觉得要和不要隔套 说的人都说得有道理(见笑了 我个人的实际经验和学识有限 所以看大家的答复 觉得都有道理 考虑的设计要求和使用环境不一样而已)
$ i1 F; v8 I) [. x, l4 K. j我想向我这样的菜鸟也有很多在思考这个问题 诚恳的希望论坛的技术团队和有经验的老师傅能够把这个问题总结一下给我们这些菜鸟学习学习

  I) n" a$ U- y! Zecho7411 发表于 2010-5-12 20:40 http://www.3dportal.cn/discuz/images/common/back.gif
发表于 2010-5-13 18:08:51 | 显示全部楼层 来自: 中国四川成都
起作用,调整间隙用
发表回复
您需要登录后才可以回帖 登录 | 注册

本版积分规则


Licensed Copyright © 2016-2020 http://www.3dportal.cn/ All Rights Reserved 京 ICP备13008828号

小黑屋|手机版|Archiver|三维网 ( 京ICP备2023026364号-1 )

快速回复 返回顶部 返回列表