QQ登录

只需一步,快速开始

登录 | 注册 | 找回密码

三维网

 找回密码
 注册

QQ登录

只需一步,快速开始

展开

通知     

查看: 1791|回复: 3
收起左侧

[求助] 如何画螺旋槽?

[复制链接]
发表于 2010-5-10 14:33:36 | 显示全部楼层 |阅读模式 来自: 中国江苏苏州

马上注册,结识高手,享用更多资源,轻松玩转三维网社区。

您需要 登录 才可以下载或查看,没有帐号?注册

x
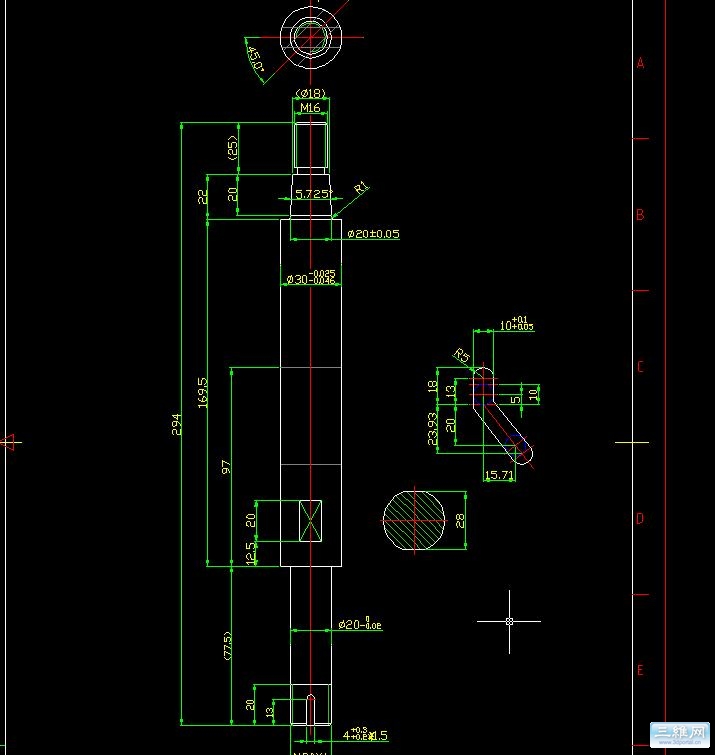
请问各位大侠,圆柱面上的螺旋槽是怎么画的?
$ v! X. ^8 A0 g2 O3 X5 n( Q先谢谢了!
未命名.JPG
发表于 2010-5-10 14:36:52 | 显示全部楼层 来自: 中国天津
实体扫描切除(08以后的版本具有的功能)。
发表于 2010-5-10 15:02:10 | 显示全部楼层 来自: 中国山东临沂
楼主先生成螺旋线,然后用扫描切除就行了
发表于 2010-5-10 15:14:10 | 显示全部楼层 来自: 中国山东临沂
趁停电之前粗略画了一下
截图00.png

零件1.rar

456.47 KB, 下载次数: 4

发表回复
您需要登录后才可以回帖 登录 | 注册

本版积分规则


Licensed Copyright © 2016-2020 http://www.3dportal.cn/ All Rights Reserved 京 ICP备13008828号

小黑屋|手机版|Archiver|三维网 ( 京ICP备2023026364号-1 )

快速回复 返回顶部 返回列表