QQ登录

只需一步,快速开始

登录 | 注册 | 找回密码

三维网

 找回密码
 注册

QQ登录

只需一步,快速开始

展开

通知     

查看: 5135|回复: 42
收起左侧

[已解决] 帮忙看看图纸!急!

 关闭 [复制链接]
发表于 2010-5-9 16:55:00 | 显示全部楼层 |阅读模式 来自: 中国辽宁大连

马上注册,结识高手,享用更多资源,轻松玩转三维网社区。

您需要 登录 才可以下载或查看,没有帐号?注册

x
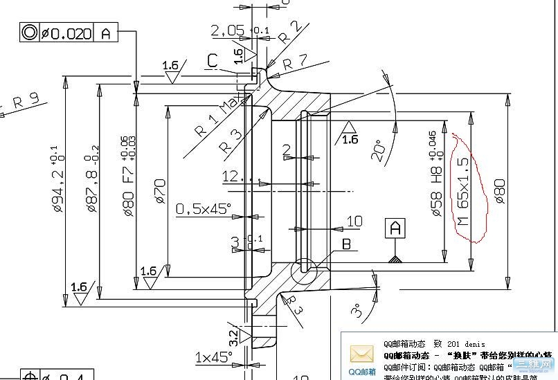
大家帮忙看看,图纸中红色圈起来的M65*1.5 是什么意思啊! 先谢谢了!1 ?9 X$ s! c' T- I0 N3 T$ k7 I" c
8 n' n0 ?& h5 N
drawing1.JPG
发表于 2010-5-9 17:02:42 | 显示全部楼层 来自: 中国北京
没装配图吗?应该是螺纹

评分

参与人数 1三维币 +2 收起 理由
plc + 2 应助

查看全部评分

发表于 2010-5-9 17:10:21 | 显示全部楼层 来自: 中国山西太原
M65的细牙螺纹,螺纹公称直径(大径)65mm,螺距是1.5mm。这是细牙螺纹的基本标法。

评分

参与人数 1三维币 +2 收起 理由
plc + 2 应助

查看全部评分

发表于 2010-5-9 17:23:20 | 显示全部楼层 来自: 中国山西晋中
螺纹,螺距。普通螺纹的螺纹代号是由字母“M”、“公称直径X螺距”及“旋向”所组成的.螺纹代号中普通螺纹的粗牙螺距不标示但细牙螺距必标示,右旋普通螺纹在螺纹代号中其旋向“右”不标示, 但左旋必标示“左”. 如:M24 表示公称直径为24mm的粗牙右旋普通螺纹,其螺距为3mm. M24X1.5左 表示公称直径为24mm、螺距为1.5mm、方向为左旋的细牙普通螺纹.

评分

参与人数 1三维币 +2 收起 理由
plc + 2 应助

查看全部评分

发表于 2010-5-9 17:27:51 | 显示全部楼层 来自: 中国山东泰安
您不是开玩笑吧?
发表于 2010-5-9 17:29:04 | 显示全部楼层 来自: 中国江苏苏州
应该是M65*1.5细牙内螺纹.

评分

参与人数 1三维币 +2 收起 理由
plc + 2 应助

查看全部评分

发表于 2010-5-9 18:02:49 | 显示全部楼层 来自: 中国福建福州
看起来也像是螺纹,但是螺距才1.5,感觉很小啊。

评分

参与人数 1三维币 +2 收起 理由
plc + 2 应助

查看全部评分

发表于 2010-5-9 18:42:10 | 显示全部楼层 来自: 中国上海
M65的细牙螺纹,螺距1.5;很简单的东东啊;
9 J/ i* x( B$ m' c/ U5 A, y3 j( EM65细牙螺纹螺距有4,3,2,1.5几种;对应的大径,螺距,中径,小径参见附图
001.jpg

评分

参与人数 1三维币 +2 收起 理由
plc + 2 应助

查看全部评分

发表于 2010-5-9 18:48:17 | 显示全部楼层 来自: 中国浙江杭州
这个问题还用问的啊?
发表于 2010-5-9 18:56:30 | 显示全部楼层 来自: 中国湖北孝感
就是M65×1.5(螺距)的细牙螺纹。
发表于 2010-5-9 19:10:09 | 显示全部楼层 来自: 中国四川成都
螺纹标注啊,呵呵呵。。。。,不是在开玩笑吧
发表于 2010-5-9 19:11:51 | 显示全部楼层 来自: 中国广东深圳
能提出问题就应该肯定
发表于 2010-5-10 12:49:56 | 显示全部楼层 来自: 中国江苏南通
应该就是M65X1.5细牙内螺纹,M就是普通螺纹的意思
发表于 2010-5-10 14:15:20 | 显示全部楼层 来自: 中国安徽淮北
就是M65*1.5的细牙螺纹。大径65,螺距1.5。
发表于 2010-5-10 14:19:58 | 显示全部楼层 来自: 中国浙江杭州
就是螺纹呀
发表于 2010-5-10 14:45:46 | 显示全部楼层 来自: 中国天津
M65*1.5细牙螺纹.
发表于 2010-5-10 15:05:02 | 显示全部楼层 来自: 中国安徽芜湖
是不是学机械的啊,这个最基本的知识也要问,看来学的不怎么样啊,哈哈
发表于 2010-5-10 16:07:39 | 显示全部楼层 来自: 中国广东珠海
这个标注都不知道一定看不懂图纸。
发表于 2010-5-10 16:30:00 | 显示全部楼层 来自: 中国安徽阜阳
当然是螺距为1.5、公称直径为65的普通细牙螺纹了。楼主对此图纸还有什么问题?
发表于 2010-5-10 17:52:28 | 显示全部楼层 来自: 中国四川成都
这是学机械的最基本的基础知识,你应多加强学习,加油!
发表于 2010-5-10 19:30:25 | 显示全部楼层 来自: 中国山东临沂
建议楼主从机械的基础知识开始学习
发表于 2010-5-10 19:40:15 | 显示全部楼层 来自: 中国上海
在忽悠人么?
发表于 2010-5-10 20:42:05 | 显示全部楼层 来自: 中国广东深圳
呵呵  我也学机械的 都不会看了
发表于 2010-5-10 20:46:57 | 显示全部楼层 来自: 中国辽宁鞍山
LZ估计不是学机械的。。
发表于 2010-5-10 20:59:41 | 显示全部楼层 来自: 中国浙江嘉兴
螺纹和螺距
发表回复
您需要登录后才可以回帖 登录 | 注册

本版积分规则


Licensed Copyright © 2016-2020 http://www.3dportal.cn/ All Rights Reserved 京 ICP备13008828号

小黑屋|手机版|Archiver|三维网 ( 京ICP备2023026364号-1 )

快速回复 返回顶部 返回列表