QQ登录

只需一步,快速开始

登录 | 注册 | 找回密码

三维网

 找回密码
 注册

QQ登录

只需一步,快速开始

展开

通知     

全站
6天前
查看: 2093|回复: 5
收起左侧

[分享] 一个阀门的图纸有兴趣的做做

[复制链接]
发表于 2010-4-14 09:02:24 | 显示全部楼层 |阅读模式 来自: 中国山东烟台

马上注册,结识高手,享用更多资源,轻松玩转三维网社区。

您需要 登录 才可以下载或查看,没有帐号?注册

x
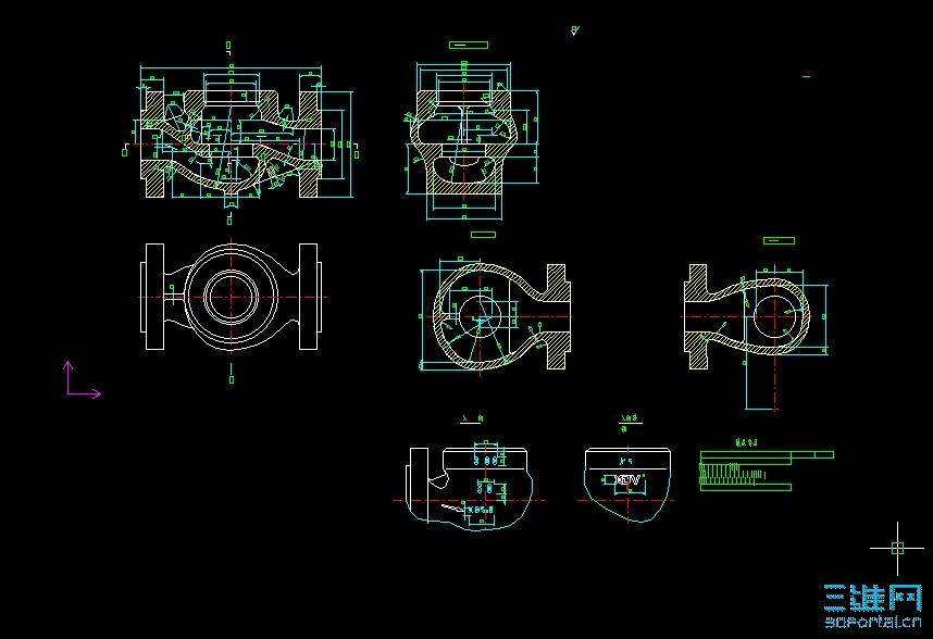
一个阀门的图纸有兴趣的做做1~~~~~~~~~~~~~~~~~~~~~~~~~~~~~~~~~~~曲面做出最好 加分哦

HTS150.50阀体(毛坯图).rar

110.38 KB, 下载次数: 178

发表于 2010-4-14 09:17:46 | 显示全部楼层 来自: 中国辽宁鞍山
贴个图!!!!!!!!!
 楼主| 发表于 2010-4-15 09:46:07 | 显示全部楼层 来自: 中国山东烟台
呵呵 都要贴图啊 贴图在这里
QQ截图未命名.jpg
发表于 2011-3-30 21:18:55 | 显示全部楼层 来自: 中国湖北孝感
谢谢,提供,

评分

参与人数 1三维币 -5 收起 理由
chenjun520601 -5 胡乱重复发言,请认真学习版规!

查看全部评分

发表于 2011-3-31 07:59:05 | 显示全部楼层 来自: 中国江苏苏州
看不到尺寸,,清楚一些
发表于 2011-3-31 08:01:29 | 显示全部楼层 来自: 中国江苏苏州
额 ,,是截图不清晰,,没看到文件  不好意思
发表回复
您需要登录后才可以回帖 登录 | 注册

本版积分规则


Licensed Copyright © 2016-2020 http://www.3dportal.cn/ All Rights Reserved 京 ICP备13008828号

小黑屋|手机版|Archiver|三维网 ( 京ICP备2023026364号-1 )

快速回复 返回顶部 返回列表