QQ登录

只需一步,快速开始

登录 | 注册 | 找回密码

三维网

 找回密码
 注册

QQ登录

只需一步,快速开始

展开

通知     

查看: 7176|回复: 10
收起左侧

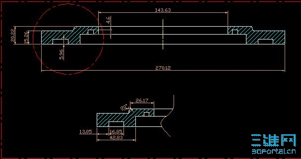
[求助] 对称结构图纸如何标注,谢谢!(有更新)

[复制链接]
发表于 2010-4-3 13:29:50 | 显示全部楼层 |阅读模式 来自: 中国广东东莞

马上注册,结识高手,享用更多资源,轻松玩转三维网社区。

您需要 登录 才可以下载或查看,没有帐号?注册

x
本帖最后由 我叫翔子 于 2010-4-7 00:49 编辑 : B6 v4 H* r) K9 k

& g8 B" c$ M/ P, V) O2 |- M( V因为毕业后一直没有在机械加工厂工作,在公司都是一个人绘图,也没有人指点,时间久了,自己对制图的一些标注方法都忘记了。请各位高手多多指教!
, @& Z3 I% D$ `5 ?: X' c6 [     正题:一个对称的零件,有对称的槽结构,我该如何标注是如图1,还是如图2?
, H9 ?. u: H; ~  F+ `; q8 Y) ^" s' h/ d$ f3 S& p
后补充:谢谢大家的指点,可能贴出的图纸是在网吧时随意画的,也没有很全,我现在把实际图纸发上来,请大家看看,是否可以?2010-04-07
01.jpg
02.jpg
未命名1.JPG

組合式-強化玻璃.dwg

181.35 KB, 下载次数: 8

发表于 2010-4-3 13:42:34 | 显示全部楼层 来自: 中国浙江嘉兴
这个我想只要你能清楚的表达出这个零件就可以了吧?
 楼主| 发表于 2010-4-3 13:45:10 | 显示全部楼层 来自: 中国广东东莞
2# 星空飞翔
' B% L  f) k. |" f& X" d
) ]1 C  A2 m4 Q6 r我感觉用图1的话,平行标注的尺寸太多,不利于读图和实际检验测量
发表于 2010-4-4 12:50:29 | 显示全部楼层 来自: 中国江苏淮安
首先你根据你的要求要选择一个对称基准,染后再画出要求与基准对称的槽的中心线,基准符号与基准尺寸对齐,表示基准平面是作为基准的槽的中心平面,对称度与被要求的槽的尺寸线对齐,表示其中心平面。
发表于 2010-4-4 13:09:33 | 显示全部楼层 来自: 中国江苏常州
原则上应按照图一标注,具体尺寸不能一概而论,以符合设计意图和方便测量为准。以你的图纸为例,一般标注直径尺寸,但如果其中一个环形槽是装密封圈的话,应按其标准规定标注,即一个直径尺寸加槽宽尺寸(加深度)。

评分

参与人数 1三维币 +5 收起 理由
2005llnn + 5 应助

查看全部评分

发表于 2010-4-5 15:18:39 | 显示全部楼层 来自: 中国安徽淮南
同意5楼 ftgww123 的观点,实际工作上,我们都是这么做的。
发表于 2010-4-6 09:43:06 | 显示全部楼层 来自: 中国安徽滁州
第二种标注较好,但是楼主的标注好像不全。
发表于 2010-4-6 10:24:51 | 显示全部楼层 来自: 中国山东聊城
我感觉应该用图一,看你的图应该是个套,圆形,应该对称标注。你是不是忘了直径符号。

评分

参与人数 1三维币 +3 收起 理由
2005llnn + 3 应助

查看全部评分

发表于 2010-4-6 12:51:19 | 显示全部楼层 来自: 中国浙江台州
建议用图1! g% ^$ v# ^1 P
都有尺寸少标
发表于 2010-4-6 16:20:03 | 显示全部楼层 来自: 中国北京
根据实际的情况来定的,看你选取的是什么基准了。7 C: U9 p; \$ C4 n  o4 |
一般按照图1标,如果对沟槽的宽度要求比较高,沟槽部分应该用图2.
发表于 2010-4-6 23:50:05 | 显示全部楼层 来自: 中国云南玉溪
不懂机械,学习了。
发表回复
您需要登录后才可以回帖 登录 | 注册

本版积分规则


Licensed Copyright © 2016-2020 http://www.3dportal.cn/ All Rights Reserved 京 ICP备13008828号

小黑屋|手机版|Archiver|三维网 ( 京ICP备2023026364号-1 )

快速回复 返回顶部 返回列表