QQ登录

只需一步,快速开始

登录 | 注册 | 找回密码

三维网

 找回密码
 注册

QQ登录

只需一步,快速开始

展开

通知     

查看: 2808|回复: 11
收起左侧

[已解决] 皮带传递功率问题

 关闭 [复制链接]
发表于 2010-4-3 10:09:07 | 显示全部楼层 |阅读模式 来自: 中国河南郑州

马上注册,结识高手,享用更多资源,轻松玩转三维网社区。

您需要 登录 才可以下载或查看,没有帐号?注册

x
原来设计的减速电机功率为250w,使用SPA皮带传动,电机小皮带轮节径为90mm,减速电机输出转速为93转2 P% p+ x( M: M1 [" a6 w3 C
现在电机带不动上磨盘转动,我打算更换370w的减速电机,现在主要担心原来的皮带传递不了这么大的功率,请问一下:皮带过载这部分有没有问题?打滑还是皮带断裂?
发表于 2010-4-3 12:31:43 | 显示全部楼层 来自: 中国山东烟台
Lz要说明磨盘的负载是什么样的、皮带的规格要你给出# w. x' m" l! ?$ V2 D6 g0 e
计算方法主要是:电能-损失能耗>动能,动能转化为负载力(考虑皮带的效率)
发表于 2010-4-3 16:14:35 | 显示全部楼层 来自: 中国上海
还是查手册算下比较保险。人家怎么会帮你算哦
发表于 2010-4-3 17:45:03 | 显示全部楼层 来自: 中国江苏淮安
手册上有详细的计算,你要看还有没有富裕量。
 楼主| 发表于 2010-4-3 21:46:48 | 显示全部楼层 来自: 中国河南南阳
我主要是现在没法子了,以前算过,但是现在要使用370瓦的电机,我想着皮带传递的功率是基本额定功率,过载部分会不会有问题,主要是这个问题,估计要过载100瓦左右。还请各位解惑!
发表于 2010-4-3 22:20:07 | 显示全部楼层 来自: 中国黑龙江佳木斯
看来你的电磨是个小作坊使用的。3 q7 T9 _2 v4 a& o
几个问题。
0 M+ v5 A' J4 R) p# k8 g1.原来设计是否正常运转过?  j, c, }" b+ `% I* H
如果正常运转过那么因为摩擦负载加大可以考虑加大功率。
5 ^: s. P/ u" w3 l: ]9 \, i2 P2.设计时皮带是否留有余地?留了多少?
' x; I, t- e. |' q2 [8 E: @如果预留余地为1.5那么直接加大功率即可。
9 ?, V( M4 Q1 e" B3.转速相同只是功率大很多的话。只是费电没有其它后果。) G* x- C3 K. K! G9 t; i6 @7 b
4.功率加大后仍旧带不动只好换皮带轮了。并且皮带换型号。

评分

参与人数 1三维币 +2 收起 理由
天际孤帆 + 2 技术交流

查看全部评分

 楼主| 发表于 2010-4-5 08:33:21 | 显示全部楼层 来自: 中国河南郑州
楼上的朋友,谢谢!我们的设备主要用来精磨、抛光平板玻璃的, n6 |% }/ J+ \& M
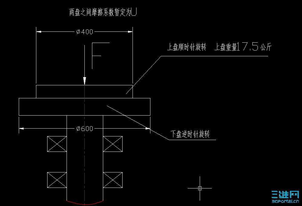
主要工作原理如图 1001311840256bfef6272a1a4c.png
+ @1 }! f) r' y% g1、精磨的时候转动过,抛光不能转动,精磨盘直径为280mm,抛光直径为400mm
2 U0 S3 ?1 ~4 H  H7 z# W& `2、设计的时候没有留那么多的余地,几乎没有,主要考虑设计结构,要不增大皮带轮结构就要变大了* F. T" S, r7 p" C9 w
现在主要是想在这个基础上增加功率,想着皮带过载后是不是就是打滑,如果不打滑,寿命缩短也行,没法子了,要不就要重新设计了% j7 R1 ^& H' }6 r
$ R- @) H$ S, `
还请朋友们多出出点子
发表于 2010-4-5 09:11:59 | 显示全部楼层 来自: 中国北京
既然寿命短一些没关系,估计就没问题。
7 [7 \1 X  H2 k& r/ n如果发生打滑可以采取一些措施:5 J9 I$ g& z2 S4 a) F  q! v, [1 N  ?5 Y
1、增加涨紧力;; N( @' I# W7 u/ `+ p! F
2、在皮带轮上面撒一些松香粉;
发表于 2010-4-5 12:53:05 | 显示全部楼层 来自: 中国上海
你可以根据设计手册里的基准带宽功率来确定你更换电机后需要多宽的带
发表于 2010-4-5 21:10:26 | 显示全部楼层 来自: 中国黑龙江佳木斯
你的情况看来先用370的试试吧,希望一次成功。不行就得换皮带轮,那就是转矩问题了,重新计算吧。
 楼主| 发表于 2010-5-4 08:38:01 | 显示全部楼层 来自: 中国河南郑州
谢谢管理员提醒,现在给大家汇报一下情况:经过现场试验,皮带没打滑,传递功率没问题,看来皮带传递的功率实际上要比机械手册上给出的参考数据大得多,呵呵!
发表于 2010-5-17 12:54:02 | 显示全部楼层 来自: 中国江西南昌
不同型号的皮带都有一定的传递功率的能力,如果负载的功率超过皮带的功率能力,皮带肯定是要打滑的。
发表回复
您需要登录后才可以回帖 登录 | 注册

本版积分规则


Licensed Copyright © 2016-2020 http://www.3dportal.cn/ All Rights Reserved 京 ICP备13008828号

小黑屋|手机版|Archiver|三维网 ( 京ICP备2023026364号-1 )

快速回复 返回顶部 返回列表