QQ登录

只需一步,快速开始

登录 | 注册 | 找回密码

三维网

 找回密码
 注册

QQ登录

只需一步,快速开始

展开

通知     

查看: 2149|回复: 15
收起左侧

[讨论] 大家帮我分析一下这个原理图

[复制链接]
发表于 2010-3-18 14:18:49 | 显示全部楼层 |阅读模式 来自: 中国北京

马上注册,结识高手,享用更多资源,轻松玩转三维网社区。

您需要 登录 才可以下载或查看,没有帐号?注册

x
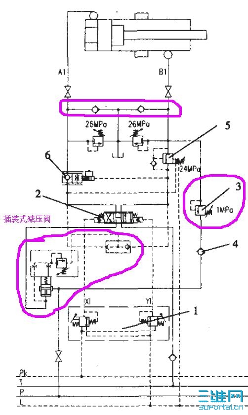
油路如图。
9 B! S1 f! _# K$ i, J+ m. y/ o三个问题(图中已圈出):, W0 Y  H; `6 `% A: V& J
1、最上面两个单向阀作用是什么(这个问题有点弱,好像很常见这种接法(∩_∩)
2 Q/ M0 S% J1 c" k0 E4 o$ O2、下面的那个插装式减压阀及盖板工作及控制原理,它连出的线是如此之多,有点头大
) _6 S/ L: i8 D+ D- p8 L  g4 c3、右面那个1MPa的溢流阀(件号3)在比例换向阀左位工作,亦即油缸有杆腔进油时,压力能否迅速有效建立起来?(需要工作压力10MPa以上)
图.jpg
 楼主| 发表于 2010-3-18 15:51:15 | 显示全部楼层 来自: 中国北京
1# stnle z
, g0 E6 }1 }& o9 c$ j! Q" g) z1 T1 o着急求教,各位专家们关注一下吧
发表于 2010-3-18 16:19:14 | 显示全部楼层 来自: 中国江苏南京
个人见解,希望能起抛砖引玉的作用,如有错误,敬请谅解。
4 f9 i* u# p+ h& p" V2 b! B1.两个单向阀是补油用的,防止吸空。/ r: Y5 `3 x$ k' S
2.插装式减压阀为什么要把先导溢流阀的回油口接到梭阀中?还请高人赐教。
" L2 b3 K( N& N3 T  w) x3.整体看,3和4应该组成差动回路,应该是在比例换向阀右位时工作。
5 A$ Q8 t2 D1 i# W请教高人阀5和6是否都是平衡阀?( Q% e: ~4 g' ^! Q" v
楼主是否可以提供点更详细的资料,比如阀件的型号。
发表于 2010-3-18 16:46:46 | 显示全部楼层 来自: 中国甘肃兰州
补充楼上:, k  P* K/ |5 r* _+ f0 _
1.插装式减压阀为定差减压阀,使比例阀进出口压差为恒值,梭阀为检测高压用。
; v4 F7 B) n) j9 V6 n3.阀5和6都是平衡阀。
发表于 2010-3-18 19:31:53 | 显示全部楼层 来自: 中国黑龙江佳木斯
学习了!谢谢!
发表于 2010-3-18 19:59:33 | 显示全部楼层 来自: 中国湖北武汉
本帖最后由 stallone123 于 2010-3-18 20:04 编辑
: V# W1 _# E1 T
2 A7 R5 W: F- p  T8 G& S, j, b# s这个应该是步进梁中液压系统回路吧,4 n2 f# g4 H1 N
1.两个单向阀是补油用的
, h# }7 h  u$ D3 R# P% ]' X! c3 b2.插装式减压阀为定差减压阀,配合梭阀形成进口压差补偿,即进口压力补偿器,有成品,作用是维持比例阀进出口压差,保证比例阀流量的稳定性。
8 y5 ]0 ~  c  _6 _6 m/ P3.阀5是起背压作用的,使缸在向右运动时的比较平稳;另外,一旦背压压力比系统供油压力还大1mpa 时, 阀3就与系统供油压力相通,压力能回收利用,节能。" b  z  d8 N1 }1 m: h
系统设计的不错~~~
 楼主| 发表于 2010-3-19 15:47:24 | 显示全部楼层 来自: 中国北京
个人见解,希望能起抛砖引玉的作用,如有错误,敬请谅解。3 j" _5 \8 I! G9 x
1.两个单向阀是补油用的,防止吸空。3 r: `! l+ {- g) n  k1 a
2.插装式减压阀为什么要把先导溢流阀的回油口接到梭阀中?还请高人赐教。. q7 b9 l3 b1 k8 a0 r& D5 N
3.整体看,3和4应该组成差动回路,应该是 ...4 l( F2 j6 i) v6 K3 ]
313117596 发表于 2010-3-18 16:19 http://www.3dportal.cn/discuz/images/common/back.gif

! s0 @* d( M/ k% k/ m1 ^; X首先多谢回复:)
' M) h3 M4 w' Y: x" Y- z1、两个单向阀下面的两个溢流阀作安全阀用,那么这两个单向阀应该不是用来补油的吧?' o) C2 b* O* C( i
2、我是俺最困惑的地方7 H5 T1 k; R9 a) \- @' E* ~
3、无杆腔进油的时候差动没错,我想知道的是在有杆腔进油的时候,系统压力能否快速可靠建立起来
 楼主| 发表于 2010-3-19 16:08:19 | 显示全部楼层 来自: 中国北京
这个应该是步进梁中液压系统回路吧,
  L+ E2 O1 y. n* `/ e1.两个单向阀是补油用的
- F) ?8 J: t) c# F0 c) F3 C  y2.插装式减压阀为定差减压阀,配合梭阀形成进口压差补偿,即进口压力补偿器,有成品,作用是维持比例阀进出口压差,保证比例阀流量的稳定性。
; `5 G; q0 {! q% o) ?  {3.阀5是 ...
" w2 B2 J6 \( Q0 d  ]: N) Z- _0 ?stallone123 发表于 2010-3-18 19:59 http://www.3dportal.cn/discuz/images/common/back.gif

- X" A) @: ^7 g1 v6 A: s; T: Y1 N3 D) {3 C
多谢回复:)+ S6 A# I9 f/ s: l+ b. [: v5 ]
1、两个单向阀下面的两个溢流阀作安全阀用,那么这两个单向阀应该不是用来补油的吧?" h+ V6 E+ y. W% T. `
2、您的解答对我很有启发,这个减压阀的功用我已经明了,回头我再找找工作原理研究一下
* y0 c0 k0 x1 `7 X) Y3、在有杆腔进油的时候,系统压力能否快速可靠建立起来? 另这个溢流阀和单向阀之间会不会憋压力油?
( P: H, E. h, C# b0 o  C& P. d这个是别人设计的系统呵呵
发表于 2010-3-19 22:53:15 | 显示全部楼层 来自: 中国北京
关于第二个问题:% z1 ~6 y, g/ H* Y
插装式减压阀和梭阀配合形成进口压差补偿。是对的。目的是保持比例阀进出口压差在1mpa左右,保证比例阀流量的稳定性。& x+ i4 \; }4 K! b7 e% h+ r
力士乐和阿托斯都有这两个阀的集成件,叫压力补偿装置,16到32的都有,再大的就没有了。
发表于 2010-5-10 18:48:51 | 显示全部楼层 来自: 中国河南洛阳
很同意两个单向阀  是推空时形成负压起到补油作用
发表于 2010-5-10 20:32:22 | 显示全部楼层 来自: 中国山东烟台
关于第二个问题:
: A$ k* ^3 S! H插装式减压阀和梭阀配合形成进口压差补偿。是对的。目的是保持比例阀进出口压差在1mpa左右,保证比例阀流量的稳定性。2 l( P/ q- u; `9 p) r7 e
力士乐和阿托斯都有这两个阀的集成件,叫压力补偿装置,16到32的都有,再大 .../ h; w" ]2 q$ q- m7 Y  x7 t
zgjlynx 发表于 2010-3-19 22:53 http://www.3dportal.cn/discuz/images/common/back.gif
/ c9 ~. {* `- Y+ F
感谢分享经验。学习了。! u7 c+ a1 g* A9 S9 S
楼主:这是什么设备上的?
发表于 2010-8-22 10:36:26 | 显示全部楼层 来自: 中国安徽蚌埠
关于第2点,以前看过吴老师的《实用电液比例技术》液阻理论中有类似的接法。常规二通流量阀 delta P是恒定的,约等于弹簧力。上面这种接法,可以使 delta P可变。
发表于 2010-8-22 15:28:12 | 显示全部楼层 来自: 中国陕西宝鸡
这个应该是步进梁中液压系统回路吧,
6 ~4 Q% c  q7 l# W' L+ S# C( Q1.两个单向阀是补油用的
4 e& f$ D8 I1 f! A+ ?% R9 y2.插装式减压阀为定差减压阀,配合梭阀形成进口压差补偿,即进口压力补偿器,有成品,作用是维持比例阀进出口压差,保证比例阀流量的稳定性。; O' X5 H. G' D( N- |3 l" N
3.阀5是 ...0 Y3 e0 e0 ?, }0 ?% t, C: J+ \
stallone123 发表于 2010-3-18 19:59 http://www.3dportal.cn/discuz/images/common/back.gif
学习了 # `+ i, \3 [( d7 I+ c. A+ p
那是 什么地方的液压系统啊?
发表于 2010-8-22 23:44:33 | 显示全部楼层 来自: 中国天津
关于第二个问题:& M! [& k& V, \. A. ]
插装式减压阀和梭阀配合形成进口压差补偿,替代大通径压力补偿装置,满足比例阀的性能要求。
+ e9 G  K# G) G想问问了解这种设计的朋友减压阀组合的先导控制,为何选DB而不选DR,实现DB进口和回油口(这里也是压力油口)的压差控制,如何优于DR。
发表于 2010-8-23 10:32:33 | 显示全部楼层 来自: 中国浙江台州
插装阀的减压盖板什么情况下用啊
发表于 2010-8-30 21:01:44 | 显示全部楼层 来自: 中国浙江宁波
来这里的都是高手,学习了
发表回复
您需要登录后才可以回帖 登录 | 注册

本版积分规则


Licensed Copyright © 2016-2020 http://www.3dportal.cn/ All Rights Reserved 京 ICP备13008828号

小黑屋|手机版|Archiver|三维网 ( 京ICP备2023026364号-1 )

快速回复 返回顶部 返回列表