QQ登录

只需一步,快速开始

登录 | 注册 | 找回密码

三维网

 找回密码
 注册

QQ登录

只需一步,快速开始

展开

通知     

查看: 1498|回复: 1
收起左侧

[已答复] 初次接触花键,请大家帮我的草图分析以及提些意见

[复制链接]
发表于 2010-3-16 13:45:21 | 显示全部楼层 |阅读模式 来自: 中国浙江温州

马上注册,结识高手,享用更多资源,轻松玩转三维网社区。

您需要 登录 才可以下载或查看,没有帐号?注册

x
本帖最后由 凉商魄 于 2010-3-16 13:47 编辑 . Y# N+ V  z- u! u* L" `

, U! j1 x. n  u' ?----; Q/ V) J; K/ H% a9 z2 k" O( T

% y. s, e8 w0 m/ T6 I7 o4 d7 g* E# ~+ o3 ^' M) M( x$ A
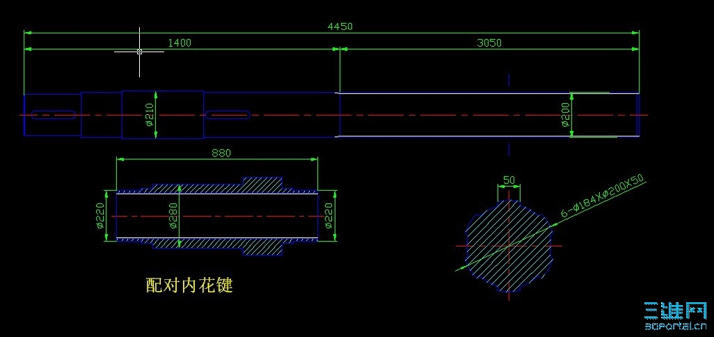
初次接触花键,请大家帮我的草图分析以及提些意见
/ [. n3 _8 K* |4 A/ }σp=2000*T/(ψ*z*H*L*Dm)≤[σp]
6 M0 K9 L' m: N今天为了学习和实际中应用,我再论坛上搜索需要的花键资料( N$ j' J& D6 I5 L9 M' y( O: J5 W
因为条件限制,工作中没有书籍以及资料,3 c5 P7 A+ Q8 C( {4 f  c8 j, `# K
; ~% w& w, Q/ ^) p! g
下面这个案例,我是自己选择的,为了方便加工我选择矩形花键
0 C( J9 C4 G) b7 z花键轴200X3.05米长用铣床加工,内花键用插床加工200X880长3 U# _) C8 E! e3 Z' u
! r9 h+ ]& J* E2 i+ x3 `7 J
6-200X184X50
- v; y) J' p. K6 x% D( f
! G( ~  h6 `. T驱动电机320KW  转速=750-1000转/分1 H2 W4 O; h* e* n' P
减速比1:20
3 b2 O5 j8 M* z0 xψ=0.8  H=8   L=有限工作长度880  Dm=192  Z=6% j5 V6 |. O8 y' G7 G
T=9550X320(/1000/20)
: @, ~" J, {0 t套上面的公式,σp最大=18.8
! |% e& V$ ^% f7 m6 m. B, ?9 h4 w8 Z
因为我查不到[σp],所以想来问下大家,
3 b9 ^8 x! s1 q4 z& ]
2 w5 |  b2 U# K( a9 Z- @8 V6 M·····¥¥——
# l5 E( N  N' v6 w) @( \; S) ~一般花键或者普通键除了做挤压强度还需要做其他剪切、转矩等计算吗,那相应公式又是这样呢4 r" F  Q1 ?2 ~& V6 V

1 h% ]$ J% Q$ g9 Z2 _# l; w% d" ~  t
还有我这个矩形花键这样选择尺寸合理吗,
7 r  y4 r1 }( S# `( Z4 O
. a4 w7 N+ x' C. x如果需要热处理应该如何选择呢--我自己的想法,花键轴因为太大太重就不热处理,45钢轧制件( D  }4 g$ S  Z3 |
花键套==因为壁不是太厚,选者加工前调质=255-280HBS,,材料选者45钢
5 A. }6 |0 |  M/ T# _7 h' K* w( u0 {, {7 q/ Q
一般花键小或者大的,都是如何热处理呢,也请大家说说1 `5 S9 ~# N- B+ l' d( Q
( o5 f! z" {5 I

4 b6 r6 n- e* e) F. W7 Q# V1 V# B----------另求助个矩形花键标准国标所有尺寸
* p# H: @8 q# }( W9 W以及溅开线花键的标准尺寸,以及计算公式,很想了解下---不知道是不是和齿轮计算公式差不多& [# X* C8 D  n* t
0 z) `- p" }0 P9 d4 n3 ^# i4 Q
1.jpg

花键草图.rar

232.47 KB, 下载次数: 5

发表于 2010-3-17 21:38:01 | 显示全部楼层 来自: 中国浙江嘉兴
花键有相应的标准,你可以下载标准,进行选取尺寸。8 Q% H3 h3 H) x1 `9 m
贴二张图,希望能对您有用
5 Q2 Z) _  \0 m  n6 {% n你可以下载:GB/T1144' G0 m. F& T( a0 u$ z
http://www.3dportal.cn/discuz/viewthread.php?tid=858134&highlight=1144* Z7 d5 I. A5 ~; U; J
题外话,做设计工具书还是必须的。
1.png
2.png
3.png

评分

参与人数 1三维币 +2 收起 理由
天际孤帆 + 2 技术交流

查看全部评分

发表回复
您需要登录后才可以回帖 登录 | 注册

本版积分规则


Licensed Copyright © 2016-2020 http://www.3dportal.cn/ All Rights Reserved 京 ICP备13008828号

小黑屋|手机版|Archiver|三维网 ( 京ICP备2023026364号-1 )

快速回复 返回顶部 返回列表