QQ登录

只需一步,快速开始

登录 | 注册 | 找回密码

三维网

 找回密码
 注册

QQ登录

只需一步,快速开始

展开

通知     

查看: 3134|回复: 26
收起左侧

[已解决] 这个零件在图纸上的技术要求应如何说明

 关闭 [复制链接]
发表于 2010-3-11 16:24:28 | 显示全部楼层 |阅读模式 来自: 中国福建厦门

马上注册,结识高手,享用更多资源,轻松玩转三维网社区。

您需要 登录 才可以下载或查看,没有帐号?注册

x
本帖最后由 转弯 于 2010-3-13 21:58 编辑
8 y) f1 C; T8 m9 z6 }. H; |: E% g6 u, Y7 W7 ?! i% q
280MM长的齿轮轴,齿轮最大外径120MM,要铣20*5*70长的键槽,用的是20CrMnTi,齿轮表面要作渗碳处理!3 |- O& Y7 J, D% ?, g
该轴原来是用40Cr 调质HB220-250,齿轮表面工频淬火HRC35!
0 g' N7 e7 e4 O# b% d8 u
1 M: L) }3 v7 h7 ^7 n0 C) v; N& u7 ^% L
现在换成20CrMnTi我这图纸上应该如何标注处理要求呢?这轴有一定的冲击和承受4T的载荷!
5 j6 @# U% b' ~4 j' ]0 l我现在图面上标明齿轮表面渗碳处理HRC35,渗碳层0.5-1.0可以吗?
# b0 K' A& f0 O, N7 s# M0 [' H7 K3 E1 U7 |8 k1 j& v
  a# n+ @5 M) ]( P+ |
请行家给我帮忙看下啊!谢谢了!
发表于 2010-3-11 16:29:29 | 显示全部楼层 来自: 中国内蒙古呼和浩特
这个查查俩材料的性能对比下作出结论吧
发表于 2010-3-11 16:30:28 | 显示全部楼层 来自: 中国浙江杭州
渗碳淬火处理,因为材料更好了,经验数据是淬火深度1.2-1.6,硬度58-62HRC,供参考。
 楼主| 发表于 2010-3-12 08:25:00 | 显示全部楼层 来自: 中国福建厦门
3# wangxinyue
! x& i% j6 b  C' A; u3 C
. k2 i' ~3 }7 n. H' \1 E3 K  K
* S! h0 I, g& O2 A- M: j  C+ v淬火处理到60度还得铣槽,会好加工吗?
+ p0 G( \2 U. a- l1 u- X
& t7 q4 J) y7 z. {; _$ b! R) Y% m. ]- F
那我这样子标可以吗?淬火处理HRC20-25,齿面渗碳处理HRC35,渗碳层0.5-1.1!可以吗?
 楼主| 发表于 2010-3-12 08:26:06 | 显示全部楼层 来自: 中国福建厦门
4# xyh1018
: x- d3 L/ B5 U& R% C( D! G( v) e$ ?* Y/ x/ O& X* r, o) F4 E; ?
/ H: X- l4 I/ `1 f/ H6 g- `8 f
如何看材料的性能决定处理方式呢?( k2 b5 Q- Y: N  |
能指教下吗?
发表于 2010-3-12 08:53:44 | 显示全部楼层 来自: 中国江苏南京
查材料的热处理性能。# w: q& a: }7 U# U( i
齿轮轴的淬火硬度太低。最少应在HRC30以上。
发表于 2010-3-12 09:22:36 | 显示全部楼层 来自: 中国上海
技术要求:渗碳渗火,层深0.9~1.2,表面硬度58~62HRC,心部硬度30~35HRC。
5 g3 u4 r0 w3 r) ^4 ~备注:1、渗碳淬火后齿面应珩齿或磨齿来提高精度。/ L, s9 r% z$ v5 _+ {. V
      2、工件上若有键槽、螺纹或其它薄弱结构,渗碳前应用防渗剂涂覆以防碳渗引起裂纹等缺陷。
( j( ]! E2 E; ~* v      3、20CrMnTi材料采取渗碳淬火是典型的工艺,其特性是外硬内软。广范应用在受冲击、载荷波动大的场合。(如汽车齿轴件等)

评分

参与人数 1三维币 +2 收起 理由
asdolmlm + 2 应助

查看全部评分

发表于 2010-3-12 09:54:09 | 显示全部楼层 来自: 中国江苏镇江
最好是齿面渗碳,其他地方调质处理后精加工就好了。
发表于 2010-3-12 09:55:32 | 显示全部楼层 来自: 中国江苏常州
本帖最后由 ftgww123 于 2010-3-12 13:46 编辑 ) e& p6 s# i2 p. _

; ^+ ~5 K" X- \8楼的意见比较准确全面;关于渗碳渗火有效淬硬深度,可根据齿轮的模数、重要表面的磨量考虑确定。
 楼主| 发表于 2010-3-12 10:42:12 | 显示全部楼层 来自: 中国福建厦门

RE: 这个零件在图纸上的技术要求应如何说明

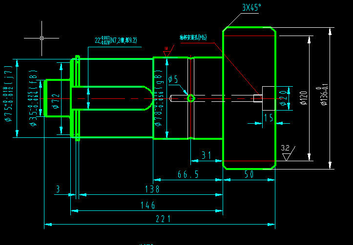
Snap1.jpg 我贴个图大家看看
 楼主| 发表于 2010-3-12 10:46:35 | 显示全部楼层 来自: 中国福建厦门
8# tzg
5 M( s/ n2 _! ?9 ?3 j7 ?# j. I/ c. e& i* Y: K
如果只要齿面作渗碳处理,其它地方只作淬火处理这样可以吗,应该怎么标呢?
发表于 2010-3-12 13:51:20 | 显示全部楼层 来自: 中国江苏常州
本帖最后由 ftgww123 于 2010-3-12 13:52 编辑
1 J4 ]; g( v" @" P3 _) w# ^9 i; @- i3 ?( w
图纸已经看到,齿轮模数没有说明。可以就照8楼的技术要求,心部硬度30~35HRC较难保证,可放宽至33~48HRC。
发表于 2010-3-12 14:21:08 | 显示全部楼层 来自: 中国重庆
本帖最后由 lussssssssss 于 2010-3-12 14:31 编辑
) I  v2 l9 C' B: x" Z, i$ K  }# {  X) f3 Z
实在不明白为什么要改材料。# j$ I# m& }" N- ^( Q3 w
按原来技术要求与材料是非常好的,除非冲击真的很大,把原来轴冲坏了。
  l( T3 L6 M7 S我认为:1 如果材料采用40Cr,调质后表面可以渗氮或高频淬火,再磨光(渗氮可以直接用),这样抗冲击,耐劳性好,耐磨。如果强度不够,可以提高调质硬度到250~270HB,表面高频硬度48~53HRC。* k5 ~8 m. j% |+ [* ]" @
2 如果采用20CrMnTi,材料肯定贵些,渗碳深度也就1mm左右,轴很粗,仅表皮强,大部分弱,淬火后縩合性能可能比40Cr还差,特别是整个截面强度达不到,工艺还复杂.如果硬是要使用,调质后表面高频即可。

评分

参与人数 1三维币 +2 收起 理由
asdolmlm + 2 技术讨论

查看全部评分

发表于 2010-3-12 14:29:13 | 显示全部楼层 来自: 中国江苏常州
20CrMnTi 渗碳淬火强度等性能优于40Cr调质加高频淬火,这是没有疑问的。
 楼主| 发表于 2010-3-12 15:56:56 | 显示全部楼层 来自: 中国福建厦门
15# lussssssssss
( K( C" L8 _/ C; `
* k. Q+ _( [9 n+ M- D$ m4 c! E: ?1 d) V8 [  m

0 F, h; m9 `- y) H可能是以前这处材料有发生过问题吧!这轴是用于工程机械上的!
0 M/ I5 [3 J# _: ]8 z3 P% P! ~
9 J: O$ `, m3 r- m2 T  d9 C, R- U: ?我们上面的意思是说要换材料,可我对材料这个不太了解!( M! J& g: D9 v2 k! {
! e' \& C8 P& @8 w" Q9 s  A
所以来这边请教大家了!渗碳有心要把整根都作渗碳处理吗?还是说就齿面作渗碳处理?
发表于 2010-3-12 16:00:15 | 显示全部楼层 来自: 中国江苏常州
没有特殊要求当然是整体渗碳了,典型工艺。
 楼主| 发表于 2010-3-12 16:39:41 | 显示全部楼层 来自: 中国福建厦门
18# ftgww123
1 _; g" G: ?2 f8 {0 Y$ Q
" ~" T  E/ \  R整体渗碳后有硬度键槽好加工吗?
' ]2 }6 n7 Q7 ]  \& d还是全部加工好后进行渗碳处理呢?这样子会有变形有影响吗?
- T& c! ~! _- I Snap3.jpg
发表于 2010-3-12 17:46:30 | 显示全部楼层 来自: 中国上海
键槽可先粗加工,有硬度后再精加工既可,最好采用磨削加工.
 楼主| 发表于 2010-3-12 18:06:22 | 显示全部楼层 来自: 中国福建厦门
这种零件整体作淬火处理HRC30-36,方便加工,然后齿轮面作渗碳处理可以吗?: \$ k* Z& c& O+ }& v9 g, `
大家帮忙确认下!
发表于 2010-3-12 20:28:05 | 显示全部楼层 来自: 中国江苏淮安
齿面硬度57--61HRC就可以,芯部硬度28--32HRC.
发表于 2010-3-12 22:20:15 | 显示全部楼层 来自: 中国江苏常州
本帖最后由 ftgww123 于 2010-3-12 22:25 编辑
- |3 s  I4 `- N9 P6 g( Q
, J# a! A& B$ n( G4 n1 L" b# x19# 转弯
" O% S, D7 G3 V) Y2 _: j$ O  O0 Y' w
5 d6 \1 P- U* ^( t看了你的图纸,齿轮模数较大,渗碳深度要调高,建议:渗碳渗火,有效硬化层深1.2~1.6,表面硬度58~62HRC,心部硬度33~48HRC。
2 }+ M/ o4 C* j6 Z9 a5 g至于键槽,通常在热处理前加工,尺寸会受热处理一定影响,一般可做实验,制定工艺尺寸。6 a' K7 m* C; M  K7 L/ D
还有,是先渗碳,再淬火。这是典型的成熟工艺,找一家设备、工艺水平较好的单位热处理就行了。

评分

参与人数 1三维币 +2 收起 理由
asdolmlm + 2 鼓励参与

查看全部评分

 楼主| 发表于 2010-3-13 07:54:28 | 显示全部楼层 来自: 中国福建厦门
23# ftgww123 & w- z8 Z8 N3 L8 A

, g% f3 [4 ]6 J% Q2 N& q谢谢你!我懂了!
7 U0 \) L, W3 [7 o4 f, F4 K; O也谢谢热心的友友们!
发表于 2010-3-13 10:52:38 | 显示全部楼层 来自: 中国上海
不可以 13# 转弯
发表于 2010-3-13 10:58:57 | 显示全部楼层 来自: 中国上海
不难控制!热处理的一般公差为上3下2(经验)如本例心部硬度也可写作32HRC。 14# ftgww123
发表于 2010-3-13 11:05:41 | 显示全部楼层 来自: 中国上海
回答得准确无误,谢谢! 16# ftgww123
发表回复
您需要登录后才可以回帖 登录 | 注册

本版积分规则


Licensed Copyright © 2016-2020 http://www.3dportal.cn/ All Rights Reserved 京 ICP备13008828号

小黑屋|手机版|Archiver|三维网 ( 京ICP备2023026364号-1 )

快速回复 返回顶部 返回列表