QQ登录

只需一步,快速开始

登录 | 注册 | 找回密码

三维网

 找回密码
 注册

QQ登录

只需一步,快速开始

展开

通知     

查看: 3462|回复: 16
收起左侧

[已解决] 汽轮机发电机的CAD示意简图

[复制链接]
发表于 2010-2-18 16:43:22 | 显示全部楼层 |阅读模式 来自: 中国陕西榆林

马上注册,结识高手,享用更多资源,轻松玩转三维网社区。

您需要 登录 才可以下载或查看,没有帐号?注册

x
大家手头是否有相关的示意简图,只需要外观的,最好能有包括中间联轴器的。
发表于 2010-2-18 17:30:10 | 显示全部楼层 来自: 中国山东潍坊
又是个题神(替身)啊!!!郁闷!
 楼主| 发表于 2010-2-18 22:09:02 | 显示全部楼层 来自: 中国陕西榆林
又是个题神(替身)啊!!!郁闷!
9 G. H! m1 u* s  o2 ^$ T8 Wa987lkj 发表于 2010-2-18 17:30 http://www.3dportal.cn/discuz/images/common/back.gif

5 o: T. O8 K: A4 y' E何意?画图时候要用,所以找些素材!
 楼主| 发表于 2010-2-21 08:20:30 | 显示全部楼层 来自: 中国陕西榆林
麻烦各位提供下,仅仅是一个简图!
发表于 2010-2-21 15:01:11 | 显示全部楼层 来自: 中国山西临汾
本帖最后由 sxlfr 于 2010-2-21 15:02 编辑 ) N  Y) a/ m& g5 x3 q
7 X6 X; Y% W8 |
楼主要的是示意图?不知道你所说的示意是什么意思,给你一个汽轮机的看看对不对。
. t4 W& u, g+ S# g2 w' x 东方600MW汽轮机本体.jpg
 楼主| 发表于 2010-2-22 10:25:31 | 显示全部楼层 来自: 中国陕西榆林
简图,外观的简图,看来我自己画吧
发表于 2010-2-22 14:57:48 | 显示全部楼层 来自: 中国山西临汾
简图,外观的简图,看来我自己画吧8 N& x1 `" n2 ]. C  M7 e/ i
lauhob 发表于 2010-2-22 10:25 http://www.3dportal.cn/discuz/images/common/back.gif

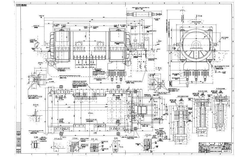
/ }( Z* E/ {3 \9 l( [0 H看看是这样的吗?发电机的图。& X9 }8 r- T) R
0Q397-S.jpg
发表于 2010-2-22 15:23:58 | 显示全部楼层 来自: 中国浙江宁波
图片好小啊,看不清楚哦
 楼主| 发表于 2010-2-22 20:28:36 | 显示全部楼层 来自: 中国陕西榆林
看看是这样的吗?发电机的图。4 K) Q2 `9 `: j# X, T; C# h3 @
1588136# |7 Q& [, @$ K, S7 O+ f
sxlfr 发表于 2010-2-22 14:57 http://www.3dportal.cn/discuz/images/common/back.gif

- V$ \$ n+ ^9 F; w3 ?: A5 d1 m3 \呵呵,像是个简图!
发表于 2010-2-23 09:31:33 | 显示全部楼层 来自: 中国山西临汾
呵呵,像是个简图!
% |: O; L$ ]) t* nlauhob 发表于 2010-2-22 20:28 http://www.3dportal.cn/discuz/images/common/back.gif
4 ]4 U) ]/ n$ d0 Z# d
哈哈,你不是就要简图吗?我的这张图实际大小14000*20000。
 楼主| 发表于 2010-2-23 22:49:12 | 显示全部楼层 来自: 中国陕西榆林
想要个外观简图
发表于 2010-2-26 15:52:06 | 显示全部楼层 来自: 中国山西临汾
想要个外观简图* ~0 X  v% o3 F2 [+ E  g$ L& o1 k
lauhob 发表于 2010-2-23 22:49 http://www.3dportal.cn/discuz/images/common/back.gif

3 @) u) A4 j0 n发个照片看看。
' z9 e# M$ B! S* ~, R+ B0 m& m100MW的
+ h  u: n, ~+ o6 H! F DSC06348.jpg ; R  j( m; a! s, D1 ~1 q
60MW的6 H+ }, R. g) @9 d, e
DSC06347.jpg
 楼主| 发表于 2010-2-26 17:05:00 | 显示全部楼层 来自: 中国陕西榆林
我是觉得发电机外观比较好画,汽轮机的外观不好下手,难道将低压侧和高压侧都表示出来
发表于 2010-2-27 13:45:46 | 显示全部楼层 来自: 中国江苏无锡
不要这么复杂吧
发表于 2010-2-27 15:15:56 | 显示全部楼层 来自: 中国山西临汾
不知道楼主要干什么,到底需要什么东西,不知道如何示意?
发表于 2010-2-27 16:22:38 | 显示全部楼层 来自: 巴基斯坦
收藏一下,以后或许用的找!~~
发表于 2010-4-12 17:20:34 | 显示全部楼层 来自: 中国山东东营
看来网络的能量真是巨大啊,刚看题目还以为不可能的事情,后面就看到真东西了。
发表回复
您需要登录后才可以回帖 登录 | 注册

本版积分规则


Licensed Copyright © 2016-2020 http://www.3dportal.cn/ All Rights Reserved 京 ICP备13008828号

小黑屋|手机版|Archiver|三维网 ( 京ICP备2023026364号-1 )

快速回复 返回顶部 返回列表