|
|

楼主 |
发表于 2010-2-2 19:22:19
|
显示全部楼层
来自: 中国上海
本帖最后由 hbsky20 于 2010-2-2 20:15 编辑
& j* z. }! @0 \; h& f3 M; @$ ]# V" I2 a2 i3 |
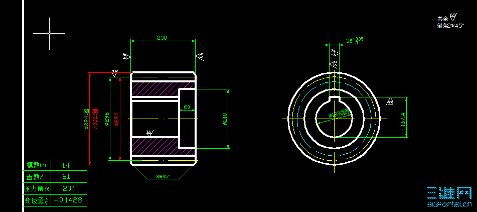
此图中变位后的齿顶园直径是如何算的 我算的对吗
% H. L, x2 c& j9 r% H! J
+ i/ T1 P4 _+ y- J: t4 c! t, a- f6 H! Z9 Q5 b0 k$ @, _4 d
变位量:刀具的中线由加工标准齿轮的位置平移的垂直距离。1 I2 b* e! G$ e# o! ]- M: ~. d
5 e1 ^" c/ k8 e2 G5 j
" k3 K# \9 L, [4 U$ ]1 b% d
变位系数:用标准模数表达变位量所需的系数。
% z6 y c4 Z; E( d
* K! L. G9 F4 \2 [# t; \0 c7 @
& M' S/ F) J# K$ V! y' }* Q6 f( F0 A 最小变位系数:加工渐开线齿轮不产生根切所需变位系数的最小值。
' O9 f3 A4 X* r- E% D, ^% F* t1 D8 C* l/ K9 q. g! w
+ }9 C8 g0 F5 x6 @
xmin = h*a (Zmin - Z)/ Zmin 最小齿数Zmin是怎么定的 不是 很懂 怎么有最小齿数 |
|