QQ登录

只需一步,快速开始

登录 | 注册 | 找回密码

三维网

 找回密码
 注册

QQ登录

只需一步,快速开始

展开

通知     

查看: 1952|回复: 6
收起左侧

[已答复] 计算扭矩

[复制链接]
发表于 2010-1-31 18:40:47 | 显示全部楼层 |阅读模式 来自: 中国河南南阳

马上注册,结识高手,享用更多资源,轻松玩转三维网社区。

您需要 登录 才可以下载或查看,没有帐号?注册

x
0.png
7 h) U4 g8 x" |3 F% F- }; J9 b4 u
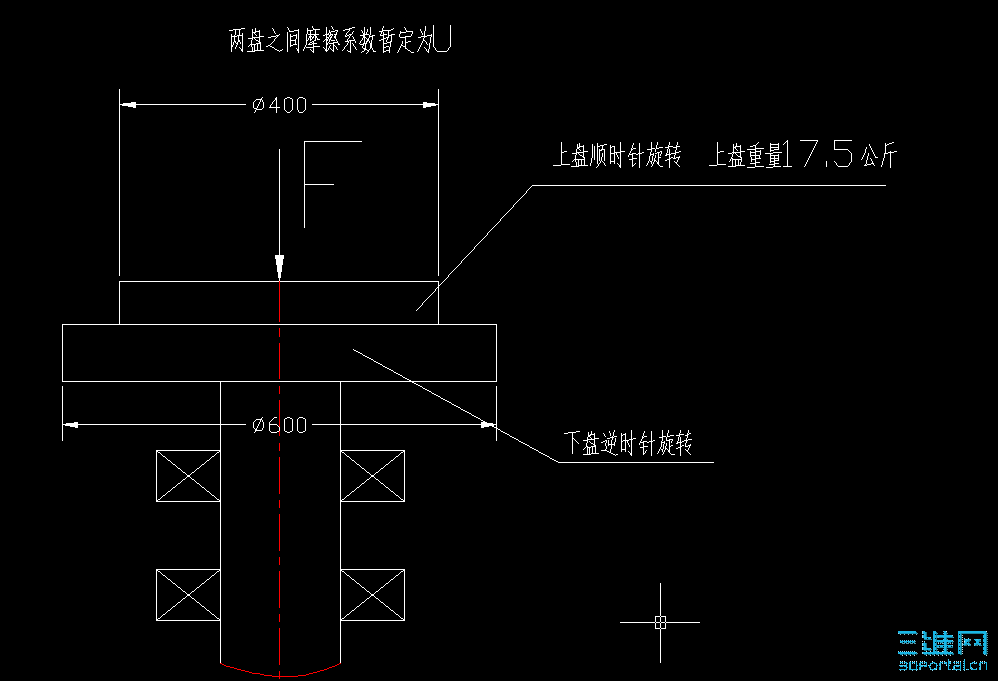
各位大哥,小弟有个计算扭矩的问题请教,参考上图,我想知道上盘逆转至少需要多大的扭矩,即上盘在压力f下,逆转至少需要多大的扭矩,请各位告诉我具体的计算公式,小弟不胜感激!
发表于 2010-2-1 09:05:59 | 显示全部楼层 来自: 中国山西太原
上盘受的正压力为N,N=F+17.5kg,摩擦因数为μ,则二盘间的摩擦力T为:T=μN,上般的直径为400mm,
' i1 r7 e: ^& n9 O5 e摩擦力作用在平均直径上,即D=200mm,半径R=100mm。则摩擦力矩M=TR。; A/ x) _4 y& A6 M9 A; c
上盘的转动扭矩就是M。

评分

参与人数 1三维币 +2 收起 理由
天际孤帆 + 2 技术交流

查看全部评分

 楼主| 发表于 2010-2-1 09:18:08 | 显示全部楼层 来自: 中国河南郑州
本帖最后由 gjzheng 于 2010-2-1 09:37 编辑
8 E0 e% ]9 [( t& q6 ?% F; [9 U5 ?  ^
谢谢大哥,小弟还有一事 1.png 请教:如果上下盘是球面接触呢,即上盘是内球面,下盘是外球面,当然了,这两个球的直径都是一样的,只是口径不一样,转动和上图类似,这种上盘需要的转矩如何计算?
 楼主| 发表于 2010-2-1 09:37:35 | 显示全部楼层 来自: 中国河南郑州
上盘沿箭头方向的压力作用,并且有轴带着上盘以箭头方向为中心顺时针旋转,下盘在轴的带动下逆时针旋转。再次向gaoyns致谢!
发表于 2010-2-1 11:08:48 | 显示全部楼层 来自: 中国广东东莞
同意2#的计算方式,因为均部荷载不好计算,我们以集中荷载来考虑也行。
发表于 2010-2-1 15:49:04 | 显示全部楼层 来自: 中国山西太原
3# gjzheng 0 M; R- h# ]- `; H8 M/ A7 Z5 M1 j
摩擦力的计算与上面的相同,关键是求扭矩的力臂(力的作用半径)的问题。对于丝杆取中径的一半,对于圆环形接触面取平均直径的一半,对于接触面是圆的取直径径的1/4。对于接触面为球面的情况,应看其配合情况,若间隙较大,摩擦力作用半径应较小;若配合较紧,摩擦力作用半径应较大。若需较精确,可进行扭矩测试,其结果准确可靠。

评分

参与人数 1三维币 +2 收起 理由
天际孤帆 + 2 技术交流

查看全部评分

 楼主| 发表于 2010-2-1 20:57:37 | 显示全部楼层 来自: 中国河南南阳
谢谢gaoyns!以后有这方面的问题还望多多指教!
发表回复
您需要登录后才可以回帖 登录 | 注册

本版积分规则


Licensed Copyright © 2016-2020 http://www.3dportal.cn/ All Rights Reserved 京 ICP备13008828号

小黑屋|手机版|Archiver|三维网 ( 京ICP备2023026364号-1 )

快速回复 返回顶部 返回列表