QQ登录

只需一步,快速开始

登录 | 注册 | 找回密码

三维网

 找回密码
 注册

QQ登录

只需一步,快速开始

展开

通知     

查看: 3031|回复: 18
收起左侧

[讨论] 这种油路的电磁阀怎样控制才最佳?

[复制链接]
发表于 2010-1-26 15:50:35 | 显示全部楼层 |阅读模式 来自: 中国湖北武汉

马上注册,结识高手,享用更多资源,轻松玩转三维网社区。

您需要 登录 才可以下载或查看,没有帐号?注册

x
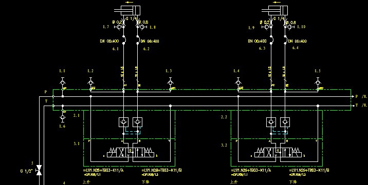
QQ截图未命名.JPG 油缸锁紧时电磁阀的线圈是通电好还是断电好?通电时油缸锁紧的压力和油源相同,油源压力的波动会影响油缸的锁紧,需要采取措施使油源稳定,才能满足要求。断电是依靠液压锁来锁紧,和油源无关,却和负载有很大的关系。到底如何控制,希望大家各抒己见,谢了。
发表于 2010-1-26 16:21:39 | 显示全部楼层 来自: 中国江苏徐州
你主要希望抗负载冲击的吧,那为什么不使用平衡阀哪
发表于 2010-1-26 16:23:01 | 显示全部楼层 来自: 中国河北唐山
有两个问题:
$ d' |5 L' H1 N' {( ]/ N1.油源压力为何波动?, ~8 m# _( P! c0 Q) _
2.楼主所说负载是变化的吗?
发表于 2010-1-26 16:35:30 | 显示全部楼层 来自: 中国浙江温州
油缸要锁紧时直接让电磁阀不通电,阀芯在中位为Y型机能,组成液压锁机构,跟负载有什么关系啊
发表于 2010-1-26 20:59:50 | 显示全部楼层 来自: 中国天津
液压锁和负载有关系???
发表于 2010-1-26 23:49:34 | 显示全部楼层 来自: 中国广西
我估计楼主是想在负载变化时还能保证油缸的平稳运动,那样的话用平衡阀好了。
 楼主| 发表于 2010-1-27 10:04:13 | 显示全部楼层 来自: 中国湖北武汉
油源是和别的负载公用的,不过,此处油源是用的恒压泵+蓄能器。负载虽然不变化,但是不能保证油缸不渗漏和工件的机械变形。
发表于 2010-1-27 22:12:40 | 显示全部楼层 来自: 中国江苏无锡
如果油缸泄漏的话用什么都没有用
发表于 2010-1-27 22:24:18 | 显示全部楼层 来自: 中国广东佛山
油缸泄露不说,负载变化不在,采用中位Y型液压锁锁紧油路比较合适。
 楼主| 发表于 2010-1-28 09:13:02 | 显示全部楼层 来自: 中国湖北武汉
我说的是这种油路里,是电磁阀断电,依靠液压锁保压好。还是电磁阀通电利用恒压油源来保压好。希望高手来讨论。
发表于 2010-1-28 10:43:20 | 显示全部楼层 来自: 中国浙江温州
楼主,我觉得靠液压锁保压好) d+ w( l- W- p8 \0 r; k
1.在油缸停止运动时,电磁阀断电,利用中位Y型机能组成液压锁可以保证液压缸可靠稳定的停止在停止运动时的位置,若用恒压油源来保压,泵是有流量脉动的,可能会使液压缸在停止位置做振幅很小的抖动的,还有,若此时系统其它回路工作的话,会造成泵的压力波动,保压效果不好
  J5 E* V9 |6 g1 [' ?. K7 L2.用泵保压,系统能量损失大,会浪费能量,造成不必要的温升
发表于 2010-1-28 22:39:54 | 显示全部楼层 来自: 中国山西太原
同意11楼的说法,采用Y型机能换向和液压锁是最常用的方法了。
发表于 2010-1-29 08:35:27 | 显示全部楼层 来自: 中国陕西宝鸡
11楼说的很对。另外,鉴于两路阀接于同一油路块,为避免相互影响,最好是在油路块上加上蓄能器
发表于 2010-1-31 20:47:22 | 显示全部楼层 来自: 中国上海
楼主的问题11楼的朋友说的蛮全面的,学习了!; B7 S6 ^5 ^: q$ O! O
个人有点想法:9 J" T9 ~, ?' P! m4 i
第一,如果楼主所说的负载及其变化都比较大话,还是采用平衡阀更好,安装位置在液压缸上较好;
3 P) S3 d" N2 Y' g8 o9 E* I第二,楼主的系统图中没有用于调速用的阀,难道所控制的设备无需控制速度?
7 {9 O' O& `6 D4 C; {第三,13楼的朋友所说的加蓄能器,我觉得这要看两个液压缸的动作,如果有需要同时动作的情况,
& J0 M6 r1 T/ ?8 @/ T3 ^  y( K为了使它们的动作比较平稳在阀台上加蓄能器,要不然,没有必要。
9 y! F/ F$ P" y( [: |1 q& n个人的一点看法,可能不对,请版上的朋友多指教。
3 x9 U! X5 r4 o1 c  M9 d4 pPS:楼主的图很有SMS DEMAG的风格,莫非楼主也是冶金行业的?
发表于 2010-2-6 21:10:37 | 显示全部楼层 来自: 中国河北石家庄
不是所有的系统否适合使用平衡阀,就像这个系统,只要保证压力波动在一定的范围内就能满足要求,所以一定要加装蓄能器,一个简单的蓄能器家就能解决问题。
发表于 2010-2-8 16:59:43 | 显示全部楼层 来自: 中国江苏徐州
偶个人认为,像这样的油路,如果有调节需求,还是使用双向平衡阀比较好
发表于 2010-2-8 17:08:14 | 显示全部楼层 来自: 中国安徽合肥
推荐使用板式平衡阀,和其它阀叠放在一起
发表于 2010-2-26 20:35:28 | 显示全部楼层 来自: 中国河北唐山
建议楼主在长时间锁紧时电磁阀断电,同时为避免压力波动,可以选用平衡阀。
发表于 2010-3-2 20:46:32 | 显示全部楼层 来自: 中国辽宁本溪
没有仔细阅读大家的发言,直接回答楼主的问题吧。8 T! i; X& g/ t9 P1 j9 J
最好有全套的液压图纸,因为你的使部分图纸,液压站供油还有其他部分,所以有些部分有减压阀,泵子的出口还要有溢流阀,可能是电磁溢流阀,根据系统不同可能是常开的。这样泵始终没有给系统供油,只有供油时候溢流阀动作,你所谓的电磁阀也同时动作,你的缸就动作了。就没有你所谓的线圈是带电还是不带电了。其实我上面的分析是针对你电磁阀带点与否做的分析,实际应该不是这样的,实际不应该是常开的溢流阀。这样阀是短时间工作适用的。+ B: O- r, `; Z- Q* w. f4 {
说了这么多估计我没说明白,我要说的是,系统工作时候线圈不工作才好呢,这样减少线圈烧损带来的故障。6 ^; Q7 B2 `- v- M
压力波动影响锁紧,我认为你多虑了,压力没什么波动。; d% x4 K# D# `8 q! M* K& }- h
断电和负载有关和油源无关,这是什么意思?有关没关怎么了?液压锁就是起到防止重物下落,或马达旋转的。( L% y6 ^& g" d5 I
实事求是的说你别不爱听,你应该多看些液压书,你对液压理解不深,问的问题不怎么准确。
发表回复
您需要登录后才可以回帖 登录 | 注册

本版积分规则


Licensed Copyright © 2016-2020 http://www.3dportal.cn/ All Rights Reserved 京 ICP备13008828号

小黑屋|手机版|Archiver|三维网 ( 京ICP备2023026364号-1 )

快速回复 返回顶部 返回列表